物件掲載企業数:297|賃貸物件:3,624件|売買物件:3,288件|今週の登録物件:276
閲覧中のブラウザ(インターネットエクスプローラー)は非推奨ブラウザです。
物件が正しく表示されなかったり、正しく検索されない場合があります。最新のブラウザ(Google Chrome・Edgeなど)にてご利用お願いいたします。
  

新潟県長岡市城岡1丁目6-32 中古一戸建て 4LDK 20,900,000円の物件情報

【価格改定しました】2,240万円(R6.7.10)→2,090万円(R7.7.16)スーパー、最寄り駅まで徒歩圏内!4LDKの状態の良い住宅です!カーポート2台、他1台の駐車スペースがあり雪の日も安心です♪

物件名/所在地 詳細 価格
城岡1丁目 売住宅
新潟県長岡市城岡1丁目6-32
  • 土地面積
    :182.31㎡ /55.14坪
  • 建物面積
    :105.15㎡ /31.8坪
  • 間取り
    :4LDK
  • 築年月
    :2008年10月
20,900,000
  • 城岡1丁目 売住宅
    髙頭不動産 株式会社
  • この物件を問い合わせる/無料
  • TEL: 0120-1818-27

物件画像

外観 間取り
物件画像
※画像クリックで拡大表示
外観写真
物件画像
※画像クリックで拡大表示
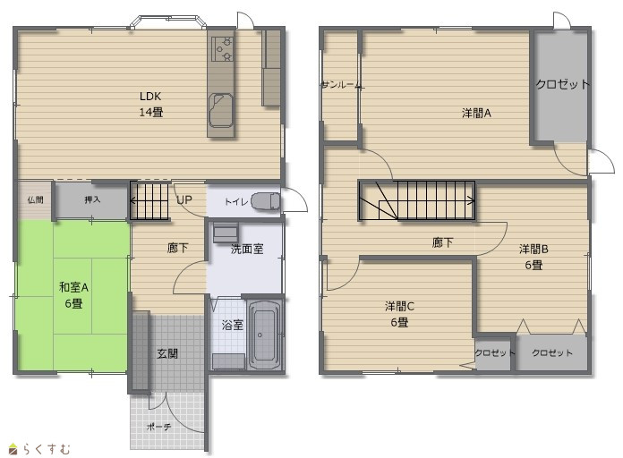
間取り
詳細画像
動画


物件概要

浴室暖房、洗面所にヒーター有り!寒い冬でも快適です☆彡
物件コード 00040-201031
物件名 城岡1丁目 売住宅
交通 駅:信越線 北長岡駅から徒歩2分、バス:新町2丁目から徒歩3分
物件所在地 新潟県長岡市城岡1丁目6-32
物件種別 中古一戸建て
構造 木造 階建 地上2階建
建ぺい率/容積率 60%/200%
建物面積 1階 52.98㎡/ 2階 52.17㎡/ 計 105.15㎡ /31.8坪
土地面積 182.31㎡ /55.14坪
築年月 2008年10月(築17年)
入居(引き渡し)時期 随時入居(引き渡し)可
用途地域 工業地域 地目 宅地  (現状:宅地)
都市計画 市街化区域 学校区 新町小学校(574m)・北中学校(844m)
形状 間口 9.2m × 奥行 19.3m 道路 東側 公道 幅員5.2m
私道 - その他の制限 建築基準法第22条、都市再生特別措置法(まちなか居住区域)
  • 城岡1丁目 売住宅
    髙頭不動産 株式会社
  • この物件を問い合わせる/無料
  • TEL: 0120-1818-27

物件詳細情報

所在階/階数 - 号室 -
販売価格 20,900,000円 方位
間取り 4LDK (和室:6畳) (洋室:6、6、9.7)
LDK14
専有面積 - バルコニー面積 -
その他面積 - 駐車場 -
管理費 - 修繕積立金 -
現況 空家
仲介手数料 755,700円
利用制限 -
設備 日当り良好、閑静な住宅街、スーパー近く、駐車3台以上可能、TVインターホン、デインプルキー、システムキッチン、カウンターキッチン、IHクッキングヒーター、3口コンロ、追いだき機能付き、浴室乾燥機、バス1坪以上、温水洗浄便座、シャワー付き洗面台、エアコンあり、都市ガス、上水道、下水道、ウォークインクローゼット、全居室収納あり、シューズBOX、即引き渡し可能
取引態様 一般
備考 ※カーポートの一部が前面道路に越境しています。
※建築基準法第22条区域、まちなか居住区域に該当します。
取り扱い会社

髙頭不動産 株式会社

新潟県長岡市千歳1-3-25

情報登録日 2025/07/16 次回更新予定日 2025/12/19
取引条件有効期限 2024/10/09
  • 城岡1丁目 売住宅
    髙頭不動産 株式会社
  • この物件を問い合わせる/無料
  • TEL: 0120-1818-27

この物件の地図・周辺情報・行政情報

この物件の周辺情報・行政情報を詳しく見る
【周辺情報】
物件の近くにあるコンビニや銀行・学校など、アイコン付のマップで詳しく表示できます!
【行政情報】
水道料や下水道料・ガス料金など、暮らしに関係のある情報を表示しています。
ローソン 長岡新保店(コンビニ)まで1010m
チャレンジャー 北長岡店(スーパー)まで460m
原信 新保店(スーパー)まで1090m
大関医院(病院)まで610m
長岡信用金庫 新町支店(銀行)まで750m
長岡新町郵便局(郵便局)まで530m

※カメラのアイコンがある場合は、マウスをポイントするとその施設の画像がご覧いただけます。


担当取扱い店舗情報

取扱い店舗画像
髙頭不動産 株式会社
TEL: 0120-1818-27
所在地: 新潟県長岡市千歳1-3-25
交通: 長岡駅
営業時間: 8時30分~17時30分(大手支店は9時~18時)/定休日:本社:土日祝日(事前予約での対応可能)、支店:日曜祝日第5土曜(毎年2月下旬から3月は休みなし)
免許番号: 新潟県知事(17)第191号 この会社の情報を詳しく見る
所属団体名: 新潟県宅地建物取引協会 長岡支部
取引態様: 一般
ホームページ: http://www.takato-f.com