物件掲載企業数:297|賃貸物件:3,620件|売買物件:3,316件|今週の登録物件:268
閲覧中のブラウザ(インターネットエクスプローラー)は非推奨ブラウザです。
物件が正しく表示されなかったり、正しく検索されない場合があります。最新のブラウザ(Google Chrome・Edgeなど)にてご利用お願いいたします。
  

新潟県長岡市福住1丁目2番27号 中古一戸建て 7LDK 34,400,000円の物件情報

長岡駅、スーパー、文教施設までのアクセス良好です。閑静な住宅地につき、住環境良好です。雨でも安心「インナーガレージ住宅」

物件名/所在地 詳細 価格
長岡市福住1丁目リノベーション住宅
新潟県長岡市福住1丁目2番27号
  • 土地面積
    :247.93㎡ /74.99坪
  • 建物面積
    :292.08㎡ /88.35坪
  • 間取り
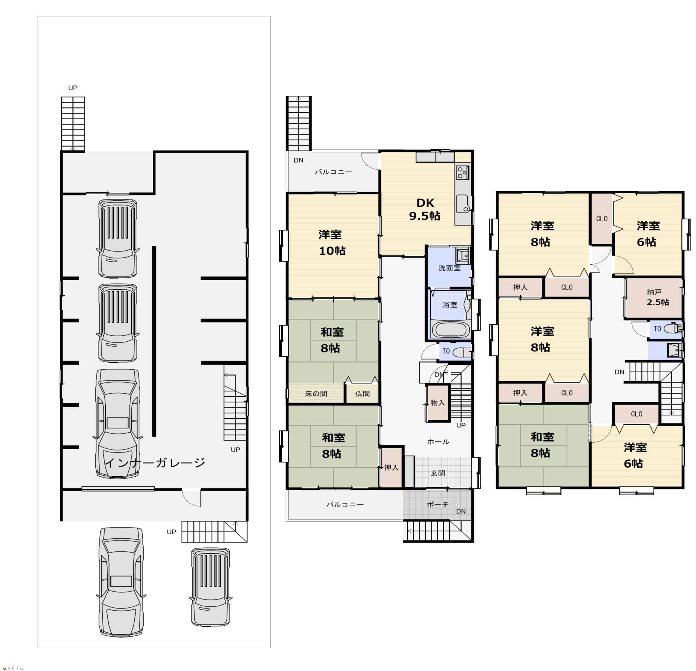
    :7LDK
  • 築年月
    :1996年9月
34,400,000
  • 長岡市福住1丁目リノベーション住宅
    株式会社 エヌ・アール・ケー総合企画
  • この物件を問い合わせる/無料
  • TEL: 0258-41-5336

物件画像

外観 間取り
物件画像
※画像クリックで拡大表示
外観
物件画像
※画像クリックで拡大表示
間取り
詳細画像


物件概要

広々敷地74.99坪、住宅88.35坪。間取り7LDK、駐車5台可。長岡駅まで徒歩3分の立地条件。
物件コード 00024-200947
物件名 長岡市福住1丁目リノベーション住宅
交通 駅:信越線 長岡駅から徒歩4分、バス:福住から徒歩5分
物件所在地 新潟県長岡市福住1丁目2番27号
物件種別 中古一戸建て
構造 木造 階建 地上3階建
建ぺい率/容積率 80%/300%
建物面積 1階 99.37㎡/ 2階 99.97㎡/ 3階 92.74㎡/ 計 292.08㎡ /88.35坪
土地面積 247.93㎡ /74.99坪
築年月 1996年9月(築29年)
入居(引き渡し)時期 令和8年1月末以降引渡し予定
用途地域 近隣商業地域 地目 宅地  (現状:宅地)
都市計画 市街化区域 学校区 阪之上小学校(175m)・東北中学校(1,406m)
形状 間口 9.1m × 奥行 27.2m 道路 長岡市道幅員8.3m 前面道路消雪パイプ有
私道 - その他の制限 景観法、準防火地域、盛土規制法
  • 長岡市福住1丁目リノベーション住宅
    株式会社 エヌ・アール・ケー総合企画
  • この物件を問い合わせる/無料
  • TEL: 0258-41-5336

物件詳細情報

所在階/階数 - 号室 -
販売価格 34,400,000円 方位
間取り 7LDK (和室:8畳、8畳、8畳) (洋室:8、8、6、6)
LDK19.5帖
販売図面と現況が相違する場合は現況を優先させて頂きます。
専有面積 - バルコニー面積 -
その他面積 - 駐車場 -
管理費 - 修繕積立金 -
現況 空家
仲介手数料 なし
利用制限 -
設備 日当り良好、閑静な住宅街、スーパー近く、LDK15帖以上、駐車3台以上可能、TVインターホン、複層ガラス、デインプルキー、システムキッチン、ガスコンロ設置済み、追いだき機能付き、バス1坪以上、温水洗浄便座、トイレ2か所以上、シャワー付き洗面台、エアコンあり、床暖房、省エネ給湯機、都市ガス、上水道、下水道、全居室収納あり、リノベーション物件
取引態様 売主
備考 おすすめポイント
①外壁、屋根塗装、ガレージシャッター新品入替え
②食器洗浄機付きキッチン、洗面、トイレ新品交換
③各部屋収納付きで整理整頓上手
④雨でも安心「インナーガレージ付き住宅」
⑤駅、スーパー、文教施設のアクセス良好。利便性の高い立地
・購入時には別途諸費用が掛かります
〈住宅ローン返済例〉
金利:1.125%(変動金利)借入期間:40年 ボーナス返済:無 
借入金額: 3,440万円 返済額:89,030円
※当社売主につき、仲介手数料不要です。
・販売図面と現況が相違する場合は現況を優先させて頂きます。
取り扱い会社

株式会社 エヌ・アール・ケー総合企画

新潟県長岡市与板町与板119番地

情報登録日 2025/12/08 次回更新予定日 2025/12/30
取引条件有効期限 2027/05/08
  • 長岡市福住1丁目リノベーション住宅
    株式会社 エヌ・アール・ケー総合企画
  • この物件を問い合わせる/無料
  • TEL: 0258-41-5336

この物件の地図・周辺情報・行政情報

この物件の周辺情報・行政情報を詳しく見る
【周辺情報】
物件の近くにあるコンビニや銀行・学校など、アイコン付のマップで詳しく表示できます!
【行政情報】
水道料や下水道料・ガス料金など、暮らしに関係のある情報を表示しています。
ローソン 長岡今朝白一丁目店(コンビニ)まで160m
原信 今朝白店(スーパー)まで360m

※カメラのアイコンがある場合は、マウスをポイントするとその施設の画像がご覧いただけます。


担当取扱い店舗情報

取扱い店舗画像
株式会社 エヌ・アール・ケー総合企画
TEL: 0258-41-5336
所在地: 新潟県長岡市与板町与板119番地
交通:
営業時間: 8:30~17:30/定休日:土日・祝祭日 (電話対応しております)
免許番号: 新潟県知事(5)第4750号 この会社の情報を詳しく見る
所属団体名: 新潟県宅地建物取引業協会 長岡支部
取引態様: 売主
ホームページ: http://www.nrk-sogo.jp