物件掲載企業数:301|賃貸物件:3,194件|売買物件:3,237件|今週の登録物件:227
閲覧中のブラウザ(インターネットエクスプローラー)は非推奨ブラウザです。
物件が正しく表示されなかったり、正しく検索されない場合があります。最新のブラウザ(Google Chrome・Edgeなど)にてご利用お願いいたします。
  

新潟県小千谷市平沢2丁目789番地2 投資物件・その他 49,800,000円の物件情報

国道117号線に面する好立地 賃貸として貸出し中の為、投資物件にもおすすめ♪ 敷地内17台駐車可能、融雪設備有り

物件名/所在地 詳細 価格
表面利回り
小千谷 平沢テナント
新潟県小千谷市平沢2丁目789番地2
  • 土地面積
    :409㎡ /123.72坪
  • 建ぺい率
    :60%
  • 容積率
    :200%
49,800,000
-
  • 小千谷 平沢テナント
    株式会社 エヌ・アール・ケー総合企画
  • この物件を問い合わせる/無料
  • TEL: 0258-41-5336

物件画像

外観 間取り
物件画像
※画像クリックで拡大表示
外観
物件画像
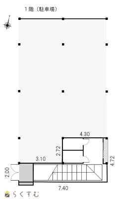
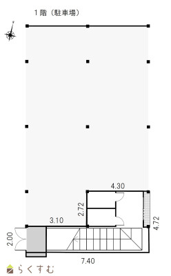
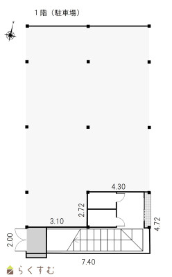
※画像クリックで拡大表示
間取図
詳細画像


物件概要

交通量の多い道路に面している為、商業利用に最適♪築浅の為、内観も綺麗です♪
物件コード 00024-200851
物件名 小千谷 平沢テナント
交通 駅:上越線 小千谷駅から徒歩39分、バス:平沢町から徒歩4分
物件所在地 新潟県小千谷市平沢2丁目789番地2
物件種別 投資物件・その他
物件区分 その他
構造 鉄骨 階建 地上2階建
建ぺい率/容積率 60%/200%
建物面積 1階 26.49㎡/ 2階 164.5㎡/ 計 190.99㎡ /57.77坪
土地面積 409㎡ /123.72坪
築年月 2011年10月(築14年)
入居(引き渡し)時期 相談
用途地域 準住居地域 地目 宅地
都市計画 非線引き都市計画区域 学校区 小千谷小学校(1,279m)・小千谷中学校(668m)
形状 - 道路 国道117号線 幅員18m
私道 - その他の制限 -
  • 小千谷 平沢テナント
    株式会社 エヌ・アール・ケー総合企画
  • この物件を問い合わせる/無料
  • TEL: 0258-41-5336

物件詳細情報

所在階/階数 - 号室 -
販売価格 49,800,000円 方位 -
表面利回り(満室想定時) - 満室想定年収 - (想定月収: - )
現行利回り - 現行年間年収 -
住戸数 -
間取り -
専有面積 - バルコニー面積 -
その他面積 - 駐車場 屋外6台、屋根付11台
管理費 - 修繕積立金 -
現況 賃貸中
仲介手数料 1,650,000円
利用制限 -
設備 角地、南側道路面す、駐車場(近隣含む)、事業向け
取引態様 一般
備考 ・現況有姿でのお引渡しと致します。
・公簿面積売買と致します。
・現在賃貸中
・内見をご希望の方は事前にご連絡下さい。
取り扱い会社

株式会社 エヌ・アール・ケー総合企画

新潟県長岡市与板町与板119番地

情報登録日 2024/04/19 次回更新予定日 2026/05/14
取引条件有効期限 2030/09/30
  • 小千谷 平沢テナント
    株式会社 エヌ・アール・ケー総合企画
  • この物件を問い合わせる/無料
  • TEL: 0258-41-5336

この物件の地図・周辺情報・行政情報

この物件の周辺情報・行政情報を詳しく見る
【周辺情報】
物件の近くにあるコンビニや銀行・学校など、アイコン付のマップで詳しく表示できます!
【行政情報】
水道料や下水道料・ガス料金など、暮らしに関係のある情報を表示しています。

担当取扱い店舗情報

取扱い店舗画像
株式会社 エヌ・アール・ケー総合企画
TEL: 0258-41-5336
所在地: 新潟県長岡市与板町与板119番地
交通:
営業時間: 8:30~17:30/定休日:土日・祝祭日 (電話対応しております)
免許番号: 新潟県知事(5)第4750号 この会社の情報を詳しく見る
所属団体名: 新潟県宅地建物取引業協会 長岡支部
取引態様: 一般
ホームページ: http://www.nrk-sogo.jp