物件掲載企業数:301|賃貸物件:3,194件|売買物件:3,237件|今週の登録物件:240
閲覧中のブラウザ(インターネットエクスプローラー)は非推奨ブラウザです。
物件が正しく表示されなかったり、正しく検索されない場合があります。最新のブラウザ(Google Chrome・Edgeなど)にてご利用お願いいたします。
  

新潟県長岡市南町1丁目1998-26 中古マンション 4DK 11,800,000円の物件情報

長岡駅まで徒歩約11分・コンビニまで徒歩約5分

物件名/所在地 詳細 価格
ライオンズマンション長岡
1103号室
新潟県長岡市南町1丁目1998-26
  • 専有面積
    :71.03㎡ /21.48坪
  • 間取り
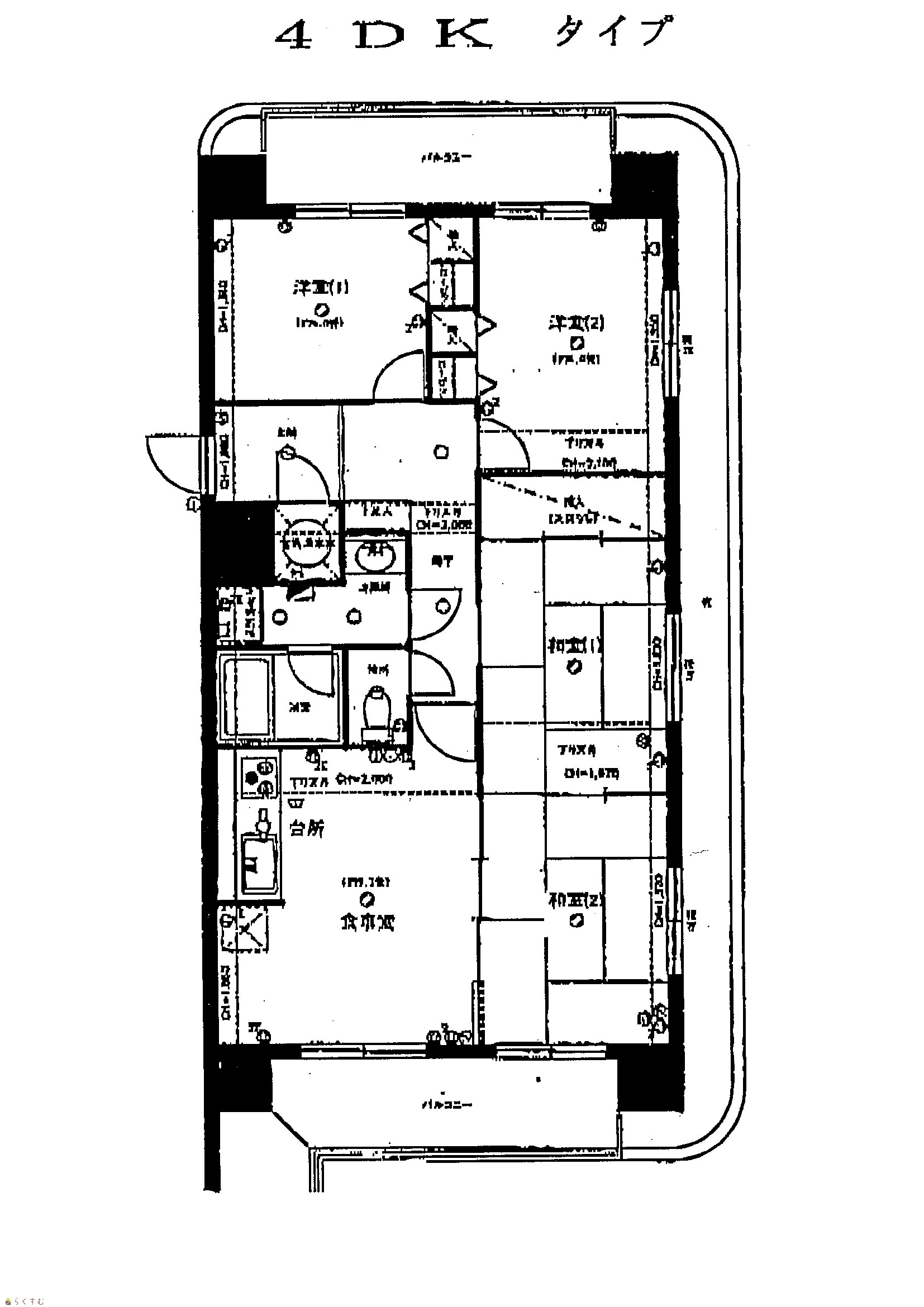
    :4DK
  • 築年月
    :1991年7月
11,800,000
  • ライオンズマンション長岡
    株式会社 金井不動産
  • この物件を問い合わせる/無料
  • TEL: 0120-35-3901

物件画像

外観 間取り
物件画像
※画像クリックで拡大表示
外観
物件画像
※画像クリックで拡大表示
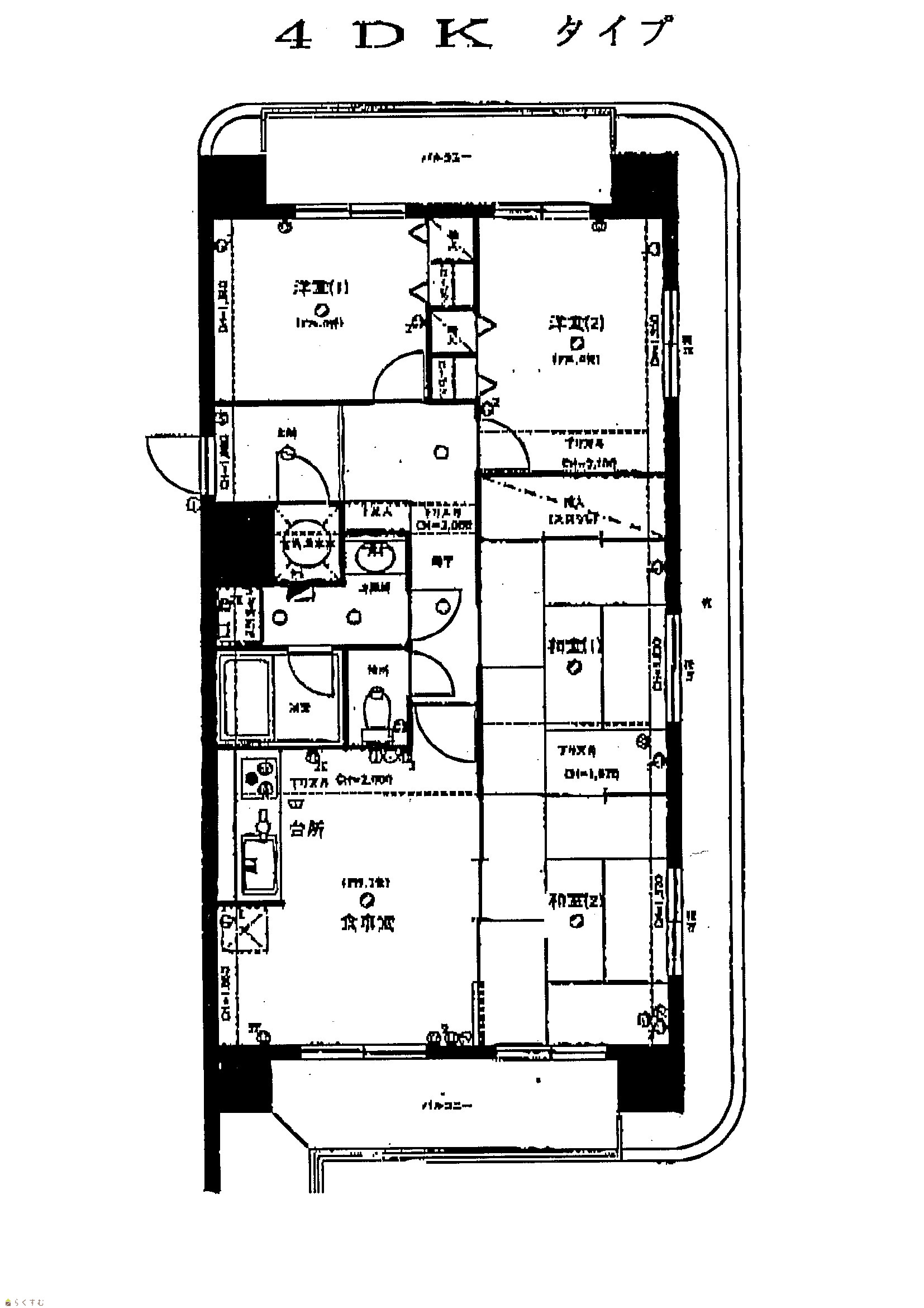
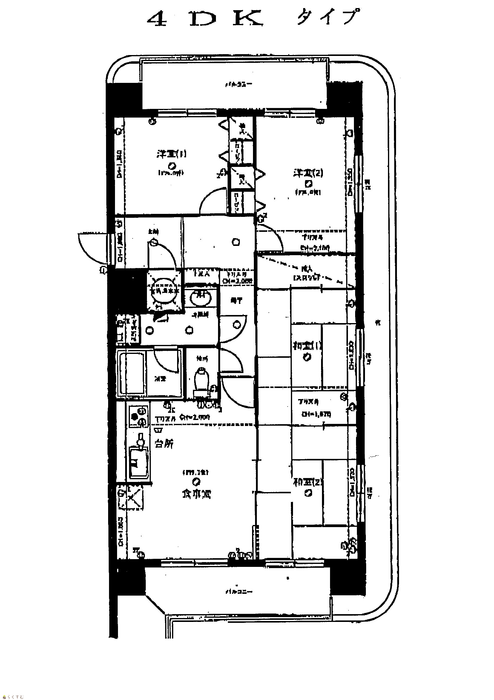
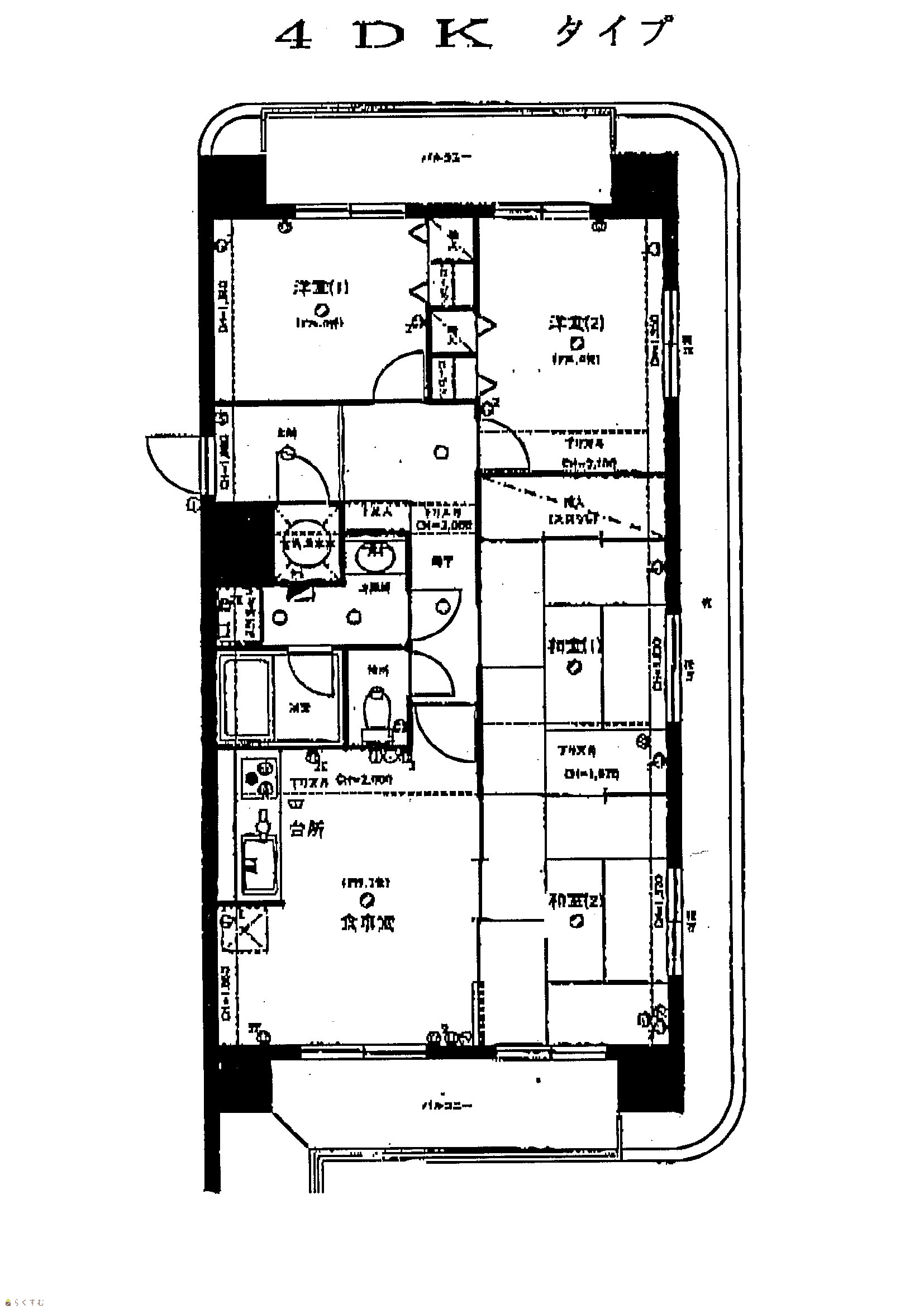
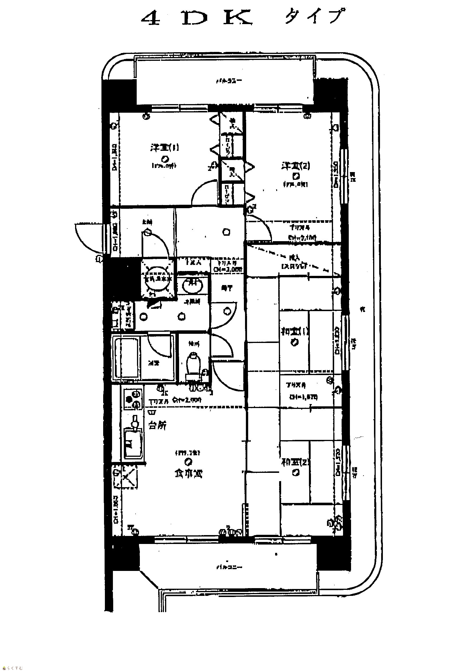
間取り
詳細画像


物件概要

物件コード 00014-200355
物件名 ライオンズマンション長岡
交通 駅:上越新幹線 長岡駅から徒歩11分、バス:南町1丁目から徒歩3分
物件所在地 新潟県長岡市南町1丁目1998-26
物件種別 中古マンション
構造 鉄骨鉄筋コン 階建 地上14階建
建ぺい率/容積率 60%/200%
建物面積 -
土地面積 1,586.14㎡ /479.8坪
築年月 1991年7月(築34年)
入居(引き渡し)時期 相談
用途地域 準住居地域 地目 宅地  (現状:宅地)
都市計画 市街化区域 学校区 千手小学校(665m)・南中学校(311m)
形状 - 道路 公道
私道 - その他の制限 -
  • ライオンズマンション長岡
    株式会社 金井不動産
  • この物件を問い合わせる/無料
  • TEL: 0120-35-3901

物件詳細情報

所在階/階数 11階/14階 号室 1103号室
販売価格 11,800,000円 方位 -
間取り 4DK (和室:6畳、6畳) (洋室:5、6)
DK8
専有面積 71.03㎡ /21.48坪 バルコニー面積 -
その他面積 - 駐車場 -
管理費 - 修繕積立金 -
現況 賃貸中
仲介手数料 455,400円
利用制限 ペット:不可
設備 10階建て以上、2階以上、最寄駅近く、エレベーター、和室あり、バイク置き場、駐輪場、管理人常駐(日中)
取引態様 一般
備考 -
取り扱い会社

株式会社 金井不動産

新潟県長岡市要町3-1-26

情報登録日 2024/02/06 次回更新予定日 2026/05/13
取引条件有効期限 2024/01/31
  • ライオンズマンション長岡
    株式会社 金井不動産
  • この物件を問い合わせる/無料
  • TEL: 0120-35-3901

この物件の地図・周辺情報・行政情報

この物件の周辺情報・行政情報を詳しく見る
【周辺情報】
物件の近くにあるコンビニや銀行・学校など、アイコン付のマップで詳しく表示できます!
【行政情報】
水道料や下水道料・ガス料金など、暮らしに関係のある情報を表示しています。

担当取扱い店舗情報

取扱い店舗画像
株式会社 金井不動産
TEL: 0120-35-3901
所在地: 新潟県長岡市要町3-1-26
交通: 長岡駅大手口①バス乗場より乗車~溝橋下車徒歩約4分
営業時間: 9:30~18:00/定休日:日曜・祝祭日
免許番号: 新潟県知事(16)第495号 この会社の情報を詳しく見る
所属団体名: 新潟県宅地建物取引業協会 長岡支部
取引態様: 一般
ホームページ: http://www.3901.com