物件掲載企業数:301|賃貸物件:3,172件|売買物件:3,243件|今週の登録物件:171
閲覧中のブラウザ(インターネットエクスプローラー)は非推奨ブラウザです。
物件が正しく表示されなかったり、正しく検索されない場合があります。最新のブラウザ(Google Chrome・Edgeなど)にてご利用お願いいたします。
  

新潟県長岡市滝谷町244 他5筆 中古一戸建て 4LDK 22,000,000円の物件情報

平成25年フルリフォーム物件☆使用感の少ない住宅です☆ リフォーム部分にはカナダ産ヒバを使用 約21帖の広いリビングには北欧製薪ストーブを設置♪2F寝室から東山の眺望を楽しむことができる設計となっております。内覧は随時募集中です☆

物件名/所在地 詳細 価格
滝谷町4LDK中古住宅【平成25年リフォーム済み物件】
新潟県長岡市滝谷町244 他5筆
  • 土地面積
    :1,395.83㎡ /422.23坪
  • 建物面積
    :170.91㎡ /51.7坪
  • 間取り
    :4LDK
  • 築年月
    :2013年5月
22,000,000
  • 滝谷町4LDK中古住宅【平成25年リフォーム済み物件】
    有限会社 地建事務所
  • この物件を問い合わせる/無料
  • TEL: 0258-28-1528

物件画像

外観 間取り
物件画像
※画像クリックで拡大表示
外観
物件画像
※画像クリックで拡大表示
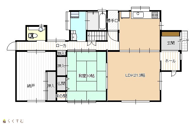
間取り
詳細画像
360度画像

インターネットエクスプローラーでは360°画像は閲覧できません。それ以外のブラウザでご覧下さい。

動画
バーチャルツアー
バーチャルツアーへ進む

※別ダブでバーチャルツアーページが開きます。



物件概要

母屋の屋根はステンレス製です。JR滝谷駅まで徒歩7分 畑もついておりますので田舎暮らしをご検討の方にもおすすめです。2面道路に面する敷地面積約1390㎡の広々とした敷地 
物件コード 00010-200226
物件名 滝谷町4LDK中古住宅【平成25年リフォーム済み物件】
交通 駅:上越線 越後滝谷駅から徒歩9分、バス:滝谷2丁目から徒歩1分
物件所在地 新潟県長岡市滝谷町244 他5筆
物件種別 中古一戸建て
構造 木造 階建 地上2階建
建ぺい率/容積率 70%/200%
建物面積 1階 103.85㎡/ 2階 67.06㎡/ 計 170.91㎡ /51.7坪
土地面積 1,395.83㎡ /422.23坪
築年月 2013年5月(築13年)
入居(引き渡し)時期 相談
用途地域 無指定 地目 宅地・田・畑  (現状:宅地・畑)
都市計画 市街化調整区域 学校区 岡南小学校(228m)・岡南中学校(432m)
形状 間口 22.2m × 奥行 81.9m 道路 東側 県道滝谷三和線7m、 西側 市道六日市24号線6.2m
私道 - その他の制限 農地法3条許可(農地部分)
  • 滝谷町4LDK中古住宅【平成25年リフォーム済み物件】
    有限会社 地建事務所
  • この物件を問い合わせる/無料
  • TEL: 0258-28-1528

物件詳細情報

所在階/階数 - 号室 -
販売価格 22,000,000円 方位
間取り 4LDK (和室:10畳、8畳) (洋室:6、8.7)
LDK21.3
専有面積 - バルコニー面積 -
その他面積 - 駐車場 -
管理費 - 修繕積立金 -
現況 空家
仲介手数料 792,000円
利用制限 -
設備 閑静な住宅街、建物確認・完了検査済証あり、LDK15帖以上、駐車3台以上可能、駐車場融雪設備あり、TVインターホン、複層ガラス、デインプルキー、システムキッチン、3口コンロ、ガスコンロ設置済み、追いだき機能付き、バス1坪以上、温水洗浄便座、シャワー付き洗面台、エアコンあり、LPG、上水道、下水道、シューズBOX、別荘、田舎暮らし
取引態様 一般
備考 ・都市計画法第34条12号区域内 都市計画法第43条許可を受けることで宅地部分に専用住宅の再建築は可、但し市街化区域に土地を所有の場合は再建築不可。  
・公簿面積1395.83㎡のうち農地部分404㎡。所有権移転の為には農地法3条許可が必要となります(別途費用、農地部分住宅建築不可)
・敷地内消雪用浅井戸あり 
・建築確認・検査済み証は平成25年増築部分のものがございます。 
・昭和50年築部分(1F和室、納戸、2F和室、洋室)も平成25年時にスケルトンリフォーム済み
・平成25年時屋根をステンに交換済
※屋外に木造2階建て付属家あり(1F18.21㎡、2F16.56㎡建築年月日不詳)
※水道管の引き込みが隣地を経由しておりますが現状渡しとなります。(隣地所有者承諾済み)
※内部家財は撤去予定ですが希望であれば残置可能です。
※仲介業者様へ 仲介手数料は当社との折半でお願いします。
※ハウスクリーニング後引渡し
取り扱い会社

有限会社 地建事務所

新潟県長岡市北山1丁目43番地12

情報登録日 2025/11/28 次回更新予定日 2026/05/17
取引条件有効期限 2026/01/23
  • 滝谷町4LDK中古住宅【平成25年リフォーム済み物件】
    有限会社 地建事務所
  • この物件を問い合わせる/無料
  • TEL: 0258-28-1528

この物件の地図・周辺情報・行政情報

この物件の周辺情報・行政情報を詳しく見る
【周辺情報】
物件の近くにあるコンビニや銀行・学校など、アイコン付のマップで詳しく表示できます!
【行政情報】
水道料や下水道料・ガス料金など、暮らしに関係のある情報を表示しています。
まつだ歯科医院(病院)まで350m
原信 エクスプレスマーケット旭岡店(スーパー)まで7000m
ウェルシアリップス旭岡店(ドラッグストア)まで6800m
立川綜合病院(病院)まで6900m
岡南小学校(学校)まで350m
岡南中学校(学校)まで480m
岡南こども園(学校)まで750m

※カメラのアイコンがある場合は、マウスをポイントするとその施設の画像がご覧いただけます。


担当取扱い店舗情報

取扱い店舗画像
有限会社 地建事務所
TEL: 0258-28-1528
所在地: 新潟県長岡市北山1丁目43番地12
交通: 北山バス停の目の前です☆
営業時間: 9:00~17:30(第1.3.5土曜営業9:00~15:00)/定休日:日曜・祝日・第2・4土曜日
免許番号: 新潟県知事(12)2357号 この会社の情報を詳しく見る
所属団体名: 新潟県宅地建物取引業協会 長岡支部
取引態様: 一般
ホームページ: https://www.chikenjimusyo.co.jp