物件掲載企業数:297|賃貸物件:3,620件|売買物件:3,321件|今週の登録物件:251
閲覧中のブラウザ(インターネットエクスプローラー)は非推奨ブラウザです。
物件が正しく表示されなかったり、正しく検索されない場合があります。最新のブラウザ(Google Chrome・Edgeなど)にてご利用お願いいたします。
  

長岡市宝5丁目5番地9 中古一戸建て 3LDK 23,000,000円の物件情報

敷地は広めな74.7坪! 駐車スペース4台(3台分のカーポート設置済み)

物件名/所在地 詳細 価格
宝5丁目中古住宅
長岡市宝5丁目5番地9
  • 土地面積
    :246.96㎡ /74.7坪
  • 建物面積
    :133.12㎡ /40.26坪
  • 間取り
    :3LDK
  • 築年月
    :2009年9月
23,000,000
  • 宝5丁目中古住宅
    株式会社 島岡不動産企画
  • この物件を問い合わせる/無料
  • TEL: 0258-39-6030

物件画像

外観 間取り
物件画像
※画像クリックで拡大表示
建物全景とカーポート(3台用)
物件画像
※画像クリックで拡大表示
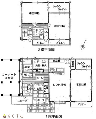
間取り
詳細画像


物件概要

広々とした玄関ホールで、大切なお客様をお出迎え!              お部屋は10帖以上のゆったりとした間取りで収納も充実!
物件コード 00008-200269
物件名 宝5丁目中古住宅
交通 バス:宝4丁目から徒歩4分
物件所在地 長岡市宝5丁目5番地9
物件種別 中古一戸建て
構造 木造 階建 地上2階建
建ぺい率/容積率 60%/200%
建物面積 1階 81.1㎡/ 2階 52.02㎡/ 計 133.12㎡ /40.26坪
土地面積 246.96㎡ /74.7坪
築年月 2009年9月(築16年)
入居(引き渡し)時期 随時入居(引き渡し)可
用途地域 第1種中高層住居専用地域 地目 宅地  (現状:建付地)
都市計画 市街化区域 学校区 黒条小学校(1,067m)・堤岡中学校(1,125m)
形状 間口 12.35m × 奥行 20.01m 道路 西側長岡市道8m(消雪道路)
私道 - その他の制限 -
  • 宝5丁目中古住宅
    株式会社 島岡不動産企画
  • この物件を問い合わせる/無料
  • TEL: 0258-39-6030

物件詳細情報

所在階/階数 - 号室 -
販売価格 23,000,000円 方位 西
間取り 3LDK (洋室:12、10、10)
LDK16
専有面積 - バルコニー面積 -
その他面積 - 駐車場 -
管理費 - 修繕積立金 -
現況 空家
仲介手数料 825,000円
利用制限 -
設備 日当り良好、閑静な住宅街、新築時図面あり、建物確認・完了検査済証あり、LDK15帖以上、全室フローリング、駐車3台以上可能、南向き、TVインターホン、複層ガラス、システムキッチン、IHクッキングヒーター、3口コンロ、追いだき機能付き、バス1坪以上、温水洗浄便座、トイレ2か所以上、シャワー付き洗面台、床暖房、24時間換気システム、都市ガス、上水道、下水道、全居室収納あり、シューズインクローゼット
取引態様 一般
備考 ■床暖房と温水配管で長岡の冬も安心!    
  床暖房(1階リビング、洋室、脱衣、トイレ)          
  各部屋に温水配管済み(温水ルームヒーターをご準備下さい)    
■テレビ付の広めなお風呂で、一日の疲れをリフレッシュ!
取り扱い会社

株式会社 島岡不動産企画

新潟県長岡市西新町1-8-11

情報登録日 2025/12/18 次回更新予定日 2026/01/02
取引条件有効期限 2026/03/31
  • 宝5丁目中古住宅
    株式会社 島岡不動産企画
  • この物件を問い合わせる/無料
  • TEL: 0258-39-6030

この物件の地図・周辺情報・行政情報

この物件の周辺情報・行政情報を詳しく見る
【周辺情報】
物件の近くにあるコンビニや銀行・学校など、アイコン付のマップで詳しく表示できます!
【行政情報】
水道料や下水道料・ガス料金など、暮らしに関係のある情報を表示しています。
デイリーヤマザキ 長岡宝3丁目店(コンビニ)まで460m
黒条内科・消化器クリニック(病院)まで850m
長岡信用金庫 宝支店(銀行)まで670m
長岡宝郵便局(郵便局)まで570m

※カメラのアイコンがある場合は、マウスをポイントするとその施設の画像がご覧いただけます。


担当取扱い店舗情報

取扱い店舗画像
株式会社 島岡不動産企画
TEL: 0258-39-6030
所在地: 新潟県長岡市西新町1-8-11
交通: 「新町小学校前」バス停徒歩1分
営業時間: 9:00~18:30/定休日:日曜・祭日
免許番号: 新潟県知事(4)4829号 この会社の情報を詳しく見る
所属団体名: 公益社団法人 新潟県宅地建物取引業協会
取引態様: 一般
ホームページ: http://www.shimaoka.co.jp