物件掲載企業数:301|賃貸物件:3,194件|売買物件:3,237件|今週の登録物件:240
閲覧中のブラウザ(インターネットエクスプローラー)は非推奨ブラウザです。
物件が正しく表示されなかったり、正しく検索されない場合があります。最新のブラウザ(Google Chrome・Edgeなど)にてご利用お願いいたします。
  

新潟県長岡市陽光台4丁目1379番地164 新築一戸建て 2LDK 45,000,000円の物件情報

2台分のインナーガレージと2つの坪庭のある邸宅です。 広いバルコニーは贅沢なひとときを過ごせる特別な空間です。

物件名/所在地 詳細 価格
【未入居】 丘陵公園モデルハウス
新潟県長岡市陽光台4丁目1379番地164
  • 土地面積
    :205.22㎡ /62.07坪
  • 建物面積
    :107.64㎡ /32.56坪
  • 間取り
    :2LDK
  • 築年月
    :2024年12月
45,000,000
  • 【未入居】 丘陵公園モデルハウス
    株式会社 島岡不動産企画
  • この物件を問い合わせる/無料
  • TEL: 0258-39-6030

物件画像

外観 間取り
物件画像
※画像クリックで拡大表示
外観
物件画像
※画像クリックで拡大表示
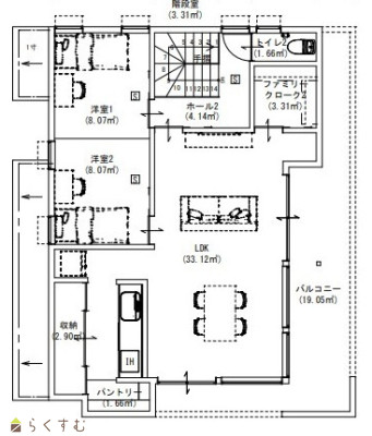
平面図(1階)
詳細画像


物件概要

物件コード 00008-200265
物件名 【未入居】 丘陵公園モデルハウス
交通 駅:信越線 来迎寺駅から徒歩100分、バス:陽光台3丁目から徒歩7分
物件所在地 新潟県長岡市陽光台4丁目1379番地164
物件種別 新築一戸建て
構造 木造 階建 地上2階建
建ぺい率/容積率 60%/200%
建物面積 1階 41.4㎡/ 2階 66.24㎡/ 計 107.64㎡ /32.56坪
土地面積 205.22㎡ /62.07坪
築年月 2024年12月(築1年)
入居(引き渡し)時期 随時入居(引き渡し)可
用途地域 第1種中高層住居専用地域 地目 宅地  (現状:宅地)
都市計画 市街化区域 学校区 青葉台小学校(1,350m)・青葉台中学校(1,941m)
形状 間口 14.64m × 奥行 14.01m 道路 東側 長岡市道 幅員約8m(消雪道路)
私道 - その他の制限 陽光台地区地区計画、第二種高度地区、建築基準法第22条指定区域
  • 【未入居】 丘陵公園モデルハウス
    株式会社 島岡不動産企画
  • この物件を問い合わせる/無料
  • TEL: 0258-39-6030

物件詳細情報

所在階/階数 - 号室 -
販売価格 45,000,000円 方位 -
間取り 2LDK (洋室:6、9)
LDK20
洋室(9帖)を間仕切り壁で3LDKに変更可能です(工事費は買主様負担)
専有面積 - バルコニー面積 -
その他面積 19.05㎡ /5.76坪  バルコニー 駐車場 -
管理費 - 修繕積立金 -
現況 空家
仲介手数料 1,433,850円
利用制限 -
設備 高台に立地、整形地、前面道路6m以上、日当り良好、閑静な住宅街、耐震構造、建物確認・完了検査済証あり、LDK15畳以上、全室フローリング、駐車場3台以上、庭あり、TVインターホン、複層ガラス、システムキッチン、IHクッキングヒーター、食器洗浄乾燥機、3口コンロ、追いだき機能付き、浴室暖房乾燥機、バス1坪以上、温水洗浄便座、シャワー付き洗面台、エアコン、24時間換気システム、省エネ給湯、都市ガス、上水道、下水道、電気、ウォークインクローゼット、シューズBOX、LAN端子、照明器具付き、即引き渡し可能
取引態様 一般
備考 設置されている家具家電はご希望があればお譲り致します。
建物未登記のため登記が必要です。(買主様負担)
KEEP:S様施工(株式会社KENYOU様)    
消雪組合費・町内会費が別途必要です。
取り扱い会社

株式会社 島岡不動産企画

新潟県長岡市西新町1-8-11

情報登録日 2026/04/13 次回更新予定日 2026/05/13
取引条件有効期限 2025/10/31
  • 【未入居】 丘陵公園モデルハウス
    株式会社 島岡不動産企画
  • この物件を問い合わせる/無料
  • TEL: 0258-39-6030

この物件の地図・周辺情報・行政情報

この物件の周辺情報・行政情報を詳しく見る
【周辺情報】
物件の近くにあるコンビニや銀行・学校など、アイコン付のマップで詳しく表示できます!
【行政情報】
水道料や下水道料・ガス料金など、暮らしに関係のある情報を表示しています。

担当取扱い店舗情報

取扱い店舗画像
株式会社 島岡不動産企画
TEL: 0258-39-6030
所在地: 新潟県長岡市西新町1-8-11
交通: 「新町小学校前」バス停徒歩1分
営業時間: 9:00~18:30/定休日:日曜・祭日
免許番号: 新潟県知事(4)4829号 この会社の情報を詳しく見る
所属団体名: 公益社団法人 新潟県宅地建物取引業協会
取引態様: 一般
ホームページ: http://www.shimaoka.co.jp