物件掲載企業数:298|賃貸物件:2,836件|売買物件:3,240件|今週の登録物件:336
閲覧中のブラウザ(インターネットエクスプローラー)は非推奨ブラウザです。
物件が正しく表示されなかったり、正しく検索されない場合があります。最新のブラウザ(Google Chrome・Edgeなど)にてご利用お願いいたします。
  

新潟県三条市石上2丁目327番2 新築一戸建て 3LDK 23,800,000円の物件情報

コンビニ・スーパーが徒歩圏内◆時短が叶う家事動線◆1坪分の物干しスペース♪

物件名/所在地 詳細 価格
三条市石上2丁目 建売住宅
新潟県三条市石上2丁目327番2
  • 土地面積
    :192.49㎡ /58.22坪
  • 建物面積
    :86.75㎡ /26.24坪
  • 間取り
    :3LDK
  • 築年月
    :2026年4月
23,800,000
  • 三条市石上2丁目 建売住宅
    有限会社 一代工務店
  • この物件を問い合わせる/無料
  • TEL: 0258-34-2221

物件画像

外観 間取り
物件画像
※画像クリックで拡大表示
※画像はイメージとなり実物と異なる場合があります。
物件画像
※画像クリックで拡大表示
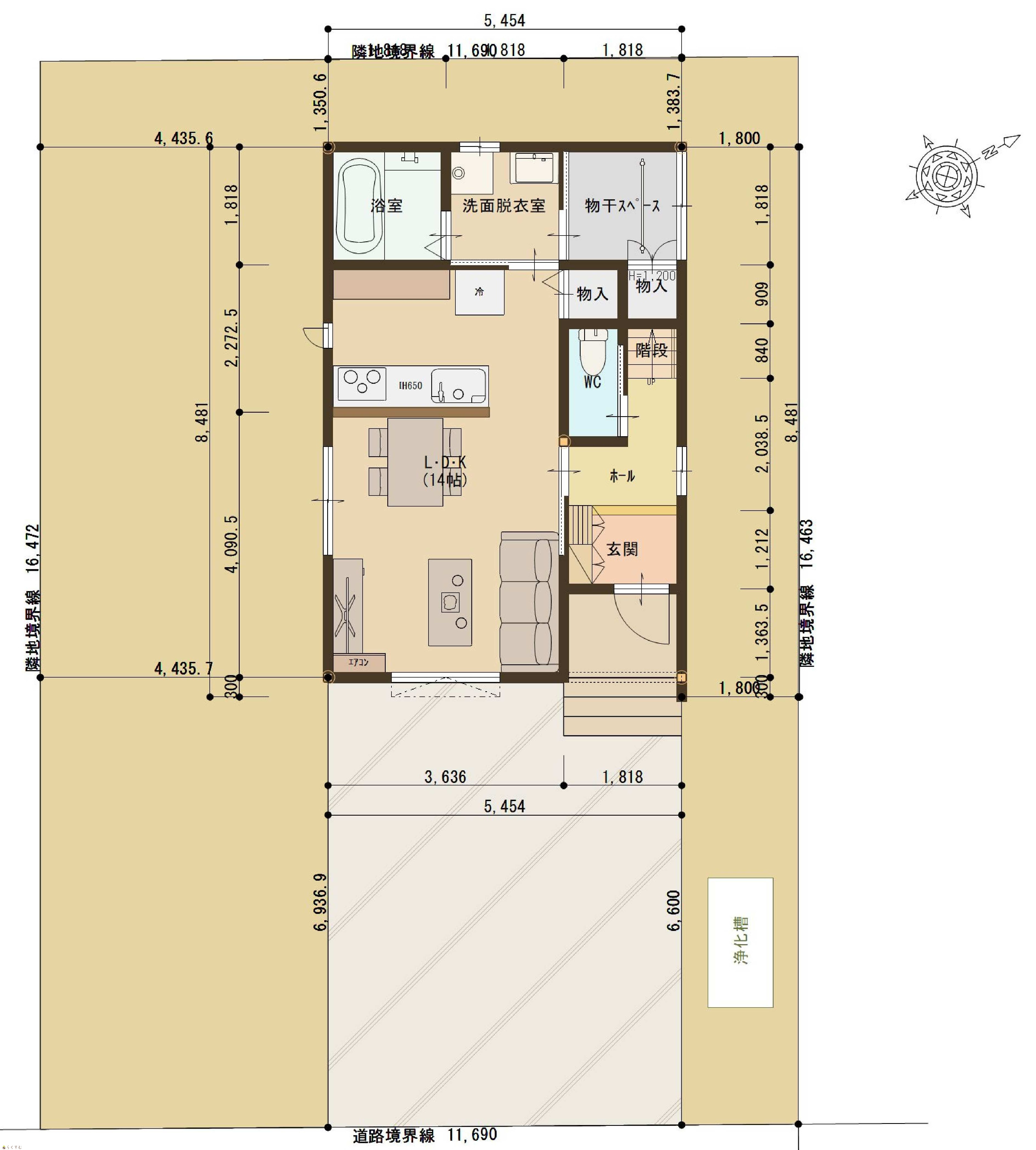
地型付間取り図
詳細画像


物件概要

<令和8年4月完成予定>◆セブンイレブンやリオンドールが徒歩圏内でお買い物に便利♪ ◆上林小学校・第三中学校エリアです。 ◆家族団欒を眺めながら料理ができる、開放感のある対面キッチンを採用。 ◆水回りをまとめることで、家事動線を短くし家事の負担を軽減。 ◆1坪分の物干しスペースを確保。天候も気にせずに洗濯ができます。 ◆主寝室にはウォークインクロークを設けました。
物件コード 00007-200762
物件名 三条市石上2丁目 建売住宅
交通 駅:弥彦線 北三条駅から徒歩21分、バス:石上二丁目から徒歩3分
物件所在地 新潟県三条市石上2丁目327番2
物件種別 新築一戸建て
構造 木造 階建 地上2階建
建ぺい率/容積率 60%/200%
建物面積 計 86.75㎡ /26.24坪
土地面積 192.49㎡ /58.22坪
築年月 2026年4月完成予定
入居(引き渡し)時期 相談
用途地域 第1種住居地域 地目 宅地
都市計画 非線引き都市計画区域 学校区 上林小学校(883m)・第三中学校(779m)
形状 - 道路 南東側:市道 4.6m
私道 - その他の制限 -
  • 三条市石上2丁目 建売住宅
    有限会社 一代工務店
  • この物件を問い合わせる/無料
  • TEL: 0258-34-2221

物件詳細情報

所在階/階数 - 号室 -
販売価格 23,800,000円 方位 南東
間取り 3LDK (洋室:8、6、6)
LDK14
建築確認番号:NK第25長00405号
専有面積 - バルコニー面積 -
その他面積 - 駐車場 -
管理費 - 修繕積立金 -
現況 指定なし
仲介手数料 なし
利用制限 -
設備 日当り良好、BELS/省エネ基準適合認定建物、全室フローリング、駐車場2台以上、庭あり、TVインターホン、複層ガラス、ディンプルキー、システムキッチン、IHクッキングヒーター、3口コンロ、追いだき機能付き、バス1坪以上、温水洗浄便座、シャワー付き洗面台、エアコン、24時間換気システム、省エネ給湯、高気密高断熱住宅、都市ガス、上水道、浄化槽、電気、ウォークインクローゼット、全居室収納あり、床下収納、シューズBOX、照明器具付き
取引態様 売主
備考 ・22条指定区域
※物件掲載内容と現況に相違がある場合は現況を優先と致します。
詳細はお気軽にお問い合わせください。
担当:小林
携帯:090-1438-1795
取り扱い会社

有限会社 一代工務店

新潟県長岡市信濃2-5-36

情報登録日 2026/03/08 次回更新予定日 2026/04/02
取引条件有効期限 2026/05/01
  • 三条市石上2丁目 建売住宅
    有限会社 一代工務店
  • この物件を問い合わせる/無料
  • TEL: 0258-34-2221

この物件の地図・周辺情報・行政情報

この物件の周辺情報・行政情報を詳しく見る
【周辺情報】
物件の近くにあるコンビニや銀行・学校など、アイコン付のマップで詳しく表示できます!
【行政情報】
水道料や下水道料・ガス料金など、暮らしに関係のある情報を表示しています。
セブン-イレブン 三条西裏館店(コンビニ)まで720m
ウエルシア新潟三条店 (調剤薬局)(ドラッグストア)まで790m
三条石上郵便局(郵便局)まで600m

※カメラのアイコンがある場合は、マウスをポイントするとその施設の画像がご覧いただけます。


担当取扱い店舗情報

取扱い店舗画像
有限会社 一代工務店
TEL: 0258-34-2221
所在地: 新潟県長岡市信濃2-5-36
交通: 長岡駅
営業時間: 9:00~18:00/定休日:
免許番号: 新潟県知事(12)2196号 この会社の情報を詳しく見る
所属団体名: 新潟県宅地建物取引業協会 長岡支部
取引態様: 売主
ホームページ: http://www.ichidai-k.co.jp/