物件掲載企業数:298|賃貸物件:2,839件|売買物件:3,239件|今週の登録物件:343
閲覧中のブラウザ(インターネットエクスプローラー)は非推奨ブラウザです。
物件が正しく表示されなかったり、正しく検索されない場合があります。最新のブラウザ(Google Chrome・Edgeなど)にてご利用お願いいたします。
  

新潟県長岡市草生津2丁目88番1 新築一戸建て 2LDK 23,800,000円の物件情報

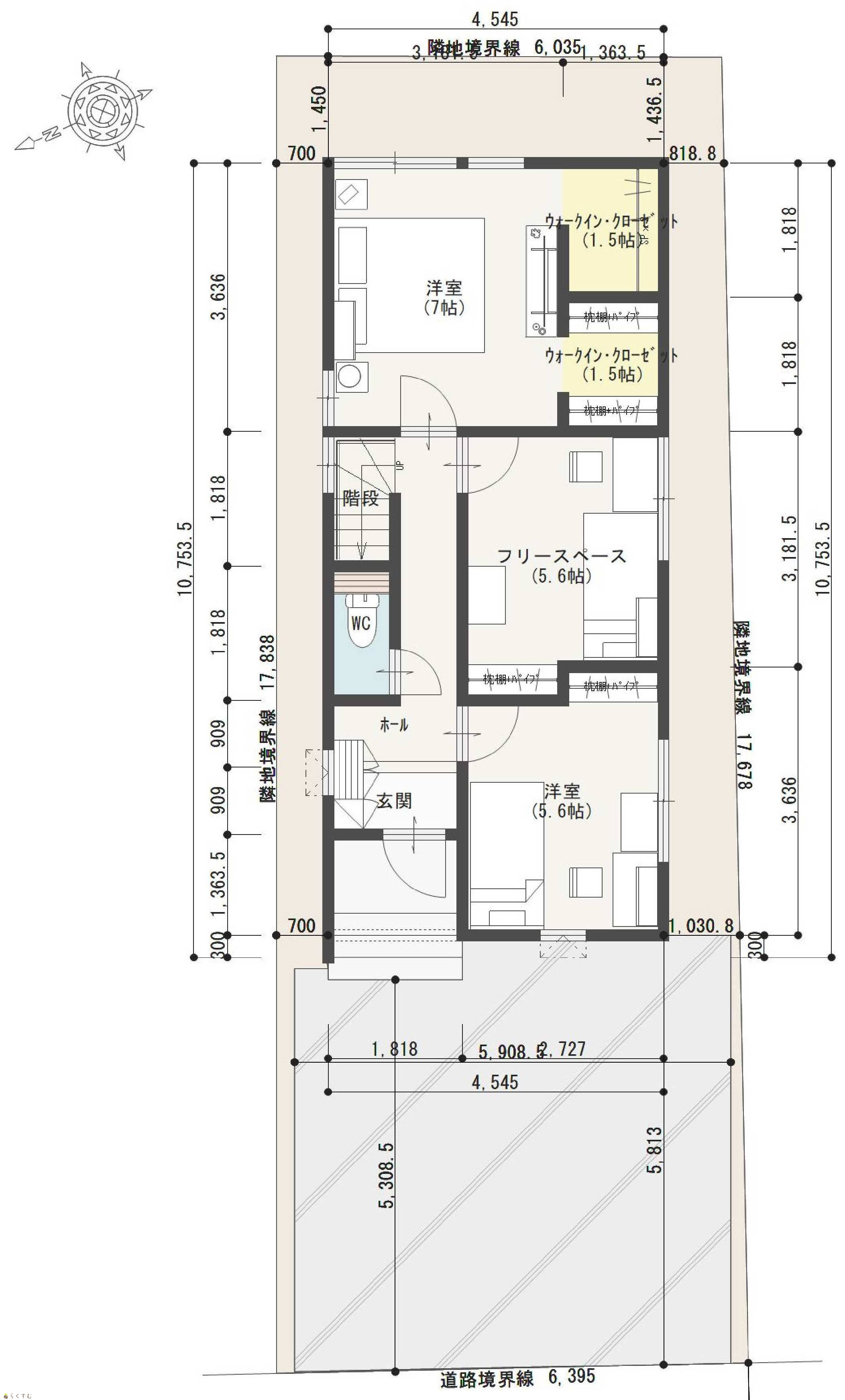
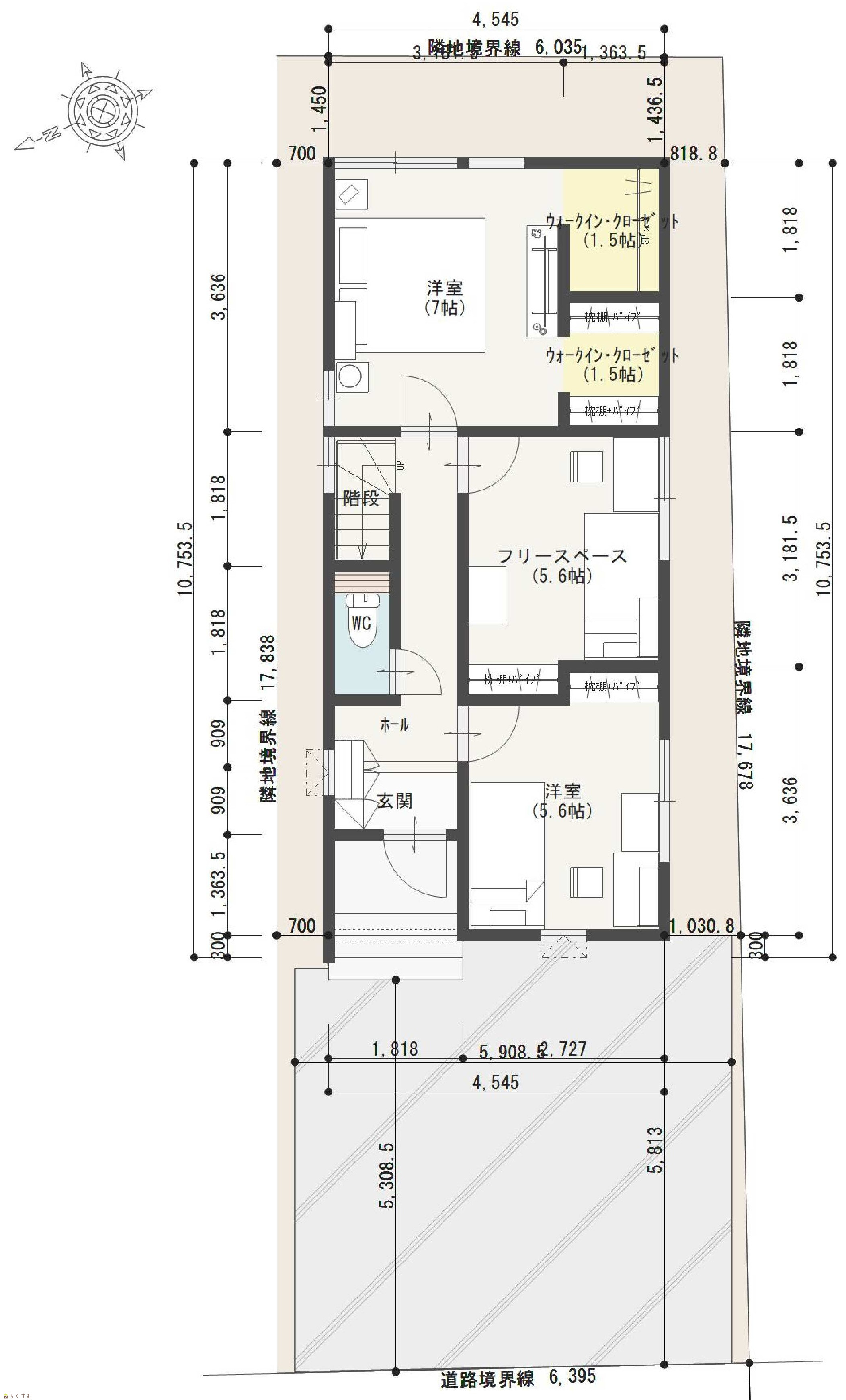
2階LDKは日当たり良好♪◆2SLDK◆物干しスペース◆使いやすい家事動線

物件名/所在地 詳細 価格
長岡市草生津2丁目 建売住宅
新潟県長岡市草生津2丁目88番1
  • 土地面積
    :114.71㎡ /34.69坪
  • 建物面積
    :92.54㎡ /27.99坪
  • 間取り
    :2LDK
  • 築年月
    :2026年4月
23,800,000
  • 長岡市草生津2丁目 建売住宅
    有限会社 一代工務店
  • この物件を問い合わせる/無料
  • TEL: 0258-34-2221

物件画像

外観 間取り
物件画像
※画像クリックで拡大表示
外観
物件画像
※画像クリックで拡大表示
間取り
詳細画像


物件概要

<令和8年4月完成予定>●千手小学校、南中学校区の新築2SLDK♪ ●脱衣室に物干しスペース完備。使いやすい家事動線! ●2階LDKは日当たり良好♪開放感のある空間に ●前面道路には消雪パイプも完備で冬も安心!
物件コード 00007-200750
物件名 長岡市草生津2丁目 建売住宅
交通 駅:信越線 長岡駅から徒歩24分、バス:健康センター前から徒歩5分
物件所在地 新潟県長岡市草生津2丁目88番1
物件種別 新築一戸建て
構造 木造 階建 地上2階建
建ぺい率/容積率 60%/200%
建物面積 計 92.54㎡ /27.99坪
土地面積 114.71㎡ /34.69坪
築年月 2026年4月完成予定
入居(引き渡し)時期 相談
用途地域 第1種住居地域 地目 宅地
都市計画 市街化区域 学校区 千手小学校(360m)・南中学校(746m)
形状 - 道路 西側:市道5.8m
私道 - その他の制限 -
  • 長岡市草生津2丁目 建売住宅
    有限会社 一代工務店
  • この物件を問い合わせる/無料
  • TEL: 0258-34-2221

物件詳細情報

所在階/階数 - 号室 -
販売価格 23,800,000円 方位 西
間取り 2LDK (洋室:7、5.6)
LDK15.8
建築確認番号:NK第25長00594号
専有面積 - バルコニー面積 -
その他面積 - 駐車場 -
管理費 - 修繕積立金 -
現況 指定なし
仲介手数料 なし
利用制限 -
設備 整形地、日当り良好、閑静な住宅街、BELS/省エネ基準適合認定建物、LDK15畳以上、全室フローリング、駐車場2台以上、南向き、TVインターホン、複層ガラス、ディンプルキー、システムキッチン、IHクッキングヒーター、3口コンロ、追いだき機能付き、バス1坪以上、温水洗浄便座、シャワー付き洗面台、エアコン、24時間換気システム、省エネ給湯、高気密高断熱住宅、都市ガス、上水道、下水道、電気、ウォークインクローゼット、全居室収納あり、床下収納、シューズBOX、照明器具付き
取引態様 売主
備考 ・第三種高度地区
・22条指定区域
※物件掲載内容と現況に相違がある場合は現況を優先と致します。
詳細はお気軽にお問い合わせください。
担当:沼田
携帯:070-8449-3715
取り扱い会社

有限会社 一代工務店

新潟県長岡市信濃2-5-36

情報登録日 2026/03/08 次回更新予定日 2026/04/02
取引条件有効期限 2026/05/01
  • 長岡市草生津2丁目 建売住宅
    有限会社 一代工務店
  • この物件を問い合わせる/無料
  • TEL: 0258-34-2221

この物件の地図・周辺情報・行政情報

この物件の周辺情報・行政情報を詳しく見る
【周辺情報】
物件の近くにあるコンビニや銀行・学校など、アイコン付のマップで詳しく表示できます!
【行政情報】
水道料や下水道料・ガス料金など、暮らしに関係のある情報を表示しています。
ローソン 長岡幸町店(コンビニ)まで540m
長岡信用金庫 千手支店(銀行)まで740m
長岡柳原郵便局(郵便局)まで760m

※カメラのアイコンがある場合は、マウスをポイントするとその施設の画像がご覧いただけます。


担当取扱い店舗情報

取扱い店舗画像
有限会社 一代工務店
TEL: 0258-34-2221
所在地: 新潟県長岡市信濃2-5-36
交通: 長岡駅
営業時間: 9:00~18:00/定休日:
免許番号: 新潟県知事(12)2196号 この会社の情報を詳しく見る
所属団体名: 新潟県宅地建物取引業協会 長岡支部
取引態様: 売主
ホームページ: http://www.ichidai-k.co.jp/