物件掲載企業数:298|賃貸物件:2,836件|売買物件:3,240件|今週の登録物件:336
閲覧中のブラウザ(インターネットエクスプローラー)は非推奨ブラウザです。
物件が正しく表示されなかったり、正しく検索されない場合があります。最新のブラウザ(Google Chrome・Edgeなど)にてご利用お願いいたします。
  

新潟県柏崎市半田1丁目字前谷内975番1 新築一戸建て 3LDK 24,800,000円の物件情報

敷地は77坪!◆スーパー・コンビニ、小中学校も徒歩圏内◆乾太くん設置◆WIC

物件名/所在地 詳細 価格
柏崎市半田1丁目 建売住宅
新潟県柏崎市半田1丁目字前谷内975番1
  • 土地面積
    :257㎡ /77.74坪
  • 建物面積
    :89.23㎡ /26.99坪
  • 間取り
    :3LDK
  • 築年月
    :2026年1月
24,800,000
  • 柏崎市半田1丁目 建売住宅
    有限会社 一代工務店
  • この物件を問い合わせる/無料
  • TEL: 0258-34-2221

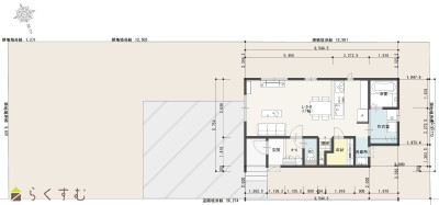
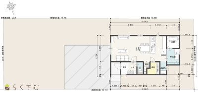
物件画像

外観 間取り
物件画像
※画像クリックで拡大表示
※画像はイメージとなり実物と異なる場合があります。
物件画像
※画像クリックで拡大表示
地型付間取り図
詳細画像
動画


物件概要

◆敷地は余裕のある77坪となっています。 ◆半田小学校・鏡が沖中学校エリアです。 ◆スーパー・コンビニ等、小中学校も徒歩圏内です。 ◆LDKは17帖、対面キッチンとなっています。 ◆脱衣室には乾太くんデラックスが設置されています。 ◆寝室にはウォークインクローゼットが設置されています。 ◆洗面台を脱衣室と別にすることで、プライバシーに配慮しました。 ◆お庭10坪以上付きで、お子様の遊び場や、BBQ、家庭菜園などお楽しみ頂けます。 ◆西側には市の水路が有ります。
物件コード 00007-200735
物件名 柏崎市半田1丁目 建売住宅
交通 駅:信越線 茨目駅から徒歩19分、バス:半田中央から徒歩4分
物件所在地 新潟県柏崎市半田1丁目字前谷内975番1
物件種別 新築一戸建て
構造 木造 階建 地上2階建
建ぺい率/容積率 70%/200%
建物面積 計 89.23㎡ /26.99坪
土地面積 257㎡ /77.74坪
築年月 2026年1月(築2ヶ月)
入居(引き渡し)時期 随時入居(引き渡し)可
用途地域 無指定 地目 宅地
都市計画 非線引き都市計画区域 学校区 半田小学校(419m)・鏡が沖中学校(772m)
形状 - 道路 北側:市道 約5.5m~5.6m
私道 - その他の制限 -
  • 柏崎市半田1丁目 建売住宅
    有限会社 一代工務店
  • この物件を問い合わせる/無料
  • TEL: 0258-34-2221

物件詳細情報

所在階/階数 - 号室 -
販売価格 24,800,000円 方位
間取り 3LDK (洋室:7、6、6)
LDK17
専有面積 - バルコニー面積 -
その他面積 - 駐車場 -
管理費 - 修繕積立金 -
現況 指定なし
仲介手数料 なし
利用制限 -
設備 角地、整形地、日当り良好、スーパー近く、BELS/省エネ基準適合認定建物、フラット35S適合、LDK15畳以上、全室フローリング、駐車場2台以上、駐車場3台以上、南向き、庭あり、TVインターホン、複層ガラス、ディンプルキー、システムキッチン、IHクッキングヒーター、3口コンロ、追いだき機能付き、バス1坪以上、温水洗浄便座、シャワー付き洗面台、エアコン、24時間換気システム、省エネ給湯、高気密高断熱住宅、都市ガス、上水道、下水道、電気、ウォークインクローゼット、全居室収納あり、床下収納、シューズBOX、照明器具付き、即引き渡し可能、バリアフリー
取引態様 売主
備考 ・22条指定区域
※物件掲載内容と現況に相違がある場合は現況を優先と致します。
詳細はお気軽にお問い合わせください。
担当:藤崎
携帯:090-2763-5443
取り扱い会社

有限会社 一代工務店

新潟県長岡市信濃2-5-36

情報登録日 2026/03/08 次回更新予定日 2026/04/02
取引条件有効期限 2026/05/01
  • 柏崎市半田1丁目 建売住宅
    有限会社 一代工務店
  • この物件を問い合わせる/無料
  • TEL: 0258-34-2221

この物件の地図・周辺情報・行政情報

この物件の周辺情報・行政情報を詳しく見る
【周辺情報】
物件の近くにあるコンビニや銀行・学校など、アイコン付のマップで詳しく表示できます!
【行政情報】
水道料や下水道料・ガス料金など、暮らしに関係のある情報を表示しています。
Kマートチェーン 朝日が丘店(コンビニ)まで220m
セブン-イレブン 柏崎半田3丁目店(コンビニ)まで670m
クスリのアオキ 半田店(ドラッグストア)まで650m
柏崎信用金庫 半田支店(銀行)まで590m
柏崎半田郵便局(郵便局)まで120m

※カメラのアイコンがある場合は、マウスをポイントするとその施設の画像がご覧いただけます。


担当取扱い店舗情報

取扱い店舗画像
有限会社 一代工務店
TEL: 0258-34-2221
所在地: 新潟県長岡市信濃2-5-36
交通: 長岡駅
営業時間: 9:00~18:00/定休日:
免許番号: 新潟県知事(12)2196号 この会社の情報を詳しく見る
所属団体名: 新潟県宅地建物取引業協会 長岡支部
取引態様: 売主
ホームページ: http://www.ichidai-k.co.jp/