物件掲載企業数:297|賃貸物件:3,624件|売買物件:3,288件|今週の登録物件:276
閲覧中のブラウザ(インターネットエクスプローラー)は非推奨ブラウザです。
物件が正しく表示されなかったり、正しく検索されない場合があります。最新のブラウザ(Google Chrome・Edgeなど)にてご利用お願いいたします。
  

新潟県長岡市大山3丁目5-22 新築一戸建て 3LDK 27,800,000円の物件情報

55坪の敷地で駐車スペース3台可能。余裕のある敷地です。小学校・中学校・ウオロクなど近く、七日町のアクロスプラザも近いとても便利な立地です。 希望が丘小学校区・西中学校区エリアです。

物件名/所在地 詳細 価格
長岡市大山3丁目 建売住宅 2号棟
新潟県長岡市大山3丁目5-22
  • 土地面積
    :183.37㎡ /55.46坪
  • 建物面積
    :89.23㎡ /26.99坪
  • 間取り
    :3LDK
  • 築年月
    :2025年7月
27,800,000
  • 長岡市大山3丁目 建売住宅 2号棟
    有限会社 一代工務店
  • この物件を問い合わせる/無料
  • TEL: 0258-34-2221

物件画像

外観 間取り
物件画像
※画像クリックで拡大表示
外観
物件画像
※画像クリックで拡大表示
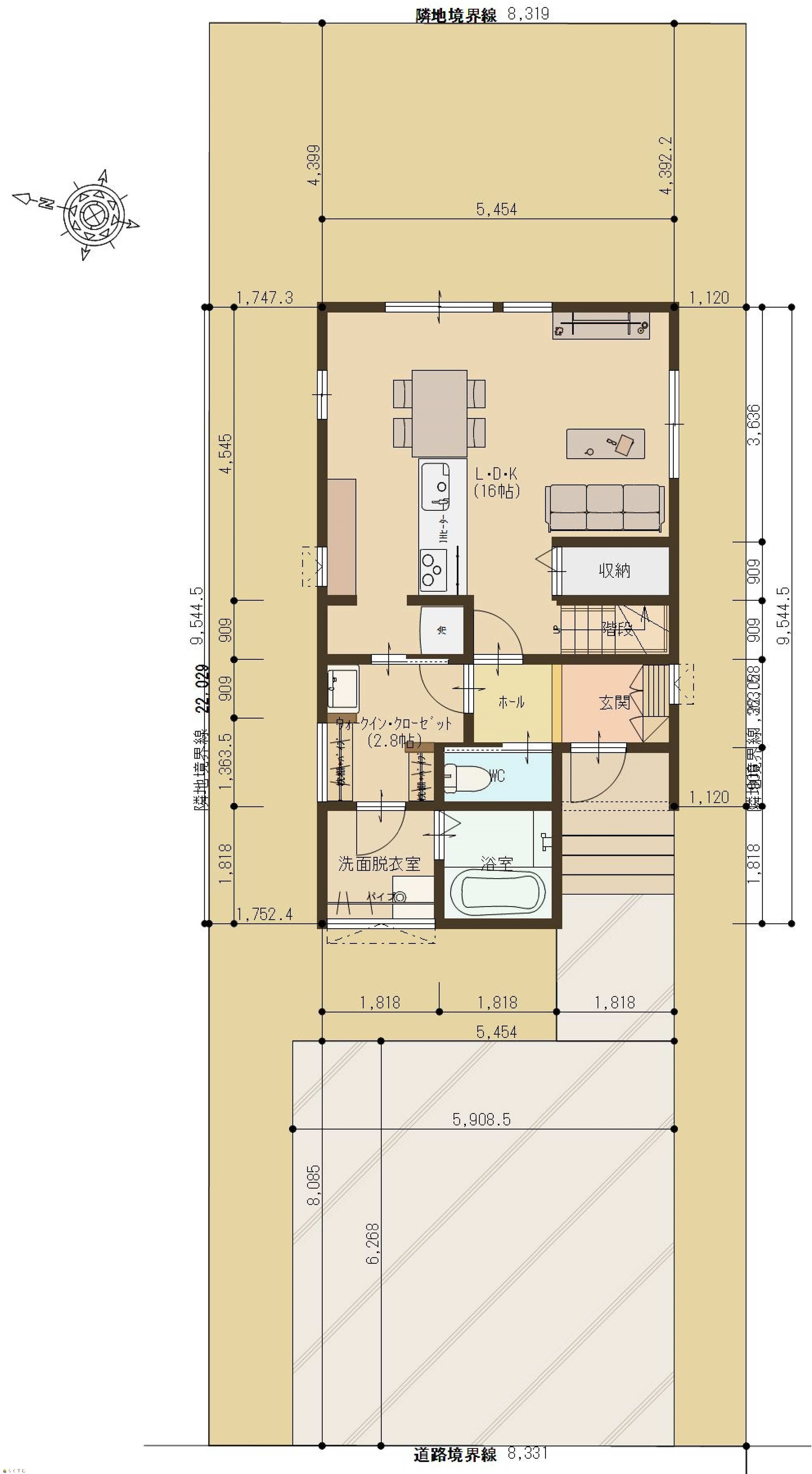
地型付間取り図
詳細画像
動画


物件概要

「子育てグリーン住宅支援事業」対象物件。前面道路は市道8mと広く、消雪パイプが設置されています。 キッチンからリビングが見渡せる間取り。LDKは16帖となっています。玄関に入ってすぐにウォークインクローゼットを設けました。帰宅したらすぐ部屋着に着替え、そのまま家事に取り掛かれる便利な動線です。脱衣室、洗濯機も隣ですので、取り出しやすく、乾かしたらすぐ仕舞えます。 2階寝室にもウオークインクローゼットがついています。
物件コード 00007-200703
物件名 長岡市大山3丁目 建売住宅 2号棟
交通 駅:信越線 宮内駅から徒歩54分、バス:大山2丁目から徒歩3分
物件所在地 新潟県長岡市大山3丁目5-22
物件種別 新築一戸建て
構造 木造 階建 地上2階建
建ぺい率/容積率 50%/80%
建物面積 計 89.23㎡ /26.99坪
土地面積 183.37㎡ /55.46坪
築年月 2025年7月(築5ヶ月)
入居(引き渡し)時期 相談
用途地域 第1種低層住居専用地域 地目 宅地
都市計画 市街化区域 学校区 希望が丘小学校(435m)・西中学校(300m)
形状 - 道路 西側:市道8.0m
私道 - その他の制限 -
  • 長岡市大山3丁目 建売住宅 2号棟
    有限会社 一代工務店
  • この物件を問い合わせる/無料
  • TEL: 0258-34-2221

物件詳細情報

所在階/階数 - 号室 -
販売価格 27,800,000円 方位 西
間取り 3LDK (洋室:7、6、6)
LDK16
専有面積 - バルコニー面積 -
その他面積 - 駐車場 -
管理費 - 修繕積立金 -
現況 指定なし
仲介手数料 なし
利用制限 -
設備 整形地、前面道路6m以上、日当り良好、スーパー近く、BELS/省エネ基準適合認定建物、フラット35S適合、LDK15畳以上、全室フローリング、駐車場2台以上、駐車場3台以上、南向き、庭あり、TVインターホン、複層ガラス、ディンプルキー、システムキッチン、IHクッキングヒーター、3口コンロ、追いだき機能付き、バス1坪以上、温水洗浄便座、シャワー付き洗面台、エアコン、24時間換気システム、省エネ給湯、高気密高断熱住宅、都市ガス、上水道、下水道、電気、ウォークインクローゼット、全居室収納あり、床下収納、シューズBOX、照明器具付き、即引き渡し可能、バリアフリー
取引態様 売主
備考 ※物件掲載内容と現況に相違がある場合は現況を優先と致します。
詳細はお気軽にお問い合わせください。
担当:藤崎
携帯:090-2763-5443
取り扱い会社

有限会社 一代工務店

新潟県長岡市信濃2-5-36

情報登録日 2025/11/01 次回更新予定日 2025/12/19
取引条件有効期限 2026/01/01
  • 長岡市大山3丁目 建売住宅 2号棟
    有限会社 一代工務店
  • この物件を問い合わせる/無料
  • TEL: 0258-34-2221

この物件の地図・周辺情報・行政情報

この物件の周辺情報・行政情報を詳しく見る
【周辺情報】
物件の近くにあるコンビニや銀行・学校など、アイコン付のマップで詳しく表示できます!
【行政情報】
水道料や下水道料・ガス料金など、暮らしに関係のある情報を表示しています。
ファミリーマート 長岡大島本町店(コンビニ)まで610m
セブンイレブン 長岡北山2丁目店(コンビニ)まで620m
ウオロク 北山店(スーパー)まで530m
クスリのアオキ 大島店(ドラッグストア)まで810m
(株)大光銀行 希望が丘支店(銀行)まで260m
長岡希望が丘郵便局(郵便局)まで460m

※カメラのアイコンがある場合は、マウスをポイントするとその施設の画像がご覧いただけます。


担当取扱い店舗情報

取扱い店舗画像
有限会社 一代工務店
TEL: 0258-34-2221
所在地: 新潟県長岡市信濃2-5-36
交通: 長岡駅
営業時間: 9:00~18:00/定休日:
免許番号: 新潟県知事(12)2196号 この会社の情報を詳しく見る
所属団体名: 新潟県宅地建物取引業協会 長岡支部
取引態様: 売主
ホームページ: http://www.ichidai-k.co.jp/