物件掲載企業数:301|賃貸物件:3,172件|売買物件:3,243件|今週の登録物件:159
閲覧中のブラウザ(インターネットエクスプローラー)は非推奨ブラウザです。
物件が正しく表示されなかったり、正しく検索されない場合があります。最新のブラウザ(Google Chrome・Edgeなど)にてご利用お願いいたします。
  

新潟県上越市大豆1丁目8-43 事務所 66万円の物件情報

山麓線沿いのアクセス良好、見通しの良いオフィス

物件名
所在地
面積
間取り
所在階
築年数
方位
賃料
管理費等
共益費
敷金
保証金
礼金
種別
構造
春日山管財ビル 1F部分
新潟県上越市大豆1丁目8-43
404.52㎡
(122.36坪)
-
1階
29年
-
66万円
55,000円/月
なし
360万円
なし
なし
事務所
鉄骨
  • 春日山管財ビル 1F部分
    有限会社 管財
  • この物件を問い合わせる/無料
  • TEL: 025-543-9402

物件画像

外観 間取り
物件画像
※画像クリックで拡大表示
外観
物件画像
※画像クリックで拡大表示
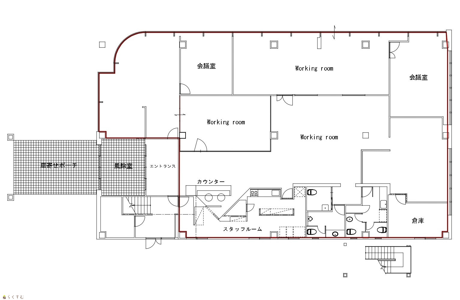
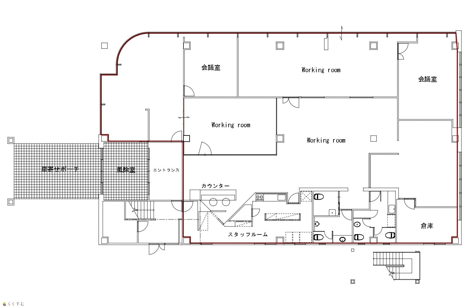
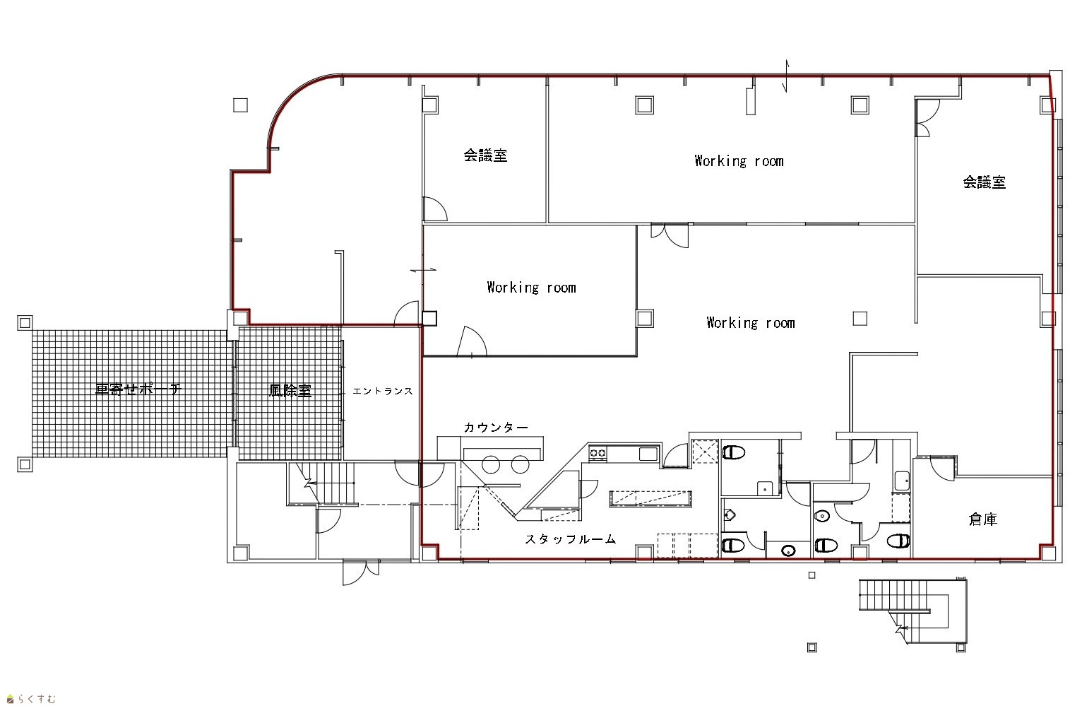
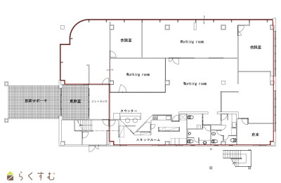
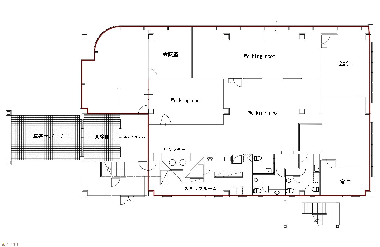
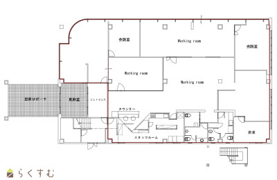
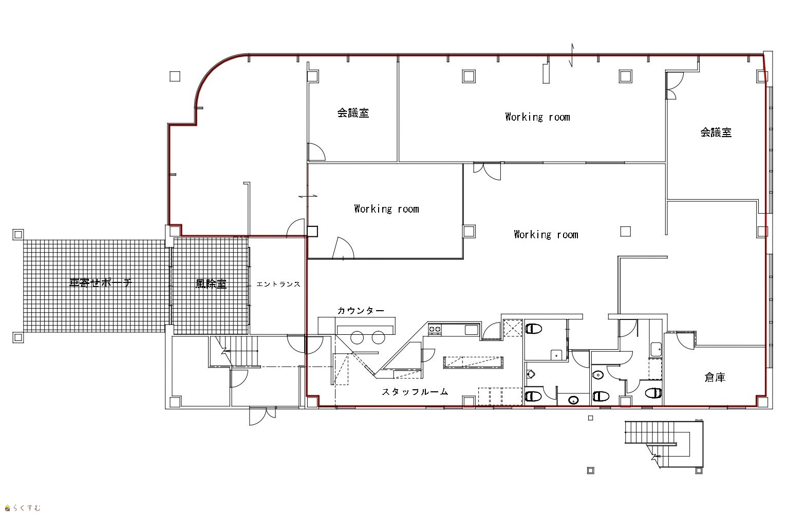
1F間取り(赤枠が専有面積)
詳細画像


物件概要

物件コード 00368-100001
物件名 春日山管財ビル 1F部分
交通 駅:妙高はねうまライン 春日山駅から徒歩16分、バス:春日野一丁目から徒歩2分
所在地 新潟県上越市大豆1丁目8-43
物件種別 事務所
総戸数 1戸
構造 鉄骨 階建 地上2階建
所在階/階数 1階/2階 号室 -
面積 404.52㎡ /122.36坪 方位 -
間取り -
賃料 66万円/月
(税込み金額)
管理費 55,000円/月
共益費含む
礼金 - 敷金 360万円
家賃の6ヶ月分
ほか初期費用 - その他諸費用 -
更新料 - 火災(家財)保険 -
共益費 - 町内費 -
駐車場 専有20台 バイク料金 -
鍵交換費 - 清掃料 -
更新事務手数料 -
保証区分 保証会社+緊急連絡先
保証会社 区分:加入要
保証会社名:その他 (相談の上決定します)
-
連帯保証人 区分:不要
-
仲介手数料 -
築年月 1997年5月(築29年)
利用制限 ペット:相談
学校区 春日小学校(534m)・春日中学校(584m)
設備 1階、オートロック、24時間セキュリティー、エアコン、男女トイレ別、即引き渡し可、駐車場あり
入居時期 相談
取引態様 貸主
備考 ※専有部分は、1F間取り図より赤枠で囲われたエリアとなります。車寄せポーチから風除室、エントランスまでのエリアは共有スペースとなります。
※エアコンは2024年に入れ替え済みです。
※保証区分についての指定は無く、相談の上内容を決定します。
手数料負担割合/配分割合 貸主:-%   借主:-% / 元付:-%   客付:-%  
取り扱い会社

有限会社 管財

新潟県上越市五智1-2-19

情報登録日 2025/06/27 次回更新予定日 2026/05/18
  • 春日山管財ビル 1F部分
    有限会社 管財
  • この物件を問い合わせる/無料
  • TEL: 025-543-9402

この物件の地図・周辺情報・行政情報

この物件の周辺情報・行政情報を詳しく見る
【周辺情報】
物件の近くにあるコンビニや銀行・学校など、アイコン付のマップで詳しく表示できます!
【行政情報】
水道料や下水道料・ガス料金など、暮らしに関係のある情報を表示しています。

担当取扱い店舗情報

取扱い店舗画像
有限会社 管財
TEL: 025-543-9402
所在地: 新潟県上越市五智1-2-19
交通: 妙高はねうまライン「直江津駅」より徒歩10分
営業時間: 平日9:00~17:00/定休日:
免許番号: 新潟県知事(1)第5746号 この会社の情報を詳しく見る
所属団体名: 公社 新潟県宅地建物取引協会 上越支部
取引態様: 貸主