物件掲載企業数:297|賃貸物件:3,624件|売買物件:3,288件|今週の登録物件:262
閲覧中のブラウザ(インターネットエクスプローラー)は非推奨ブラウザです。
物件が正しく表示されなかったり、正しく検索されない場合があります。最新のブラウザ(Google Chrome・Edgeなど)にてご利用お願いいたします。
  

新潟県長岡市東新町1丁目2-7 駐車場 0.8万円の物件情報

長岡バイパスへのアクセス良好、川崎方面や長岡駅、川西方面へもスムーズです。

物件名
所在地
面積
間取り
所在階
築年数
方位
賃料
管理費等
共益費
敷金
保証金
礼金
種別
構造
【賃貸】東新町1丁目 駐車場 NO.3
新潟県長岡市東新町1丁目2-7
-
-
-
-
-
0.8万円
なし
なし
なし
なし
なし
駐車場
-
  • 【賃貸】東新町1丁目 駐車場 NO.3
    有限会社 ブライトサクセス
  • この物件を問い合わせる/無料
  • TEL: 0258-35-2220

物件画像

外観 間取り
物件画像
※画像クリックで拡大表示
駐車場
物件画像
※画像クリックで拡大表示
区画図
詳細画像
動画


物件概要

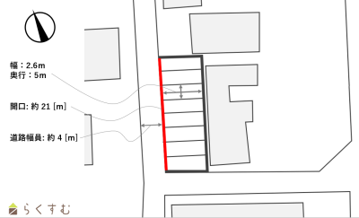
消雪パイプあり・ミニバンも駐車可能です。
物件コード 00320-100007
物件名 【賃貸】東新町1丁目 駐車場 NO.3
交通 駅:信越線 北長岡駅から徒歩17分、バス:昭和通りから徒歩4分
所在地 新潟県長岡市東新町1丁目2-7
物件種別 駐車場
総戸数 -
構造 - 階建 -
所在階/階数 - 号室 -
面積 - 方位 -
間取り -
賃料 0.8万円/月
管理費 -
礼金 - 敷金 -
ほか初期費用 - その他諸費用 振込手数料:880円
※最大の金額です。
更新料 - 火災(家財)保険 -
共益費 - 町内費 -
駐車場 - バイク料金 -
鍵交換費 - 清掃料 -
振込手数料 880円
※最大の金額です。
更新事務手数料 -
保証区分 緊急連絡先のみ
保証会社 区分:指定なし
-
連帯保証人 区分:不要
-
仲介手数料 8,000円
築年月 -
利用制限 -
学校区 新町小学校(478m)・北中学校(1,598m)
設備 即利用可能、融雪井戸あり
入居時期 即入居可
取引態様 仲介
備考 駐車場所はNO.3になります。
手数料負担割合/配分割合 貸主:-%   借主:100% / 元付:100%   客付:-%  
取り扱い会社

有限会社 ブライトサクセス

新潟県長岡市新町1-1-2

情報登録日 2025/11/25 次回更新予定日 2025/12/20
  • 【賃貸】東新町1丁目 駐車場 NO.3
    有限会社 ブライトサクセス
  • この物件を問い合わせる/無料
  • TEL: 0258-35-2220

この物件の地図・周辺情報・行政情報

この物件の周辺情報・行政情報を詳しく見る
【周辺情報】
物件の近くにあるコンビニや銀行・学校など、アイコン付のマップで詳しく表示できます!
【行政情報】
水道料や下水道料・ガス料金など、暮らしに関係のある情報を表示しています。

担当取扱い店舗情報

取扱い店舗画像
有限会社 ブライトサクセス
TEL: 0258-35-2220
所在地: 新潟県長岡市新町1-1-2
交通: 長岡駅
営業時間: 月~金:午前8時00分~午後6時 土日:午前10時00分~午後6時 /定休日:オンラインサービス:午前9時30分~午後9時
免許番号: 新潟県知事(1)第5629号 この会社の情報を詳しく見る
所属団体名: 公社 新潟県宅地建物取引協会 新潟支部
取引態様: 仲介
ホームページ: https://bright-success.net/