物件掲載企業数:297|賃貸物件:3,624件|売買物件:3,313件|今週の登録物件:281
閲覧中のブラウザ(インターネットエクスプローラー)は非推奨ブラウザです。
物件が正しく表示されなかったり、正しく検索されない場合があります。最新のブラウザ(Google Chrome・Edgeなど)にてご利用お願いいたします。
  

新潟県上越市春日野1丁目4番38号 事務所 11万円の物件情報

山麓線近く交通のアクセス良好ーーー!事務所、サロンなどにいかがでしょうか♪♪

物件名
所在地
面積
間取り
所在階
築年数
方位
賃料
管理費等
共益費
敷金
保証金
礼金
種別
構造
new【商談中】ヤマダオフィス Ⅱ
B号室
新潟県上越市春日野1丁目4番38号
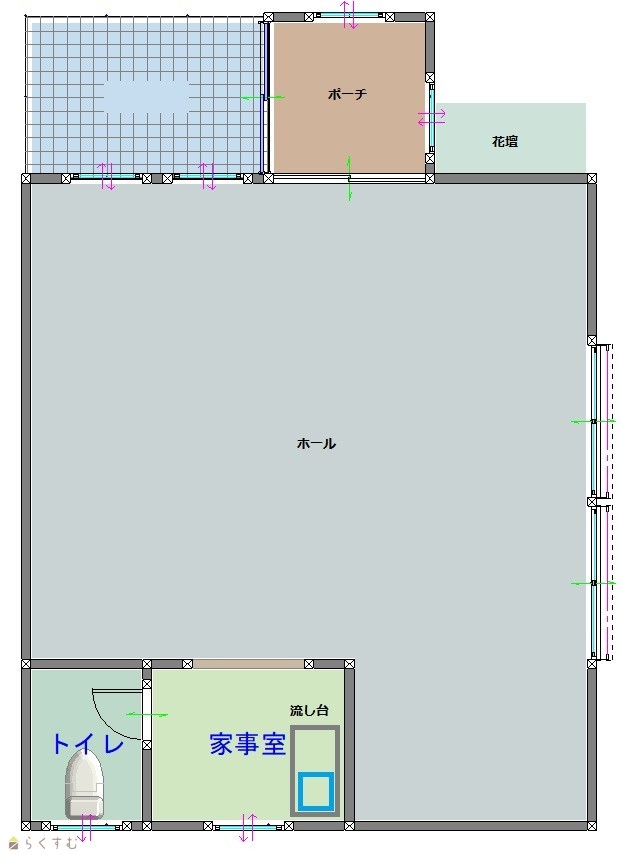
52.99㎡
(16.02坪)
-
1階
6年
-
11万円
2,200円/月
なし
なし
なし
11万円
事務所
木造
  • new【商談中】ヤマダオフィス Ⅱ
    株式会社 お不動さん
  • この物件を問い合わせる/無料
  • TEL: 025-520-8197

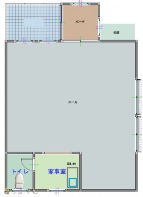
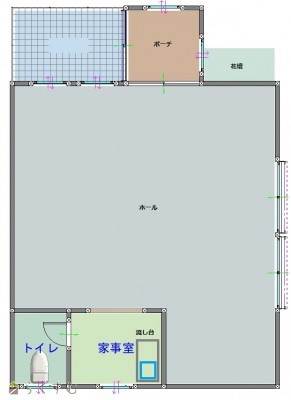
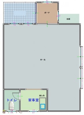
物件画像

外観 間取り
物件画像
※画像クリックで拡大表示
外観
物件画像
※画像クリックで拡大表示
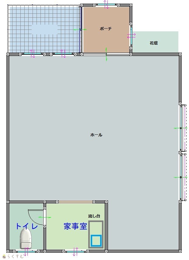
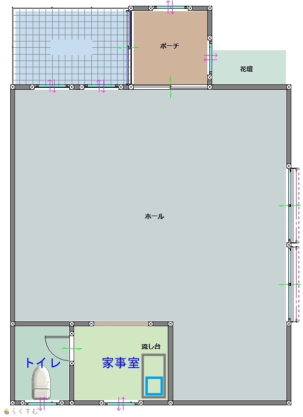
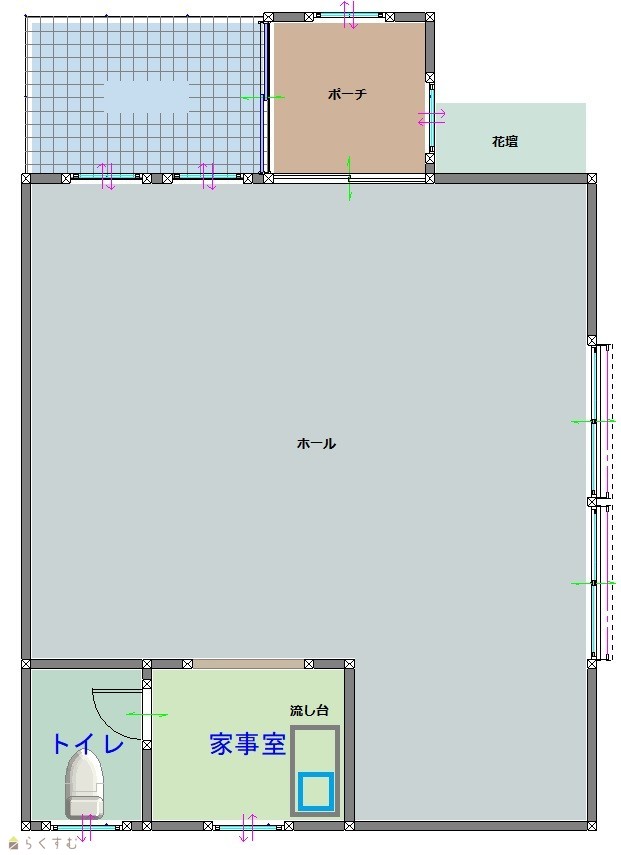
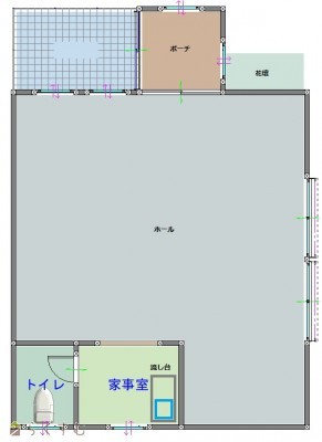
間取り図
詳細画像


物件概要

テナントのご主人様☆☆募集中ーーー☆☆
物件コード 00200-100120
物件名 new【商談中】ヤマダオフィス Ⅱ
交通 駅:妙高はねうまライン 春日山駅から徒歩12分、バス:春日山町三丁目北から徒歩3分
所在地 新潟県上越市春日野1丁目4番38号
物件種別 事務所
総戸数 -
構造 木造 階建 地上1階建
所在階/階数 1階/1階 号室 B号室
面積 52.99㎡ /16.02坪 方位 -
間取り -
賃料 11万円/月
(課税表記)
管理費 2,200円/月
(課税表記)
礼金 11万円
(課税表記)
敷金 -
ほか初期費用 - その他諸費用 -
更新料 - 火災(家財)保険 21,300円
(2年)
共益費 - 町内費 -
駐車場 - バイク料金 -
鍵交換費 - 清掃料 -
更新事務手数料 -
保証区分 保証会社+緊急連絡先
保証会社 区分:加入要
保証会社名:CIZ
保証料:月額合計賃料の77%、更新料不要。
家賃保証金 86,394円
連帯保証人 区分:不要
-
仲介手数料 110,000円
築年月 2019年1月(築6年)
利用制限 法人:可、ペット:不可、楽器:不可、事務所利用:可
学校区 春日小学校(316m)・春日中学校(474m)
設備 1階、融雪設備あり、光ファイバー、エアコン、スケルトン、給湯、駐車場あり
入居時期 即入居可
取引態様 仲介
備考 ・2025.9.22より、商談中です。

※賃料、管理費は課税後の表記金額です。
※現在、賃貸中のため内覧は令和 7年 9月以降可能。
・その他:町内会は事業所は加入できない為町内会費不要。但し、ごみ等は借主にて別途、回収業者を手配となります。
【設備】・電気・上水道・下水道・流し台・給湯室・電気温水器・エアコン(2台)・ブラインドつき・火災報知器・温水洗浄便座・ネット環境光コンセント・照明あり・風除室・花壇・外水道・ポーチ・駐車場 5台つき・消雪設備あり
手数料負担割合/配分割合 貸主:-%   借主:100% / 元付:50%   客付:50%  
取り扱い会社

株式会社 お不動さん

上越市中央一丁目12番36号

情報登録日 2025/09/22 次回更新予定日 2025/12/29
  • new【商談中】ヤマダオフィス Ⅱ
    株式会社 お不動さん
  • この物件を問い合わせる/無料
  • TEL: 025-520-8197

この物件の地図・周辺情報・行政情報

この物件の周辺情報・行政情報を詳しく見る
【周辺情報】
物件の近くにあるコンビニや銀行・学校など、アイコン付のマップで詳しく表示できます!
【行政情報】
水道料や下水道料・ガス料金など、暮らしに関係のある情報を表示しています。

担当取扱い店舗情報

取扱い店舗画像
株式会社 お不動さん
TEL: 025-520-8197
所在地: 上越市中央一丁目12番36号
交通: 直江津駅
営業時間: 8:30~17:30/定休日:日曜・祝日・第2土曜日・第4土曜日
免許番号: 新潟県知事(2)第5449号 この会社の情報を詳しく見る
所属団体名: 公社 新潟県宅地建物取引協会 上越支部
取引態様: 仲介
ホームページ: https://ofudousan.amebaownd.com/