物件掲載企業数:301|賃貸物件:3,174件|売買物件:3,245件|今週の登録物件:101
閲覧中のブラウザ(インターネットエクスプローラー)は非推奨ブラウザです。
物件が正しく表示されなかったり、正しく検索されない場合があります。最新のブラウザ(Google Chrome・Edgeなど)にてご利用お願いいたします。
  

新潟県長岡市新栄町2丁目3番40 店舗 35万円の物件情報

幹線道路沿線。月額賃料に駐車場料金含みます。(駐車スペース乗用車なら20台可)

物件名
所在地
面積
間取り
所在階
築年数
方位
賃料
管理費等
共益費
敷金
保証金
礼金
種別
構造
新栄町2丁目メゾンムーミー1階テナント募集
新潟県長岡市新栄町2丁目3番40
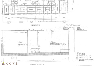
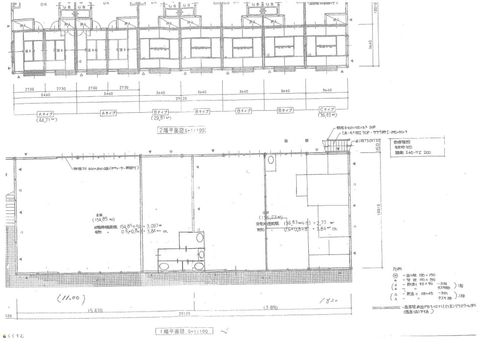
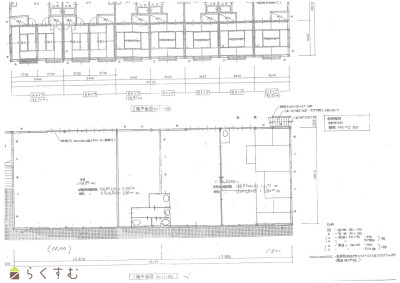
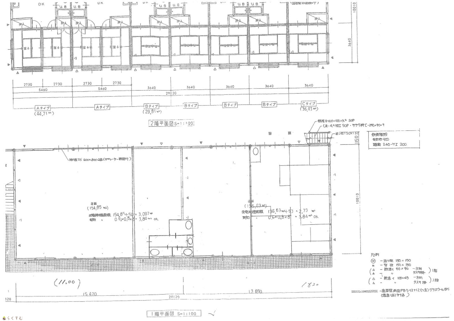
151.9㎡
(45.94坪)
-
1階
33年
-
35万円
なし
なし
2ヶ月
なし
なし
店舗
木造鉄骨
  • 新栄町2丁目メゾンムーミー1階テナント募集
    村山ハウス(株)
  • この物件を問い合わせる/無料
  • TEL: 0258-53-2552

物件画像

外観 間取り
物件画像
※画像クリックで拡大表示
外観
物件画像
※画像クリックで拡大表示
内部平面図(貸出フロアーはトイレを含み向かって左側)
詳細画像


物件概要

店舗向けにご検討をお願いします。
物件コード 00189-100004
物件名 新栄町2丁目メゾンムーミー1階テナント募集
交通 駅:信越線 見附駅から徒歩145分、バス:警察署前から徒歩2分
所在地 新潟県長岡市新栄町2丁目3番40
物件種別 店舗
総戸数 1戸
構造 木造鉄骨 階建 地上2階建
所在階/階数 1階/2階 号室 -
面積 151.9㎡ /45.94坪 方位 -
間取り -
賃料 35万円/月
管理費 -
礼金 - 敷金 2ヶ月
ほか初期費用 - その他諸費用 -
更新料 - 火災(家財)保険 -
共益費 - 町内費 -
駐車場 - バイク料金 -
鍵交換費 - 清掃料 -
更新事務手数料 -
保証区分 緊急連絡先のみ
保証会社 区分:指定なし
-
連帯保証人 区分:不要
-
仲介手数料 -
築年月 1993年3月(築33年)
利用制限 -
学校区 栃尾東小学校(429m)・刈谷田中学校(1,185m)
設備 1階、融雪設備あり、24時間セキュリティー、即引き渡し可、駐車場あり
入居時期 即入居可
取引態様 貸主
備考 -
手数料負担割合/配分割合 貸主:-%   借主:-% / 元付:-%   客付:-%  
取り扱い会社

村山ハウス(株)

新潟県長岡市新栄町3-4-3

情報登録日 2023/11/24 次回更新予定日 2026/05/20
  • 新栄町2丁目メゾンムーミー1階テナント募集
    村山ハウス(株)
  • この物件を問い合わせる/無料
  • TEL: 0258-53-2552

この物件の地図・周辺情報・行政情報

この物件の周辺情報・行政情報を詳しく見る
【周辺情報】
物件の近くにあるコンビニや銀行・学校など、アイコン付のマップで詳しく表示できます!
【行政情報】
水道料や下水道料・ガス料金など、暮らしに関係のある情報を表示しています。
セブン-イレブン 栃尾新栄町店(コンビニ)まで150m
もりの調剤薬局(ドラッグストア)まで240m
ひかり調剤薬局(ドラッグストア)まで260m
あさひ薬局 栃尾店(ドラッグストア)まで810m
クスリのアオキ 栃尾店(ドラッグストア)まで840m
関内科医院(病院)まで480m
セブン銀行ATM(銀行)まで210m
JAえちご中越 栃尾支店(銀行)まで380m
栃尾ショッピングモール・トッピー(スーパー)まで850m
(警察)まで80m
栃尾東小学校(学校)まで430m
コメリホームセンター栃尾店(ホームセンター)まで240m
ウェルシア新潟栃尾店(ドラッグストア)まで50m

※カメラのアイコンがある場合は、マウスをポイントするとその施設の画像がご覧いただけます。


担当取扱い店舗情報

取扱い店舗画像
村山ハウス(株)
TEL: 0258-53-2552
所在地: 新潟県長岡市新栄町3-4-3
交通:
営業時間: 9:00~18:00/定休日:水曜日
免許番号: 新潟県知事(5)第4082号 この会社の情報を詳しく見る
所属団体名: 公社 新潟県宅地建物取引業協会 長岡支部
取引態様: 貸主