物件掲載企業数:300|賃貸物件:3,179件|売買物件:3,221件|今週の登録物件:642
閲覧中のブラウザ(インターネットエクスプローラー)は非推奨ブラウザです。
物件が正しく表示されなかったり、正しく検索されない場合があります。最新のブラウザ(Google Chrome・Edgeなど)にてご利用お願いいたします。
  

新潟県柏崎市希望が丘13-43-2 一戸建て 3LDK 7万円の物件情報

屋外物置・宅配BOXあり☆トイレ1階、2階2か所☆浴室1坪浴槽☆

物件名
所在地
面積
間取り
所在階
築年数
方位
賃料
管理費等
共益費
敷金
保証金
礼金
種別
構造
希望が丘貸家B
戸建て号室
新潟県柏崎市希望が丘13-43-2
92.74㎡
(28.05坪)
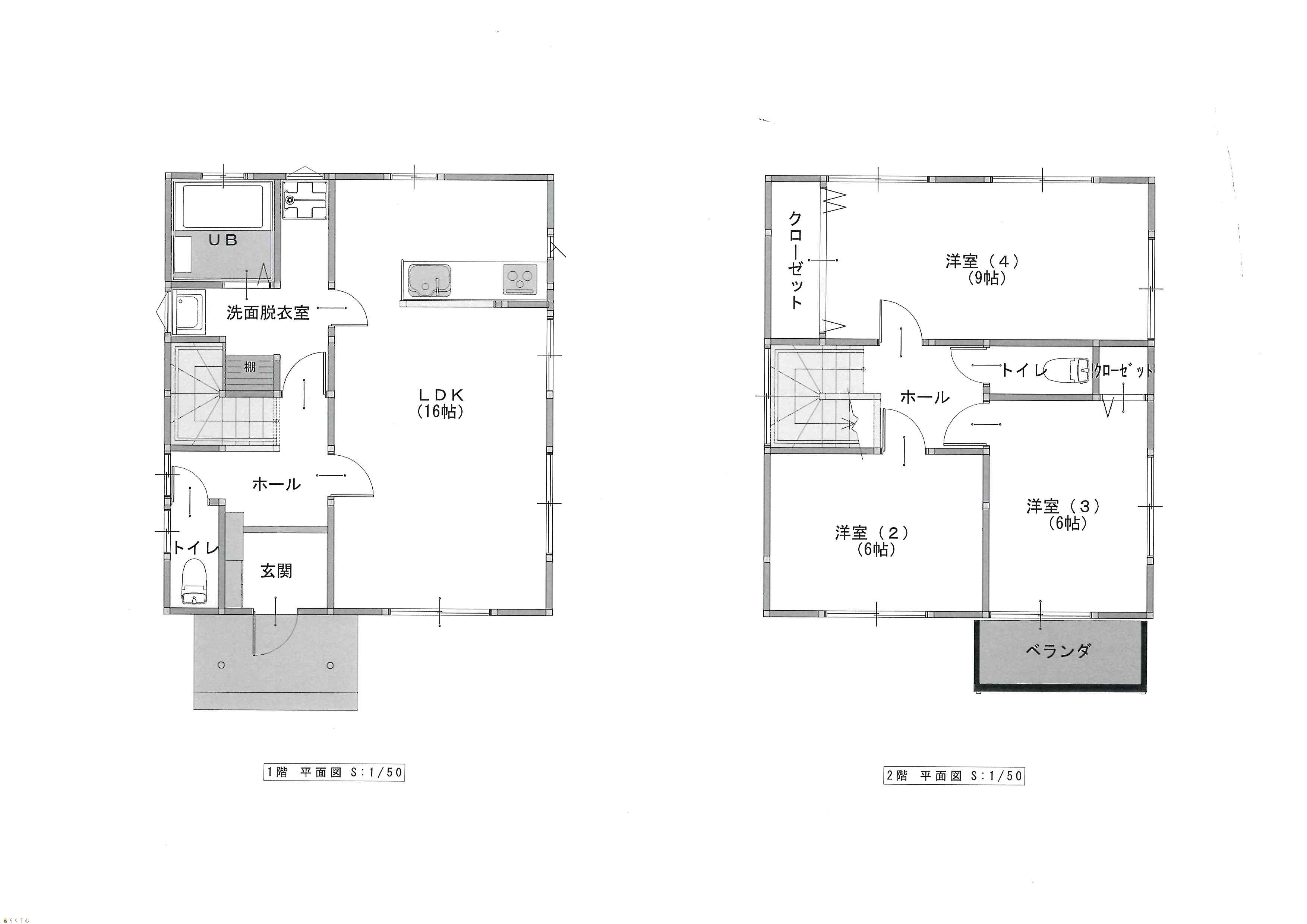
3LDK
1.2階
21年
7万円
なし
なし
1ヶ月
なし
なし
アパート・マンション・一戸建て
木造
  • 希望が丘貸家B
    株式会社セイワ不動産
  • この物件を問い合わせる/無料
  • TEL: 0120-779-375

物件画像

外観 間取り
物件画像
※画像クリックで拡大表示
外観
物件画像
※画像クリックで拡大表示
間取り
詳細画像


物件概要

物件コード 00091-100114
物件名 希望が丘貸家B
交通 駅:信越線 茨目駅から徒歩27分、バス:半田団地から徒歩4分
所在地 新潟県柏崎市希望が丘13-43-2
物件種別 アパート・マンション・一戸建て
総戸数 -
構造 木造 階建 地上2階建
所在階/階数 1.2階/2階 号室 戸建て号室
面積 92.74㎡ /28.05坪 方位
間取り 3LDK (洋室:6.0、7.5、9.0)
LDK16
賃料 7万円/月
管理費 -
礼金 -
敷金 1ヶ月
ほか初期費用 - その他諸費用 -
更新料 - 火災(家財)保険 18,000円
2年18000円
共益費 - 町内費 -
駐車場
2台分家賃に含む
バイク料金 -
鍵交換費 - 清掃料 -
更新事務手数料 11,000円
保証区分 保証会社のみ
保証会社 区分:加入要
保証会社名:ジェイリース
-
家賃保証金 56,000円
連帯保証人 区分:不要
-
仲介手数料 77,000円
築年月 2005年2月(築21年)
利用制限 子供:可、ペット:不可、楽器:相談
学校区 半田小学校(646m)・鏡が沖中学校(729m)
設備 閑静な住宅街、日当り良好、タイヤ置き場、メゾネット、駐車場2台無料、南向き、3面採光、システムキッチン、対面キッチン、食器洗浄乾燥機、3口コンロ、バストイレ別、追いだき機能付き、ユニットバス、温水洗浄便座、洗面所独立、エアコン、都市ガス、バルコニー、全居室フローリング、洗濯機置場 室内、玄関収納、ウォークインクロゼット、トランクルーム、シューズBOX、BS端子・アンテナ、TVモニター付きインターホン、各居室照明、礼金不要、保証会社要加入
入居時期 相談
取引態様 仲介
備考 -
手数料負担割合/配分割合 貸主:0%   借主:100% / 元付:50%   客付:50%  
取り扱い会社

株式会社セイワ不動産

新潟県柏崎市東長浜町7-10ウエルメイド柏崎1F102

情報登録日 2026/04/16 次回更新予定日 2026/05/04
  • 希望が丘貸家B
    株式会社セイワ不動産
  • この物件を問い合わせる/無料
  • TEL: 0120-779-375

この物件の地図・周辺情報・行政情報

この物件の周辺情報・行政情報を詳しく見る
【周辺情報】
物件の近くにあるコンビニや銀行・学校など、アイコン付のマップで詳しく表示できます!
【行政情報】
水道料や下水道料・ガス料金など、暮らしに関係のある情報を表示しています。

担当取扱い店舗情報

取扱い店舗画像
株式会社セイワ不動産
TEL: 0120-779-375
所在地: 新潟県柏崎市東長浜町7-10ウエルメイド柏崎1F102
交通: 柏崎駅
営業時間: ①9:00~13:00②14:00~17:30/定休日:水曜日・日曜
免許番号: 新潟県知事免許(12)第2332 号 この会社の情報を詳しく見る
所属団体名: 新潟県宅地建物取引業協会 柏崎支部
取引態様: 仲介
ホームページ: http://www.a-oheya.co.jp/