物件掲載企業数:301|賃貸物件:3,174件|売買物件:3,245件|今週の登録物件:101
閲覧中のブラウザ(インターネットエクスプローラー)は非推奨ブラウザです。
物件が正しく表示されなかったり、正しく検索されない場合があります。最新のブラウザ(Google Chrome・Edgeなど)にてご利用お願いいたします。
  

新潟県柏崎市穂波町9-8 店舗 23万円の物件情報

20坪からお貸しできます!お気軽にお問い合わせください。

物件名
所在地
面積
間取り
所在階
築年数
方位
賃料
管理費等
共益費
敷金
保証金
礼金
種別
構造
アスティル穂波
新潟県柏崎市穂波町9-8
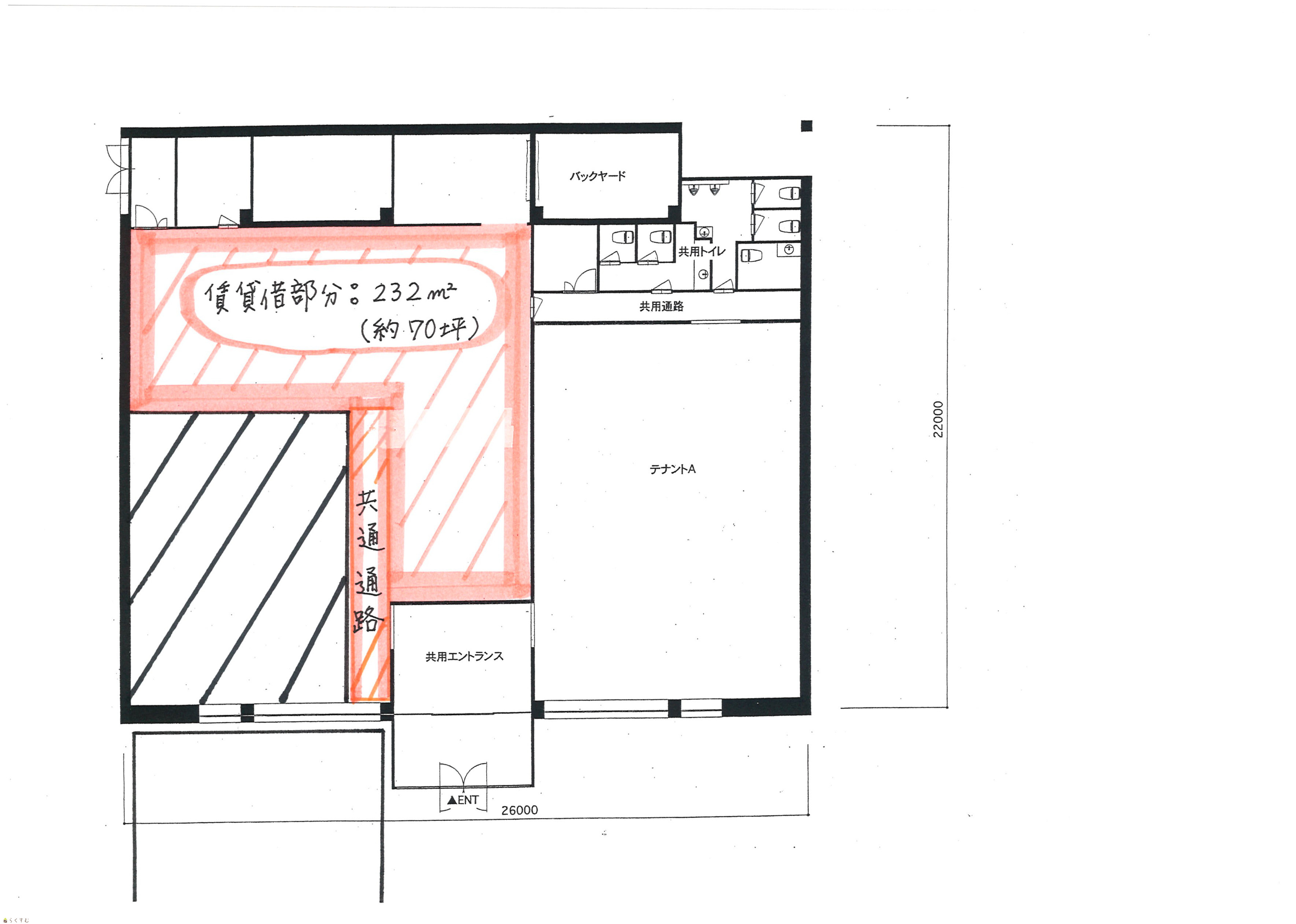
230㎡
(69.57坪)
-
-
32年
-
23万円
なし
なし
2ヶ月
なし
1ヶ月
店舗
鉄骨
  • アスティル穂波
    有限会社 不動産情報
  • この物件を問い合わせる/無料
  • TEL: 0257-24-8858

物件画像

外観 間取り
物件画像
※画像クリックで拡大表示
アスティルホナミ外観
物件画像
※画像クリックで拡大表示
アスティルホナミ間取り図
詳細画像


物件概要

物件コード 00089-100098
物件名 アスティル穂波
交通 駅:信越線 柏崎駅から徒歩8分、バス:穂波町から徒歩2分
所在地 新潟県柏崎市穂波町9-8
物件種別 店舗
総戸数 3戸
構造 鉄骨 階建 地上1階建
所在階/階数 - 号室 -
面積 230㎡ /69.57坪 方位 -
間取り -
賃料 23万円/月
管理費 -
礼金 1ヶ月
敷金 2ヶ月
ほか初期費用 - その他諸費用 -
更新料 - 火災(家財)保険 -
共益費 - 町内費 -
駐車場 ~7台分 バイク料金 -
鍵交換費 - 清掃料 -
更新事務手数料 -
保証区分 連帯保証人+保証会社
保証会社 区分:加入要
保証会社名:その他 (CIZ様など)
-
家賃保証金 20,500円
連帯保証人 区分:要
-
仲介手数料 253,000円
築年月 1993年10月(築32年)
利用制限 学生:不可、子供:不可
学校区 枇杷島小学校(552m)・鏡が沖中学校(708m)
設備 1階
入居時期 相談
取引態様 仲介
備考 -
手数料負担割合/配分割合 貸主:-%   借主:-% / 元付:-%   客付:-%  
取り扱い会社

有限会社 不動産情報

新潟県柏崎市朝日が丘4番11号

情報登録日 2025/10/08 次回更新予定日 2026/05/20
  • アスティル穂波
    有限会社 不動産情報
  • この物件を問い合わせる/無料
  • TEL: 0257-24-8858

この物件の地図・周辺情報・行政情報

この物件の周辺情報・行政情報を詳しく見る
【周辺情報】
物件の近くにあるコンビニや銀行・学校など、アイコン付のマップで詳しく表示できます!
【行政情報】
水道料や下水道料・ガス料金など、暮らしに関係のある情報を表示しています。
セブン-イレブン 柏崎穂波町店(コンビニ)まで100m
デイリーヤマザキ 柏崎田中店(コンビニ)まで410m
デイリーヤマザキ 柏崎駅前1丁目店(コンビニ)まで940m
ウオロク 柏崎店(スーパー)まで310m
クスリのアオキ 穂波店(ドラッグストア)まで170m
柏崎信用金庫 南支店(銀行)まで200m

※カメラのアイコンがある場合は、マウスをポイントするとその施設の画像がご覧いただけます。


担当取扱い店舗情報

取扱い店舗画像
有限会社 不動産情報
TEL: 0257-24-8858
所在地: 新潟県柏崎市朝日が丘4番11号
交通:
営業時間: 9:00~17:00/定休日:日曜日
免許番号: 新潟県知事(7)第3121号 この会社の情報を詳しく見る
所属団体名: 新潟県宅地建物取引業協会 柏崎支部
取引態様: 仲介
ホームページ: http://fudousan-johou.co.jp