物件掲載企業数:296|賃貸物件:3,400件|売買物件:3,325件|今週の登録物件:259
閲覧中のブラウザ(インターネットエクスプローラー)は非推奨ブラウザです。
物件が正しく表示されなかったり、正しく検索されない場合があります。最新のブラウザ(Google Chrome・Edgeなど)にてご利用お願いいたします。
  

新潟県柏崎市幸町3-26 アパート 1K 3.6万円の物件情報

柏崎駅近くの1K!コンビニ・大型商業施設も近くにあります!

物件名
所在地
面積
間取り
所在階
築年数
方位
賃料
管理費等
共益費
敷金
保証金
礼金
種別
構造
アークビル
303号室
新潟県柏崎市幸町3-26
25㎡
(7.56坪)
1K
3階
36年
指定なし
3.6万円
なし
あり
1ヶ月
なし
1ヶ月
アパート・マンション・一戸建て
鉄骨
  • アークビル
    株式会社 アーク不動産
  • この物件を問い合わせる/無料
  • TEL: 0257-22-6170

物件画像

外観 間取り
物件画像
※画像クリックで拡大表示
外観
物件画像
※画像クリックで拡大表示
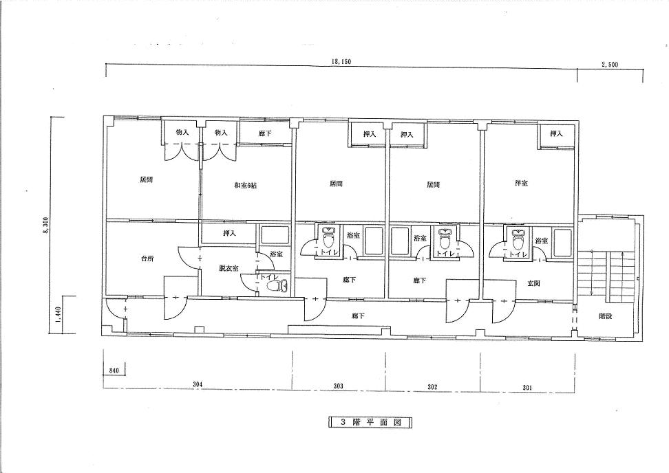
間取り
詳細画像


物件概要

物件コード 00079-100384
物件名 アークビル
交通 駅:JR柏崎駅から徒歩6分、バス:柏崎駅南口から徒歩4分
所在地 新潟県柏崎市幸町3-26
物件種別 アパート・マンション・一戸建て
総戸数 8戸
構造 鉄骨 階建 地上3階建
所在階/階数 3階/3階 号室 303号室
面積 25㎡ /7.56坪 方位 指定なし
間取り 1K (洋室:7)
賃料 3.6万円/月
管理費 -
礼金 1ヶ月
敷金 1ヶ月
ほか初期費用 - その他諸費用 -
更新料 - 火災(家財)保険 16,000円
2年分
共益費 500円
町内費 -
駐車場 5,000円
敷地外
バイク料金 -
鍵交換費 - 清掃料 -
更新事務手数料 11,000円
保証区分 連帯保証人のみ
保証会社 区分:指定なし
-
連帯保証人 区分:要
-
仲介手数料 -
築年月 1989年3月(築36年)
利用制限 法人:可、学生:可、ペット:不可、楽器:不可、ルームシェア:不可
学校区 枇杷島小学校(476m)・鏡が沖中学校(791m)
設備 バス停近く、最寄り駅近く、日当り良好、最上階、敷地内ゴミ置き場、24時間ゴミ出し可、バストイレ別、温水洗浄便座、エアコン、都市ガス、洗濯機置場 室内、玄関収納、押入、BS端子・アンテナ、各居室照明、インターネット接続可、仲介手数料不要、保証会社利用可能、一人暮らし・学生向け、お勧め物件、柏崎 大学、新潟産業大学生におすすめ、新潟工科大学生におすすめ、退去予定物件(柏崎大学むけ※柏崎のみ)
入居時期 R8.3月下旬以降入居可
取引態様 貸主
備考 -
手数料負担割合/配分割合 貸主:-%   借主:-% / 元付:-%   客付:-%  
取り扱い会社

株式会社 アーク不動産

新潟県柏崎市幸町3番26アークビル101

情報登録日 2026/02/14 次回更新予定日 2026/03/01
  • アークビル
    株式会社 アーク不動産
  • この物件を問い合わせる/無料
  • TEL: 0257-22-6170

この物件の地図・周辺情報・行政情報

この物件の周辺情報・行政情報を詳しく見る
【周辺情報】
物件の近くにあるコンビニや銀行・学校など、アイコン付のマップで詳しく表示できます!
【行政情報】
水道料や下水道料・ガス料金など、暮らしに関係のある情報を表示しています。
セブン-イレブン 柏崎穂波町店(コンビニ)まで90m
ウオロク 柏崎店(スーパー)まで370m

※カメラのアイコンがある場合は、マウスをポイントするとその施設の画像がご覧いただけます。


担当取扱い店舗情報

取扱い店舗画像
株式会社 アーク不動産
TEL: 0257-22-6170
所在地: 新潟県柏崎市幸町3番26アークビル101
交通: 柏崎駅
営業時間: 9:00~17:30/定休日:土・日・祝日*3月は無休営業致します
免許番号: 新潟県知事(7)第4045号 この会社の情報を詳しく見る
所属団体名: (公社)新潟県宅地建物取引業協会 柏崎支部
取引態様: 貸主
ホームページ: http://www.a-ku.co.jp