物件掲載企業数:297|賃貸物件:3,622件|売買物件:3,284件|今週の登録物件:265
閲覧中のブラウザ(インターネットエクスプローラー)は非推奨ブラウザです。
物件が正しく表示されなかったり、正しく検索されない場合があります。最新のブラウザ(Google Chrome・Edgeなど)にてご利用お願いいたします。
  

新潟県新潟市中央区東堀前通5番町403 マンション 1R 3.2万円の物件情報

物件名
所在地
面積
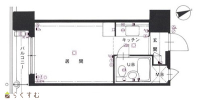
間取り
所在階
築年数
方位
賃料
管理費等
共益費
敷金
保証金
礼金
種別
構造
コア東堀
808号室
新潟県新潟市中央区東堀前通5番町403
18.73㎡
(5.66坪)
1R
8階
40年
3.2万円
なし
なし
なし
なし
なし
アパート・マンション・一戸建て
鉄骨鉄筋コン
  • コア東堀
    ドアーズ株式会社 新潟店
  • この物件を問い合わせる/無料
  • TEL: 025-374-4280

物件画像

外観 間取り
物件画像
※画像クリックで拡大表示
物件画像
※画像クリックで拡大表示
詳細画像


物件概要

物件コード 00069-100366
物件名 コア東堀
交通 駅:白山から徒歩23分
所在地 新潟県新潟市中央区東堀前通5番町403
物件種別 アパート・マンション・一戸建て
総戸数 -
構造 鉄骨鉄筋コン 階建 地上11階建
所在階/階数 8階/11階 号室 808号室
面積 18.73㎡ /5.66坪 方位
間取り 1R
賃料 3.2万円/月
管理費 -
礼金 - 敷金 -
ほか初期費用 - その他諸費用 -
更新料 - 火災(家財)保険 -
共益費 - 町内費 -
駐車場 - バイク料金 -
鍵交換費 - 清掃料 38,500円
住宅保険料 19,000円
ライフサポート料 800円
更新事務手数料 -
保証区分 保証会社のみ
保証会社 区分:加入要
保証会社名:ジェイリース
-
家賃保証金 保証会社:ジェイリース㈱ 保証料:初回保証料負担なし、月額保証料600円
連帯保証人 区分:-
-
仲介手数料 -
築年月 1985年12月(築40年)
利用制限 ルームシェア:不可
学校区 -
設備 外壁タイル張り、エレベーター、駐輪場あり、防犯カメラ、ガスコンロ 設置済み、エアコン、都市ガス、バルコニー、洗濯機置場 室内、フローリングあり、BS端子・アンテナ、TVモニター付きインターホン、各居室照明、インターネット 光、カード決済可能(賃料など)
入居時期 2025年12月中旬
取引態様 代理
備考 -
手数料負担割合/配分割合 貸主:-%   借主:-% / 元付:-%   客付:-%  
取り扱い会社

ドアーズ株式会社 新潟店

新潟県新潟市中央区女池神明1丁目8-19

情報登録日 2025/12/05 次回更新予定日 2025/12/19
  • コア東堀
    ドアーズ株式会社 新潟店
  • この物件を問い合わせる/無料
  • TEL: 025-374-4280

この物件の地図・周辺情報・行政情報

この物件の周辺情報・行政情報を詳しく見る
【周辺情報】
物件の近くにあるコンビニや銀行・学校など、アイコン付のマップで詳しく表示できます!
【行政情報】
水道料や下水道料・ガス料金など、暮らしに関係のある情報を表示しています。

担当取扱い店舗情報

取扱い店舗画像
ドアーズ株式会社 新潟店
TEL: 025-374-4280
所在地: 新潟県新潟市中央区女池神明1丁目8-19
交通: 新潟交通バス女池線で「女池西二丁目」下車徒歩1分
営業時間: 9:00~18:00/定休日:水曜日 祝日 年末年始・GW・お盆
免許番号: 新潟県知事(10)第2891号 この会社の情報を詳しく見る
所属団体名: 新潟県宅地建物取引業協会 新潟支部
取引態様: 代理
ホームページ: http://www.doors-net.jp/