物件掲載企業数:300|賃貸物件:3,190件|売買物件:3,231件|今週の登録物件:332
閲覧中のブラウザ(インターネットエクスプローラー)は非推奨ブラウザです。
物件が正しく表示されなかったり、正しく検索されない場合があります。最新のブラウザ(Google Chrome・Edgeなど)にてご利用お願いいたします。
  

新潟県小千谷市ひ生丙514-6 一戸建て 6DK 6.5万円の物件情報

高床3階建て住宅 自然落雪屋根

物件名
所在地
面積
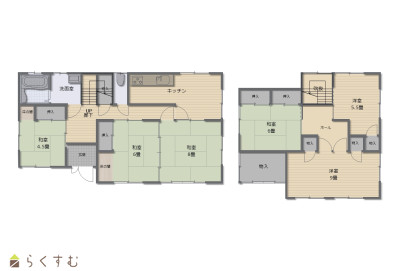
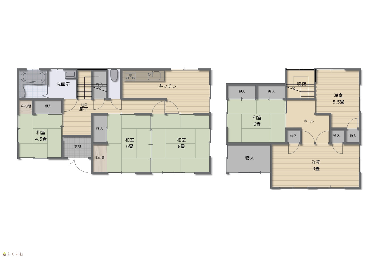
間取り
所在階
築年数
方位
賃料
管理費等
共益費
敷金
保証金
礼金
種別
構造
小千谷市薭生 6DK貸家
新潟県小千谷市ひ生丙514-6
169.7㎡
(51.33坪)
6DK
-
36年
西
6.5万円
なし
なし
なし
なし
なし
アパート・マンション・一戸建て
木造
  • 小千谷市薭生 6DK貸家
    ブレイン・リアルエステート合同会社
  • この物件を問い合わせる/無料
  • TEL: 0258-86-6934

物件画像

外観 間取り
物件画像
※画像クリックで拡大表示
外観
物件画像
※画像クリックで拡大表示
間取り
詳細画像


物件概要

物件コード 00044-100004
物件名 小千谷市薭生 6DK貸家
交通 駅:上越線 小千谷駅から徒歩24分
所在地 新潟県小千谷市ひ生丙514-6
物件種別 アパート・マンション・一戸建て
総戸数 -
構造 木造 階建 地上3階建
所在階/階数 - 号室 -
面積 169.7㎡ /51.33坪 方位 西
間取り 6DK
賃料 6.5万円/月
管理費 -
礼金 - 敷金 -
ほか初期費用 - その他諸費用 -
更新料 - 火災(家財)保険 -
共益費 - 町内費 -
駐車場 - バイク料金 -
鍵交換費 30,000円
清掃料 -
更新事務手数料 -
保証区分 連帯保証人のみ
保証会社 区分:指定なし
-
連帯保証人 区分:要
-
仲介手数料 -
築年月 1989年11月(築36年)
利用制限 法人:可、学生:相談、単身者:可、二人入居:可、シニア(60歳以上)入居:可、子供:可、ペット:相談、楽器:可、事務所利用:可、ルームシェア:相談
学校区 東小千谷小学校(1,199m)・東小千谷中学校(1,834m)
設備 閑静な住宅街、日当り良好、駐車2台可、システムキッチン、バストイレ別、浴室1坪以上、追いだき機能付き、温水洗浄便座、シャワー付き洗面台、エアコン、都市ガス、公営水道、下水、脱衣所、押入、仲介手数料不要、敷金・礼金不要、高齢者相談、ペット相談可
入居時期 即入居可
取引態様 貸主
備考 -
手数料負担割合/配分割合 貸主:-%   借主:-% / 元付:-%   客付:-%  
取り扱い会社

ブレイン・リアルエステート合同会社

新潟県長岡市大島本町3丁目10番8号202号室

情報登録日 2026/04/15 次回更新予定日 2026/04/30
  • 小千谷市薭生 6DK貸家
    ブレイン・リアルエステート合同会社
  • この物件を問い合わせる/無料
  • TEL: 0258-86-6934

この物件の地図・周辺情報・行政情報

この物件の周辺情報・行政情報を詳しく見る
【周辺情報】
物件の近くにあるコンビニや銀行・学校など、アイコン付のマップで詳しく表示できます!
【行政情報】
水道料や下水道料・ガス料金など、暮らしに関係のある情報を表示しています。

担当取扱い店舗情報

取扱い店舗画像
ブレイン・リアルエステート合同会社
TEL: 0258-86-6934
所在地: 新潟県長岡市大島本町3丁目10番8号202号室
交通:
営業時間: 9:30~18:00/定休日:水曜日、日曜日
免許番号: 新潟県知事(4)第4978号 この会社の情報を詳しく見る
所属団体名: ブレインリアルエステート合同会社
取引態様: 貸主
ホームページ: http://www.brain-niigata.co.jp