物件掲載企業数:301|賃貸物件:3,172件|売買物件:3,243件|今週の登録物件:159
閲覧中のブラウザ(インターネットエクスプローラー)は非推奨ブラウザです。
物件が正しく表示されなかったり、正しく検索されない場合があります。最新のブラウザ(Google Chrome・Edgeなど)にてご利用お願いいたします。
  

新潟県見附市昭和町2丁目104-1 店舗 24.75万円の物件情報

見附市昭和町の貸店舗・事務所 2020年9月に改装済みです♪駐車場8台賃料込み♪

物件名
所在地
面積
間取り
所在階
築年数
方位
賃料
管理費等
共益費
敷金
保証金
礼金
種別
構造
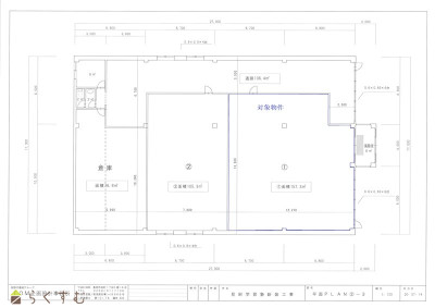
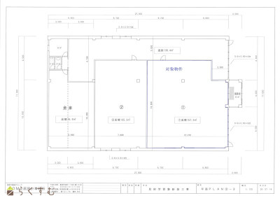
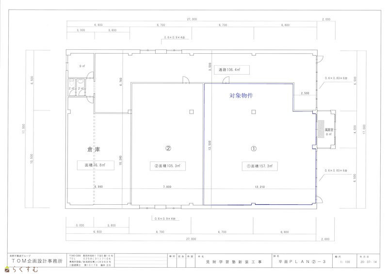
見附市昭和町2丁目 事業用貸物件
①号室
新潟県見附市昭和町2丁目104-1
157.3㎡
(47.58坪)
-
1階
28年
-
24.75万円
なし
なし
3ヶ月
なし
なし
店舗
鉄骨
  • 見附市昭和町2丁目 事業用貸物件
    株式会社 高野不動産販売
  • この物件を問い合わせる/無料
  • TEL: 0258-33-7711

物件画像

外観 間取り
物件画像
※画像クリックで拡大表示
外観
物件画像
※画像クリックで拡大表示
間取り
詳細画像


物件概要

照明・カセットエアコン付き
物件コード 00041-100618
物件名 見附市昭和町2丁目 事業用貸物件
交通 駅:信越線 見附駅から徒歩19分、バス:市役所前から徒歩3分
所在地 新潟県見附市昭和町2丁目104-1
物件種別 店舗
総戸数 -
構造 鉄骨 階建 地上1階建
所在階/階数 1階/1階 号室 ①号室
面積 157.3㎡ /47.58坪 方位 -
間取り -
賃料 24.75万円/月
管理費 -
礼金 - 敷金 3ヶ月
ほか初期費用 - その他諸費用 -
更新料 - 火災(家財)保険 -
共益費 - 町内費 -
駐車場
8台賃料込み
バイク料金 -
鍵交換費 - 清掃料 -
更新事務手数料 -
保証区分 連帯保証人+保証会社
保証会社 区分:加入要
保証会社名:日本セーフティ
【初回保証料】月額総賃料の100%,最低保証料40,000円【更新料】月払い0.8%,最低保証料800円/月又は年払い10%,最低保証料10,000円/年を選択。
連帯保証人 区分:要
法人契約の場合代表者の連帯保証要。
仲介手数料 247,500円
築年月 1997年6月(築28年)
利用制限 -
学校区 葛巻小学校(1,467m)・西中学校(554m)
設備 1階、エアコン、駐車場あり
入居時期 即入居可
取引態様 仲介
備考 トイレ、給湯室:テナント共用
電気については、子メーターにつき、水道料金と合わせて、
別途請求となります。
手数料負担割合/配分割合 貸主:-%   借主:-% / 元付:-%   客付:-%  
取り扱い会社

株式会社 高野不動産販売

新潟県長岡市柏町1丁目4-33

情報登録日 2025/10/24 次回更新予定日 2026/05/18
  • 見附市昭和町2丁目 事業用貸物件
    株式会社 高野不動産販売
  • この物件を問い合わせる/無料
  • TEL: 0258-33-7711

この物件の地図・周辺情報・行政情報

この物件の周辺情報・行政情報を詳しく見る
【周辺情報】
物件の近くにあるコンビニや銀行・学校など、アイコン付のマップで詳しく表示できます!
【行政情報】
水道料や下水道料・ガス料金など、暮らしに関係のある情報を表示しています。

担当取扱い店舗情報

取扱い店舗画像
株式会社 高野不動産販売
TEL: 0258-33-7711
所在地: 新潟県長岡市柏町1丁目4-33
交通: 長岡駅
営業時間: 9:00~17:30/定休日:土曜日・日曜日・祝日・お盆・年末年始
免許番号: 新潟県知事(1)第5568号 この会社の情報を詳しく見る
所属団体名: (公社)新潟県宅地建物取引業協会,(公社)首都圏不動産公正取引協議会,(公財)日本賃貸住宅管理協会
取引態様: 仲介
ホームページ: https://www.tknf.co.jp