物件掲載企業数:297|賃貸物件:3,624件|売買物件:3,288件|今週の登録物件:276
閲覧中のブラウザ(インターネットエクスプローラー)は非推奨ブラウザです。
物件が正しく表示されなかったり、正しく検索されない場合があります。最新のブラウザ(Google Chrome・Edgeなど)にてご利用お願いいたします。
  

新潟県長岡市栄町2丁目7-15 店舗 22万円の物件情報

栃尾の医院建物 介護施設の利用も可

物件名
所在地
面積
間取り
所在階
築年数
方位
賃料
管理費等
共益費
敷金
保証金
礼金
種別
構造
栃尾 栄町2丁目 医院
新潟県長岡市栄町2丁目7-15
314.55㎡
(95.15坪)
-
-
23年
-
22万円
10,000円/月
なし
3ヶ月
なし
なし
店舗
鉄骨
  • 栃尾 栄町2丁目 医院
    ふどうさんの相談所 (ライフデザイン合同会社 イオン長岡店)
  • この物件を問い合わせる/無料
  • TEL: 0258-94-4370

物件画像

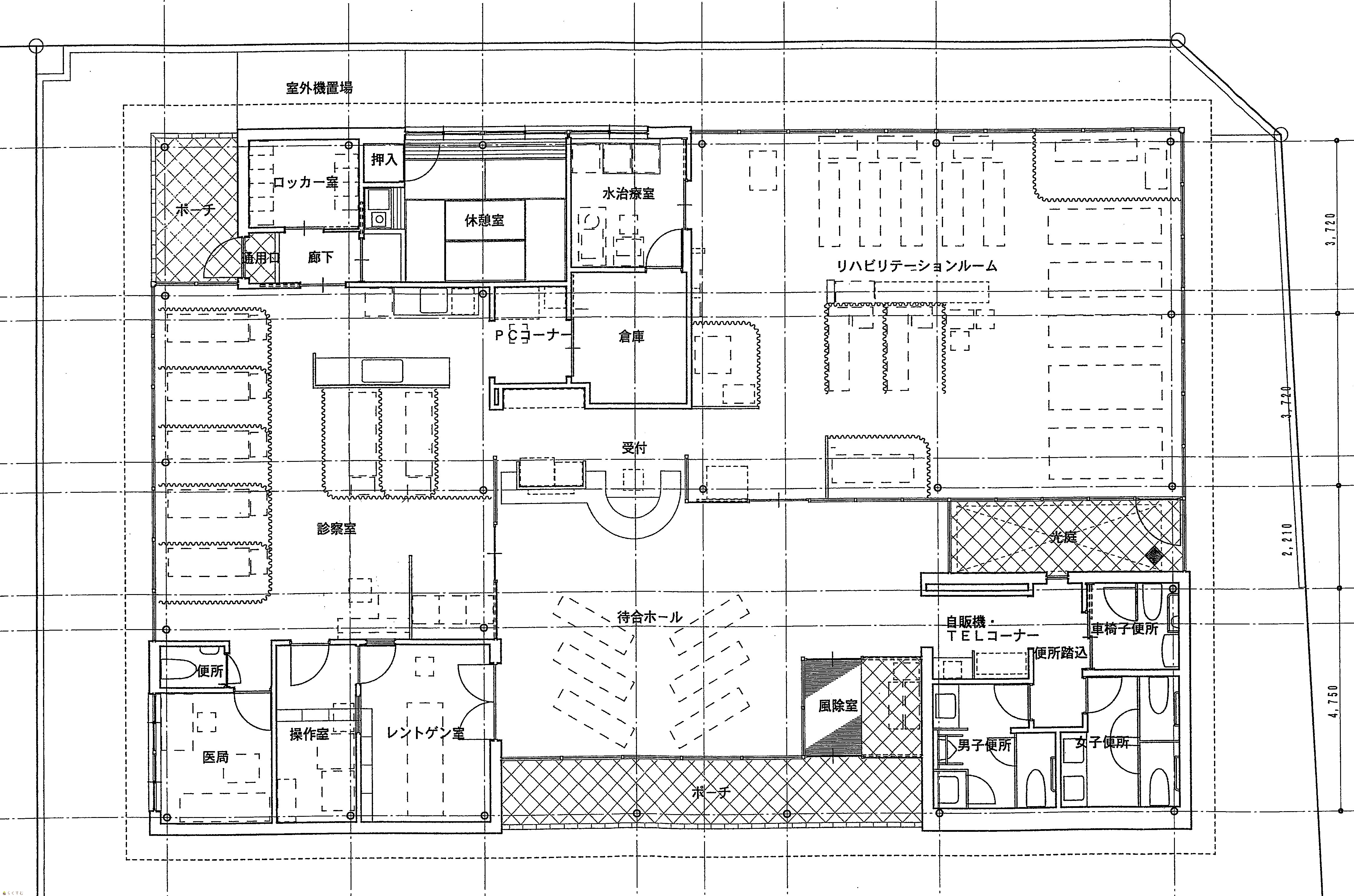
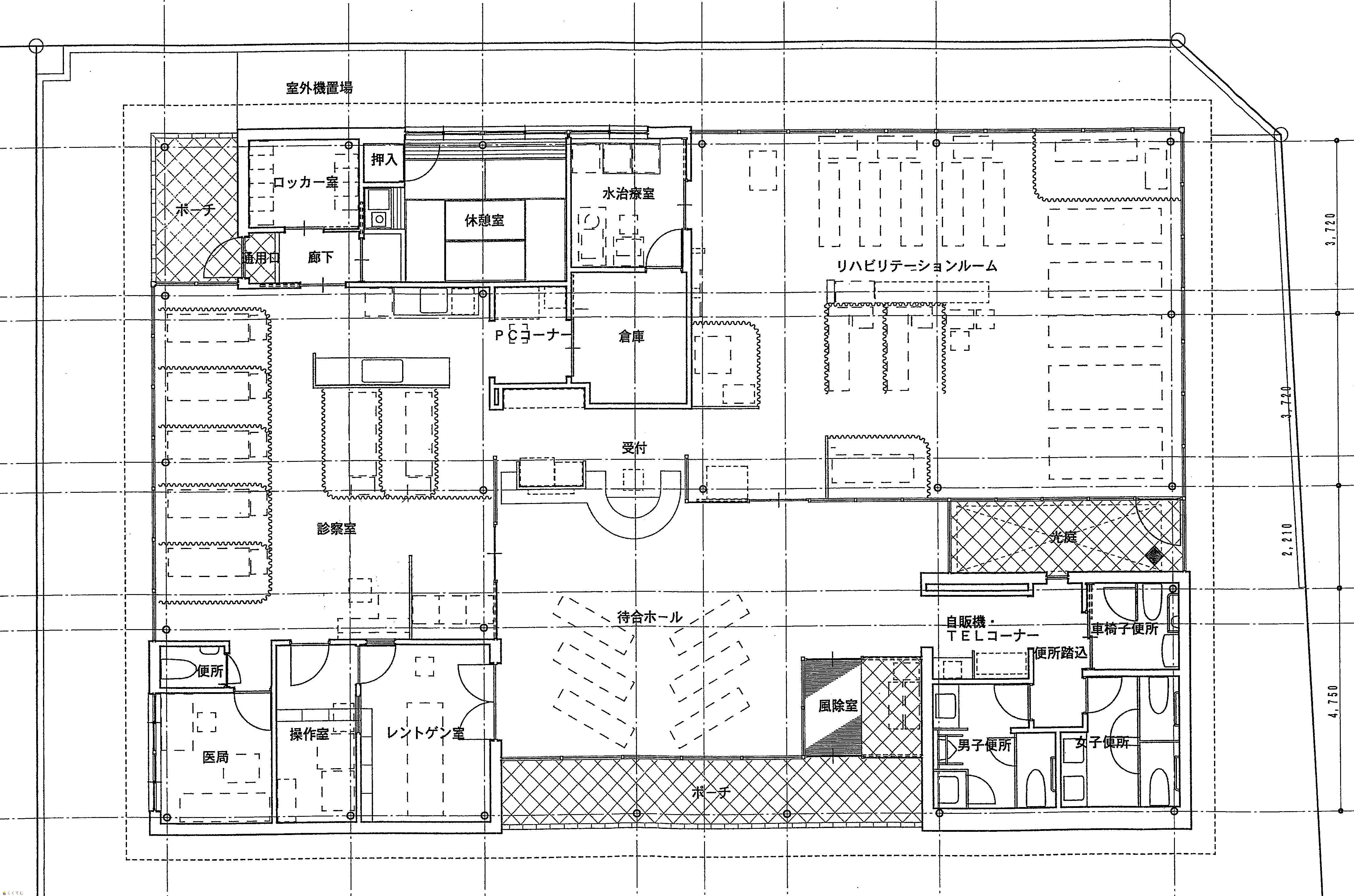
外観 間取り
物件画像
※画像クリックで拡大表示
外観
物件画像
※画像クリックで拡大表示
間取り
詳細画像


物件概要

物件コード 00039-100104
物件名 栃尾 栄町2丁目 医院
交通 駅:信越線 見附駅から徒歩145分、バス:警察署前から徒歩4分
所在地 新潟県長岡市栄町2丁目7-15
物件種別 店舗
総戸数 -
構造 鉄骨 階建 地上1階建
所在階/階数 - 号室 -
面積 314.55㎡ /95.15坪 方位 -
間取り -
賃料 22万円/月
管理費 10,000円/月
礼金 - 敷金 3ヶ月
ほか初期費用 - その他諸費用 -
更新料 - 火災(家財)保険 -
共益費 - 町内費 -
駐車場 - バイク料金 -
鍵交換費 - 清掃料 -
更新事務手数料 -
保証区分 保証会社のみ
保証会社 区分:加入要
保証会社名:ジェイリース
jakinai 初回保証料100%+継続保証料(毎年)10%
家賃保証金 230,000円
連帯保証人 区分:不要
-
仲介手数料 -
築年月 2002年12月(築23年)
利用制限 法人:可、学生:不可、単身者:不可、二人入居:不可、シニア(60歳以上)入居:不可、子供:不可、ペット:不可、楽器:不可、事務所利用:可、ルームシェア:不可
学校区 栃尾東小学校(488m)・刈谷田中学校(1,340m)
設備 1階、エアコン
入居時期 相談
取引態様 貸主
備考 -
手数料負担割合/配分割合 貸主:-%   借主:100% / 元付:50%   客付:50%  
取り扱い会社

ふどうさんの相談所 (ライフデザイン合同会社 イオン長岡店)

新潟県長岡市古正寺1-249-1イオン長岡店3F

情報登録日 2025/10/25 次回更新予定日 2025/12/19
  • 栃尾 栄町2丁目 医院
    ふどうさんの相談所 (ライフデザイン合同会社 イオン長岡店)
  • この物件を問い合わせる/無料
  • TEL: 0258-94-4370

この物件の地図・周辺情報・行政情報

この物件の周辺情報・行政情報を詳しく見る
【周辺情報】
物件の近くにあるコンビニや銀行・学校など、アイコン付のマップで詳しく表示できます!
【行政情報】
水道料や下水道料・ガス料金など、暮らしに関係のある情報を表示しています。

担当取扱い店舗情報

取扱い店舗画像
ふどうさんの相談所 (ライフデザイン合同会社 イオン長岡店)
TEL: 0258-94-4370
所在地: 新潟県長岡市古正寺1-249-1イオン長岡店3F
交通: 長岡駅
営業時間: 10:00~20:00/定休日:年末年始・特別日はお休みいたします
免許番号: 新潟県知事(3)第5090号 この会社の情報を詳しく見る
所属団体名: 全日本不動産協会 新潟県本部
取引態様: 貸主
ホームページ: http://life-dn.com