物件掲載企業数:297|賃貸物件:3,624件|売買物件:3,288件|今週の登録物件:276
閲覧中のブラウザ(インターネットエクスプローラー)は非推奨ブラウザです。
物件が正しく表示されなかったり、正しく検索されない場合があります。最新のブラウザ(Google Chrome・Edgeなど)にてご利用お願いいたします。
  

新潟県長岡市殿町3丁目3番7号 店舗 7.5万円の物件情報

殿町3丁目の飲食店舗

物件名
所在地
面積
間取り
所在階
築年数
方位
賃料
管理費等
共益費
敷金
保証金
礼金
種別
構造
殿町3丁目 紫紅ビル2F
202号室
新潟県長岡市殿町3丁目3番7号
26.23㎡
(7.93坪)
-
2階
49年
-
7.5万円
5,500円/月
看板電気代
3ヶ月
なし
1ヶ月
店舗
鉄筋コン
  • 殿町3丁目 紫紅ビル2F
    ふどうさんの相談所 (ライフデザイン合同会社 イオン長岡店)
  • この物件を問い合わせる/無料
  • TEL: 0258-94-4370

物件画像

外観 間取り
物件画像
※画像クリックで拡大表示
内観1
物件画像
※画像クリックで拡大表示
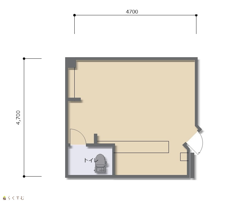
PLAN
詳細画像


物件概要

物件コード 00039-100089
物件名 殿町3丁目 紫紅ビル2F
交通 駅:上越新幹線 長岡駅から徒歩10分、バス:大手通2丁目から徒歩4分
所在地 新潟県長岡市殿町3丁目3番7号
物件種別 店舗
総戸数 -
構造 鉄筋コン 階建 地上2階地下1階建
所在階/階数 2階/2階 号室 202号室
面積 26.23㎡ /7.93坪 方位 -
間取り -
賃料 7.5万円/月
管理費 5,500円/月
礼金 1ヶ月
敷金 3ヶ月
ほか初期費用 - その他諸費用 -
更新料 - 火災(家財)保険 別途 要加入
共益費 1,100円
看板電気代
町内費 -
駐車場 - バイク料金 -
鍵交換費 - 清掃料 -
更新事務手数料 -
保証区分 保証会社のみ
保証会社 区分:加入要
保証会社名:ジェイリース
J-akinai
家賃保証金 80,000円
初回保証料 1ヶ月 継続保証料(毎年)10%
連帯保証人 区分:不要
-
仲介手数料 82,500円
築年月 1976年6月(築49年)
利用制限 学生:不可、単身者:不可、二人入居:不可、シニア(60歳以上)入居:不可、子供:不可、ペット:不可、楽器:不可、事務所利用:可、ルームシェア:不可
学校区 阪之上小学校(869m)・東中学校(1,439m)
設備 2階以上、給湯
入居時期 相談
取引態様 仲介
備考 *空調設備は冷房のみです。
*店舗内部は一部工事未了ですので、補修工事が必須となります。
手数料負担割合/配分割合 貸主:-%   借主:100% / 元付:50%   客付:50%  
取り扱い会社

ふどうさんの相談所 (ライフデザイン合同会社 イオン長岡店)

新潟県長岡市古正寺1-249-1イオン長岡店3F

情報登録日 2025/10/25 次回更新予定日 2025/12/19
  • 殿町3丁目 紫紅ビル2F
    ふどうさんの相談所 (ライフデザイン合同会社 イオン長岡店)
  • この物件を問い合わせる/無料
  • TEL: 0258-94-4370

この物件の地図・周辺情報・行政情報

この物件の周辺情報・行政情報を詳しく見る
【周辺情報】
物件の近くにあるコンビニや銀行・学校など、アイコン付のマップで詳しく表示できます!
【行政情報】
水道料や下水道料・ガス料金など、暮らしに関係のある情報を表示しています。

担当取扱い店舗情報

取扱い店舗画像
ふどうさんの相談所 (ライフデザイン合同会社 イオン長岡店)
TEL: 0258-94-4370
所在地: 新潟県長岡市古正寺1-249-1イオン長岡店3F
交通: 長岡駅
営業時間: 10:00~20:00/定休日:年末年始・特別日はお休みいたします
免許番号: 新潟県知事(3)第5090号 この会社の情報を詳しく見る
所属団体名: 全日本不動産協会 新潟県本部
取引態様: 仲介
ホームページ: http://life-dn.com