物件掲載企業数:301|賃貸物件:3,189件|売買物件:3,245件|今週の登録物件:114
閲覧中のブラウザ(インターネットエクスプローラー)は非推奨ブラウザです。
物件が正しく表示されなかったり、正しく検索されない場合があります。最新のブラウザ(Google Chrome・Edgeなど)にてご利用お願いいたします。
  

新潟県見附市本所2丁目2-47 アパート 1LDK 5.5万円の物件情報

駅から徒歩5分♪ オール電化・エコキュートの充実設☆嬉しい宅配ボックス完備

物件名
所在地
面積
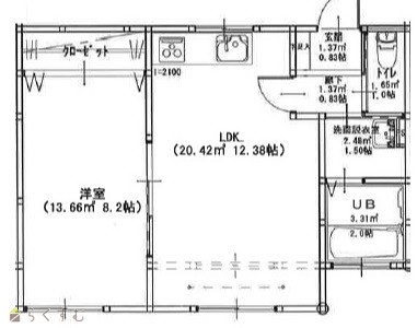
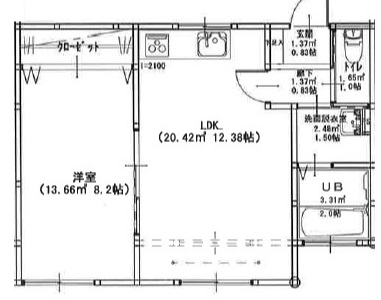
間取り
所在階
築年数
方位
賃料
管理費等
共益費
敷金
保証金
礼金
種別
構造
第6コーポヴィラ 充実設備満載
203号室
新潟県見附市本所2丁目2-47
46.4㎡
(14.03坪)
1LDK
2階
10年
指定なし
5.5万円
なし
あり
1ヶ月
なし
なし
アパート・マンション・一戸建て
木造
  • 第6コーポヴィラ 充実設備満載
    新潟化成株式会社
  • この物件を問い合わせる/無料
  • TEL: 0258-86-8222

物件画像

外観 間取り
物件画像
※画像クリックで拡大表示
外観
物件画像
※画像クリックで拡大表示
間取り
詳細画像


物件概要

ゆったり広々バスの魅力が物件です♪
物件コード 00015-100640
物件名 第6コーポヴィラ 充実設備満載
交通 駅:信越線 見附駅から徒歩5分、バス:見附高校前から徒歩4分
所在地 新潟県見附市本所2丁目2-47
物件種別 アパート・マンション・一戸建て
総戸数 -
構造 木造 階建 地上2階建
所在階/階数 2階/2階 号室 203号室
面積 46.4㎡ /14.03坪 方位 指定なし
間取り 1LDK (洋室:8.2)
LDK12.38
賃料 5.5万円/月
管理費 -
礼金 -
敷金 1ヶ月
ほか初期費用 - その他諸費用 -
更新料 - 火災(家財)保険 20,000円
共益費 2,000円
町内費 450円
駐車場 1台無料 バイク料金 -
鍵交換費 18,700円
清掃料 -
初回保証料 800円
更新事務手数料 10,000円
2年毎税別
保証区分 保証会社+緊急連絡先
保証会社 区分:加入要
保証会社名:その他 (ジェイリース)
初回保証料
家賃保証金 28,725円
連帯保証人 区分:不要
-
仲介手数料 60,500円
築年月 2016年3月(築10年)
利用制限 -
学校区 見附小学校(1,490m)・西中学校(1,026m)
設備 閑静な住宅街、最寄り駅近く、LDK12畳以上、駐車場1台無料、駐車場 礼金なし、駐車場 敷金なし、角住居、システムキッチン、2口コンロ、IHクッキングヒーター、バストイレ別、浴室1坪以上、追いだき機能付き、温水洗浄便座、暖房便座、洗面所独立、シャワー付き洗面台、エアコン、エアコン2基、オール電化、サンルーム、複層サッシ、洗濯機置場 室内、エコキュート、玄関収納、クロゼット、TVモニター付きインターホン、保証会社利用可能、礼金不要、新築・築浅物件
入居時期 2026年4月上旬
取引態様 仲介
備考 駐車場2台目3,000円(縦列)
手数料負担割合/配分割合 貸主:-%   借主:-% / 元付:-%   客付:-%  
取り扱い会社

新潟化成株式会社

新潟県見附市本町1-1-39 2F

情報登録日 2026/02/13 次回更新予定日 2026/05/21
  • 第6コーポヴィラ 充実設備満載
    新潟化成株式会社
  • この物件を問い合わせる/無料
  • TEL: 0258-86-8222

この物件の地図・周辺情報・行政情報

この物件の周辺情報・行政情報を詳しく見る
【周辺情報】
物件の近くにあるコンビニや銀行・学校など、アイコン付のマップで詳しく表示できます!
【行政情報】
水道料や下水道料・ガス料金など、暮らしに関係のある情報を表示しています。

担当取扱い店舗情報

取扱い店舗画像
新潟化成株式会社
TEL: 0258-86-8222
所在地: 新潟県見附市本町1-1-39 2F
交通: 信越線見附駅 バス本町十字路
営業時間: 9時~18時 ※土曜9時~17時 /定休日:第二第三土曜・日曜・祝日※事前予約での定休日相談可
免許番号: 新潟県知事(11)2726 この会社の情報を詳しく見る
所属団体名: 新潟県宅地建物取引業協会 三条支部
取引態様: 仲介
ホームページ: http://www.niigata-kasei.co.jp/