物件掲載企業数:301|賃貸物件:3,172件|売買物件:3,243件|今週の登録物件:159
閲覧中のブラウザ(インターネットエクスプローラー)は非推奨ブラウザです。
物件が正しく表示されなかったり、正しく検索されない場合があります。最新のブラウザ(Google Chrome・Edgeなど)にてご利用お願いいたします。
  

新潟県長岡市下山2丁目1153 駐車場 0.5万円の物件情報

融雪設備付き駐車場

物件名
所在地
面積
間取り
所在階
築年数
方位
賃料
管理費等
共益費
敷金
保証金
礼金
種別
構造
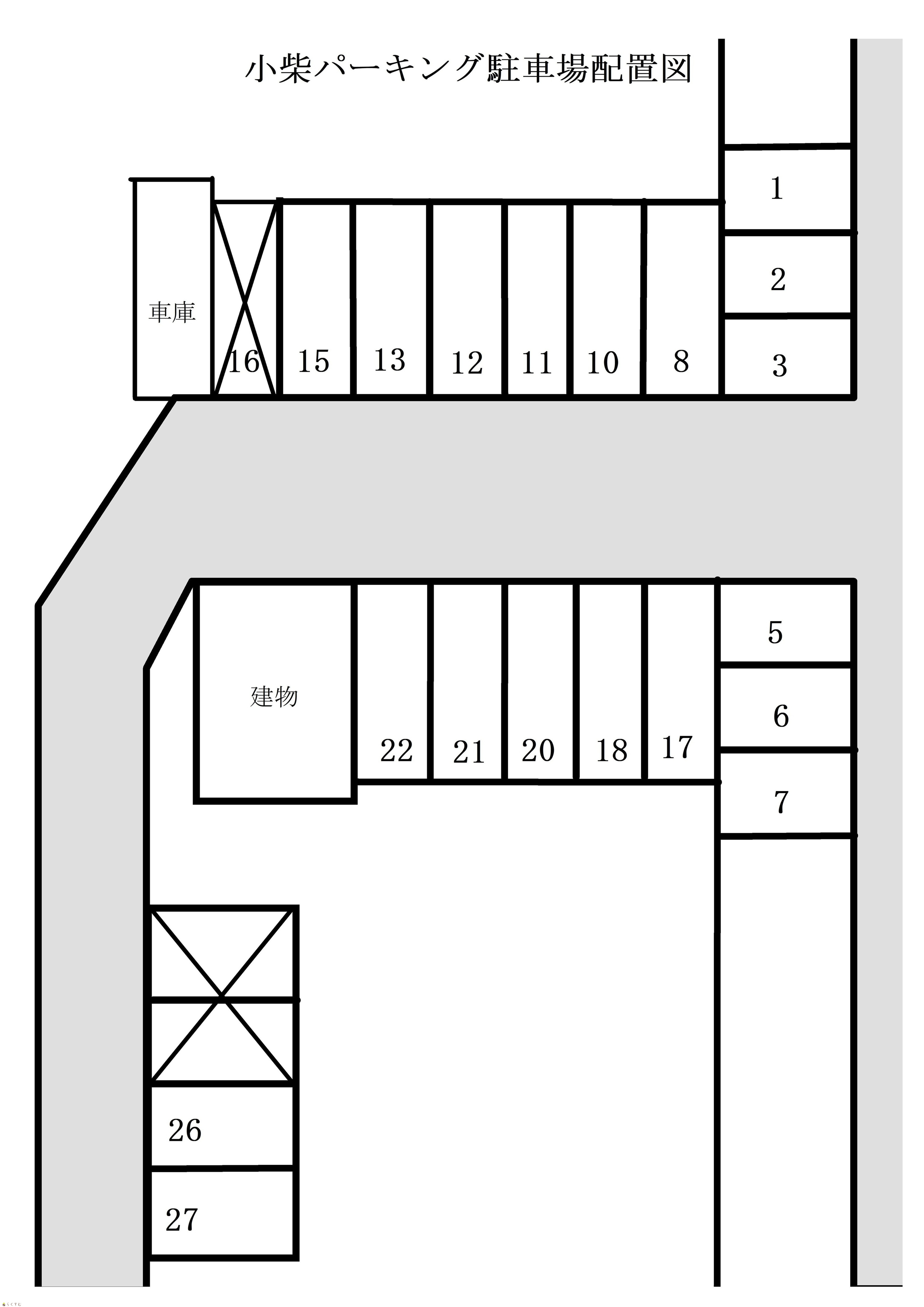
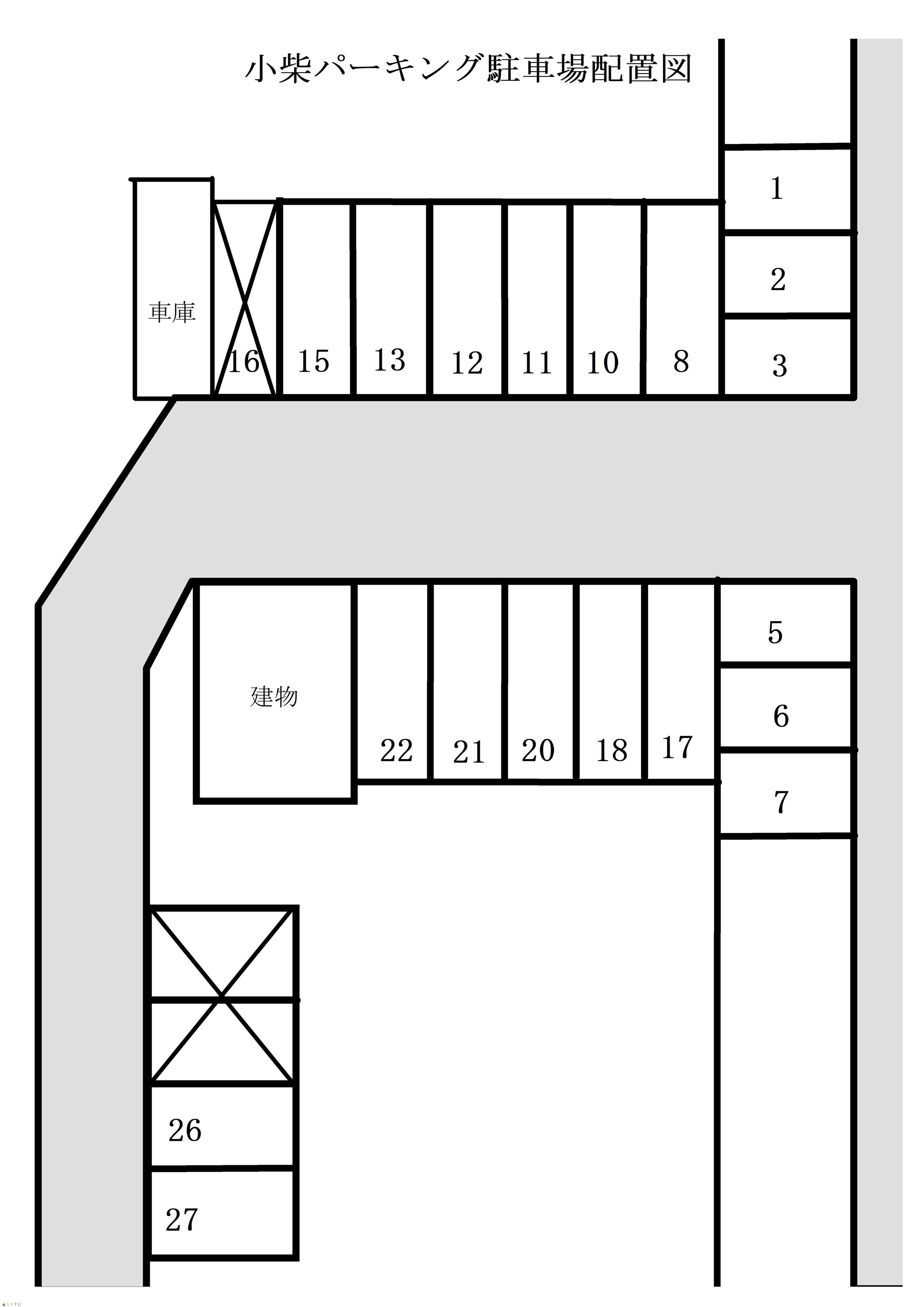
小柴パーキング
新潟県長岡市下山2丁目1153
-
-
-
-
-
0.5万円
なし
なし
なし
なし
なし
駐車場
-
  • 小柴パーキング
    有限会社 地建事務所
  • この物件を問い合わせる/無料
  • TEL: 0258-28-1528

物件画像

外観 間取り
物件画像
※画像クリックで拡大表示
外観
物件画像
※画像クリックで拡大表示
平面図
詳細画像


物件概要

物件コード 00010-100084
物件名 小柴パーキング
交通 駅:上越新幹線 長岡駅から徒歩57分、バス:下山から徒歩2分
所在地 新潟県長岡市下山2丁目1153
物件種別 駐車場
総戸数 -
構造 - 階建 -
所在階/階数 - 号室 -
面積 - 方位 -
間取り -
賃料 0.5万円/月
冬期間のみ使用の場合は月額6,000円となります。
管理費 -
礼金 -
敷金 -
ほか初期費用 - その他諸費用 -
更新料 - 火災(家財)保険 -
共益費 - 町内費 -
駐車場 - バイク料金 -
鍵交換費 - 清掃料 -
更新事務手数料 -
保証区分 緊急連絡先のみ
保証会社 区分:指定なし
-
連帯保証人 区分:不要
-
仲介手数料 5,500円
築年月 -
利用制限 -
学校区 希望が丘小学校(560m)・西中学校(1,000m)
設備 舗装、即利用可能、融雪井戸あり
入居時期 令和8年6月1日
取引態様 仲介
備考 -
手数料負担割合/配分割合 貸主:-%   借主:100% / 元付:50%   客付:50%  
取り扱い会社

有限会社 地建事務所

新潟県長岡市北山1丁目43番地12

情報登録日 2026/04/17 次回更新予定日 2026/05/18
  • 小柴パーキング
    有限会社 地建事務所
  • この物件を問い合わせる/無料
  • TEL: 0258-28-1528

この物件の地図・周辺情報・行政情報

この物件の周辺情報・行政情報を詳しく見る
【周辺情報】
物件の近くにあるコンビニや銀行・学校など、アイコン付のマップで詳しく表示できます!
【行政情報】
水道料や下水道料・ガス料金など、暮らしに関係のある情報を表示しています。
セブンイレブン 長岡北山2丁目店(コンビニ)まで740m
ウオロク 北山店(スーパー)まで800m

※カメラのアイコンがある場合は、マウスをポイントするとその施設の画像がご覧いただけます。


担当取扱い店舗情報

取扱い店舗画像
有限会社 地建事務所
TEL: 0258-28-1528
所在地: 新潟県長岡市北山1丁目43番地12
交通: 北山バス停の目の前です☆
営業時間: 9:00~17:30(第1.3.5土曜営業9:00~15:00)/定休日:日曜・祝日・第2・4土曜日
免許番号: 新潟県知事(12)2357号 この会社の情報を詳しく見る
所属団体名: 新潟県宅地建物取引業協会 長岡支部
取引態様: 仲介
ホームページ: https://www.chikenjimusyo.co.jp