物件掲載企業数:301|賃貸物件:3,260件|売買物件:3,239件|今週の登録物件:257
閲覧中のブラウザ(インターネットエクスプローラー)は非推奨ブラウザです。
物件が正しく表示されなかったり、正しく検索されない場合があります。最新のブラウザ(Google Chrome・Edgeなど)にてご利用お願いいたします。
  

新潟県長岡市三ツ郷屋1丁目11-5 アパート 1K 3.5万円の物件情報

三ツ郷屋にある単身用アパート

物件名
所在地
面積
間取り
所在階
築年数
方位
賃料
管理費等
共益費
敷金
保証金
礼金
種別
構造
ハイクレスト16
110号室
新潟県長岡市三ツ郷屋1丁目11-5
26.44㎡
(7.99坪)
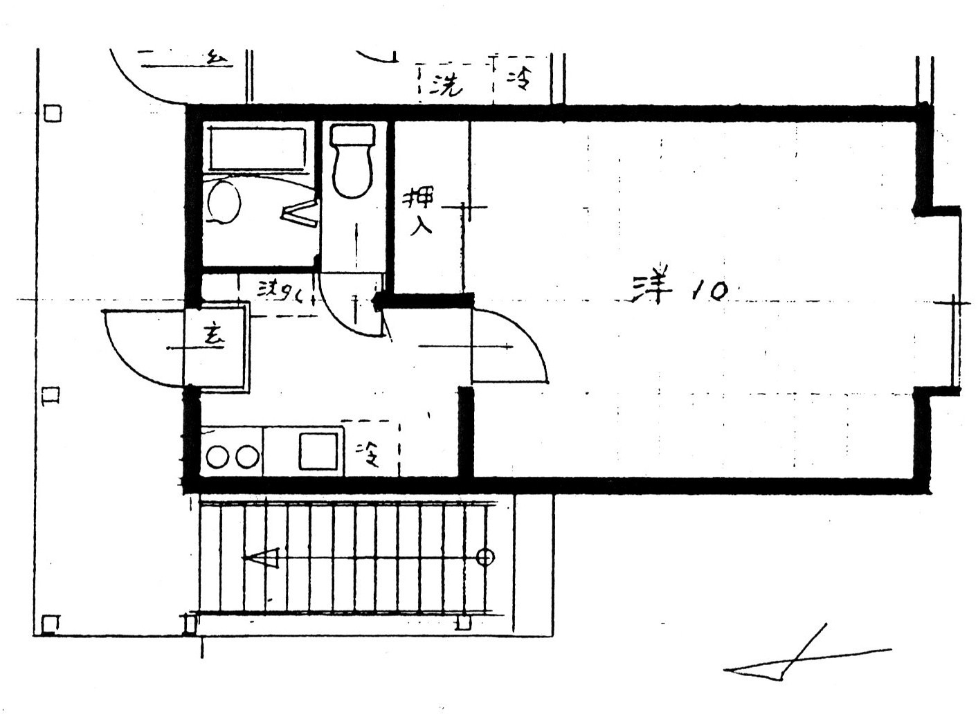
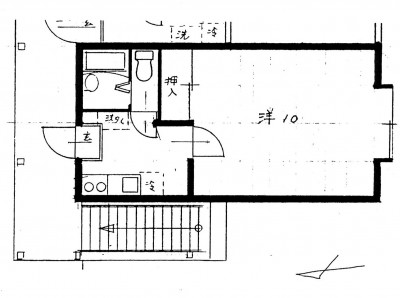
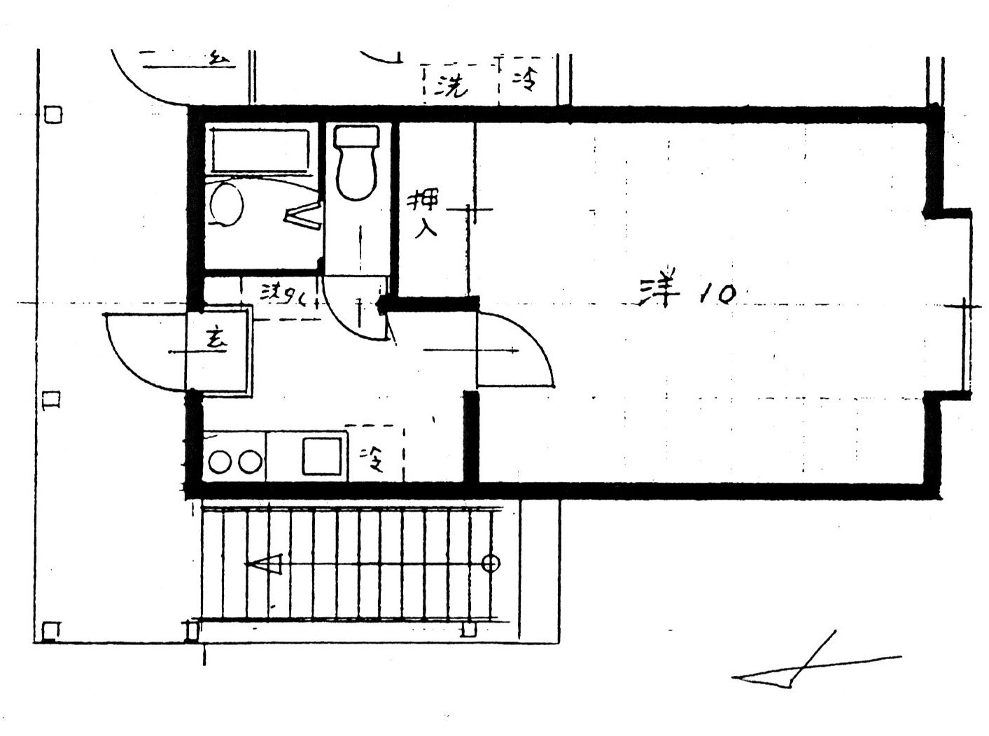
1K
1階
30年
指定なし
3.5万円
なし
なし
なし
なし
なし
アパート・マンション・一戸建て
木造
  • ハイクレスト16
    有限会社 五十嵐商事
  • この物件を問い合わせる/無料
  • TEL: 0258-28-1414

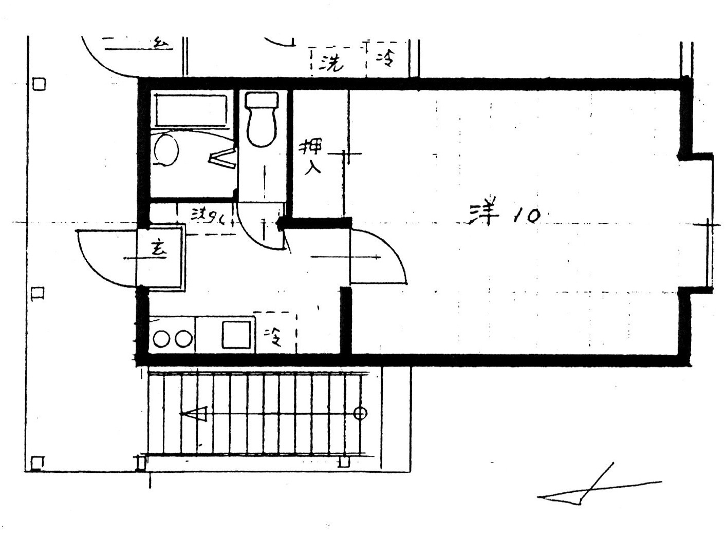
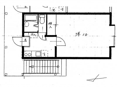
物件画像

外観 間取り
物件画像
※画像クリックで拡大表示
外観
物件画像
※画像クリックで拡大表示
平面図
詳細画像


物件概要

物件コード 00004-100345
物件名 ハイクレスト16
交通 駅:長岡駅、バス:大島4丁目から徒歩4分
所在地 新潟県長岡市三ツ郷屋1丁目11-5
物件種別 アパート・マンション・一戸建て
総戸数 -
構造 木造 階建 地上2階建
所在階/階数 1階/2階 号室 110号室
面積 26.44㎡ /7.99坪 方位 指定なし
間取り 1K (洋室:10)
賃料 3.5万円/月
管理費 -
礼金 -
敷金 -
ほか初期費用 - その他諸費用 -
更新料 - 火災(家財)保険 要加入
共益費 - 町内費 400円
駐車場
付無料
バイク料金 -
鍵交換費 17,600円
清掃料 -
更新事務手数料 -
保証区分 保証会社+緊急連絡先
保証会社 区分:加入要
保証会社名:ジェイリース
①Jフラット 初回保証料 月額の総賃料70%、継続保証料 月額1,200円 ②学生プラン 初回保証料 一律 2万円、継続保証料 月額1,000円 ③留学生 連帯保証人 学校、敷金 4万円
家賃保証金 24,780円
連帯保証人 区分:不要
-
仲介手数料 38,500円
築年月 1995年12月(築30年)
利用制限 二人入居:不可、ペット:不可、楽器:不可、ルームシェア:不可
学校区 大島小学校(377m)・大島中学校(565m)
設備 閑静な住宅街、バス停近く、駐車場1台無料、角住居、バストイレ別、エアコン、都市ガス、全居室フローリング、洗濯機置場 室内、押入、各居室照明、即入居可、敷金・礼金不要、一人暮らし・学生向け、保証会社要加入
入居時期 即入居可
取引態様 仲介
備考 画像と現況が異なる場合現況を優先します。
手数料負担割合/配分割合 貸主:0%   借主:100% / 元付:50%   客付:50%  
取り扱い会社

有限会社 五十嵐商事

新潟県長岡市三ツ郷屋2丁目5-23

情報登録日 2025/11/21 次回更新予定日 2026/06/08
  • ハイクレスト16
    有限会社 五十嵐商事
  • この物件を問い合わせる/無料
  • TEL: 0258-28-1414

この物件の地図・周辺情報・行政情報

この物件の周辺情報・行政情報を詳しく見る
【周辺情報】
物件の近くにあるコンビニや銀行・学校など、アイコン付のマップで詳しく表示できます!
【行政情報】
水道料や下水道料・ガス料金など、暮らしに関係のある情報を表示しています。
ファミリーマート 長岡大島本町店(コンビニ)まで240m
ウオロク 北山店(スーパー)まで910m
クスリのアオキ 大島店(ドラッグストア)まで810m
長岡西病院(病院)まで640m
(株)大光銀行 希望が丘支店(銀行)まで450m
長岡大島郵便局(郵便局)まで650m

※カメラのアイコンがある場合は、マウスをポイントするとその施設の画像がご覧いただけます。


担当取扱い店舗情報

取扱い店舗画像
有限会社 五十嵐商事
TEL: 0258-28-1414
所在地: 新潟県長岡市三ツ郷屋2丁目5-23
交通: 西長岡案内所バス停徒歩2分
営業時間: 平日9時~18時・土曜日10時~15時(3月休みなし)/定休日:日曜、祝祭日、年末年始(12/27~1/4)
免許番号: 新潟県知事(14)1645号 この会社の情報を詳しく見る
所属団体名: 新潟県宅地建物取引業協会 長岡支部
取引態様: 仲介
ホームページ: https://ikarashi-shouji.com/