売買(新築住宅)長岡市石内B棟 詳細

外観
くすんだグリーンの外壁が、ナチュラルで落ち着いた印象を演出♪
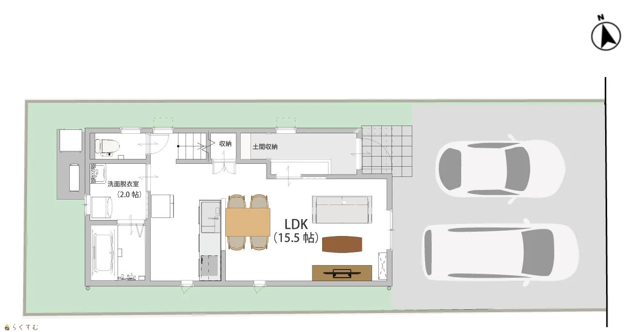
間取り
全室収納&土間収納、2階サンルーム付きと、暮らしやすい間取り
その他の画像
駐車2台可能
15.5帖のLDKには、収納付きで暮らしやすい空間です。
東向きの掃き出し窓で朝から気持ちよく過ごせますね。
LDKにはうれしいエアコン付き!
キッチンは対面式で、家族の様子を見ながら料理ができます。
収納豊富なIHキッチンで、調理がスムーズに。
背面はコンセント付きで、好みのカップボードを設置できます。
洗面台はシャワーノズル付きで、掃除や身支度が便利です。
落ち着いた空間で、一日の疲れをゆったり癒せるバスルーム。
1階トイレは、家族もゲストも使いやすい設計。
2階にもトイレがあり、家族みんなが使いやすい2箇所設置が魅力
2階洋室7.5帖 ゆったりの広さで、主寝室におすすめ◎
2階洋室5.2帖 全居室オープンクローゼット完備
2階洋室5.2帖 子ども部屋や書斎にもいかがでしょうか。
2階ホールにホスクリーンを設置済み!天候の心配無しで洗濯可能
土間収納のある玄関で、毎日の出入りも快適&整理整頓しやすい。
玄関にはモニターホンと外水栓を完備。安心・便利な設備です。
東側約7.8m公道 消雪パイプも完備され、雪が降っても安心
物件詳細へ戻る
Copyright (C) 株式会社 コモンライフ・コーポレーション. All Rights Reserved.
不動産検索サイト「らくすむ」及び関連サイトに記載の不動産情報は、会員規約に則り、情報提供会社様の責任のもとに発信されております。
不動産の賃借、購入に関しては賃借者、購入者ご自身が情報を確認され、会社企業様から説明を受けられたうえで判断をお願いいたします。
不動産検索サイト「らくすむ」及び関連サイトに記載の不動産情報、写真、デザイン、コンテンツなどの無断転載・転用・複製など禁止します。