売買(新築住宅)長岡市宮内 第1 詳細

外観
完成しました!お気軽にお問い合わせください♪
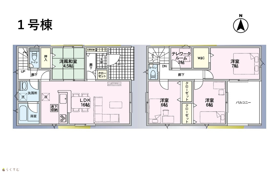
間取り
全居室収納付♪住み心地のいい大きさ。お問い合わせ下さい♪
その他の画像
区画図 駐車2台可能
前面道路には消雪パイプ有
【ご購入者様特典のメンテナンス制度】
耐震装置【SAFE365】搭載
ベタ基礎工法採用 より丈夫な土台を築く為にこだわっています。
住宅性能表示制度において耐震、劣化対策など、最高等級を取得
16帖あるLDK 家族みんなが集まってもゆったり過ごせます
人気の対面キッチン 
キッチン収納
洗面脱衣室 
足を伸ばせる一坪風呂
浴室暖房乾燥機
温水洗浄機能付きトイレを各階に完備
洋室7帖 各居室に収納完備
ウォークインクローゼット あると嬉しい大容量収納
洋室6帖 2階居室は全室二面採光で陽当たり通風良好
インナバルコニー たっぷりとお洗濯ものが干せます♪
テレワークスペース 集中して作業できる環境が整っています。
玄関には大容量の収納完備 
物件詳細へ戻る
Copyright (C) 株式会社 コモンライフ・コーポレーション. All Rights Reserved.
不動産検索サイト「らくすむ」及び関連サイトに記載の不動産情報は、会員規約に則り、情報提供会社様の責任のもとに発信されております。
不動産の賃借、購入に関しては賃借者、購入者ご自身が情報を確認され、会社企業様から説明を受けられたうえで判断をお願いいたします。
不動産検索サイト「らくすむ」及び関連サイトに記載の不動産情報、写真、デザイン、コンテンツなどの無断転載・転用・複製など禁止します。