売買(新築住宅)長岡市花園 詳細

外観
シンプルで洗練された美しい外観!お気軽にお問い合わせください
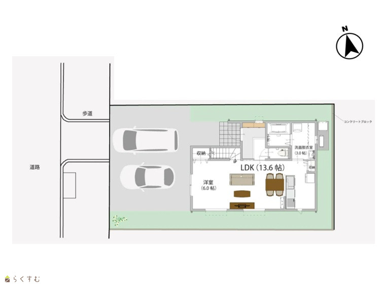
間取り
収納充実&家事動線◎機能性に優れた4LDKプラン
その他の画像
駐車スペース2台(車種により駐車可)
モノトーンに木目とブラウンを添え、程よく柔らかな印象のLDK
13.6帖LDKと6帖洋室がつながる開放的なレイアウト。
南向きの掃き出し窓が、室内に心地よい陽光を届けます。
手元が見えにくいカウンターキッチンで生活感を抑えた空間に。
背面はお好みのカップボードが置け、収納スペースも確保しました
扉付きの可動棚で、すっきり収納できます。
洗面室にはホスクリーン付きで洗濯機からそのまま干せます♪
落ち着いた空間で、一日の疲れをゆったり癒せます。
1階のトイレは、来客用としても使いやすい位置にあります。
2階もトイレがあり、ご家族みんなが使いやすい2箇所設置が魅力
2階洋室7帖 エアコン付きで、主寝室にお勧め◎
2階洋室5.2帖 服等が出し入れしやすいオープンクローゼット
2階洋室5.2帖 プライベート空間としても使いやすい空間です
2階ホールにホスクリーンを設置済み!室内で安心して干せますね
玄関にシューズボックスを備え、L字型のゆとりある動線を確保。
モニターホン付きの玄関で、防犯面も配慮されています。
前面道路は西側16m市道、消雪パイプや歩道も完備。
物件詳細へ戻る
Copyright (C) 株式会社 コモンライフ・コーポレーション. All Rights Reserved.
不動産検索サイト「らくすむ」及び関連サイトに記載の不動産情報は、会員規約に則り、情報提供会社様の責任のもとに発信されております。
不動産の賃借、購入に関しては賃借者、購入者ご自身が情報を確認され、会社企業様から説明を受けられたうえで判断をお願いいたします。
不動産検索サイト「らくすむ」及び関連サイトに記載の不動産情報、写真、デザイン、コンテンツなどの無断転載・転用・複製など禁止します。