売買(新築住宅)長岡市川崎1丁目 詳細

外観
庭テラスのある重厚感溢れた外観です。
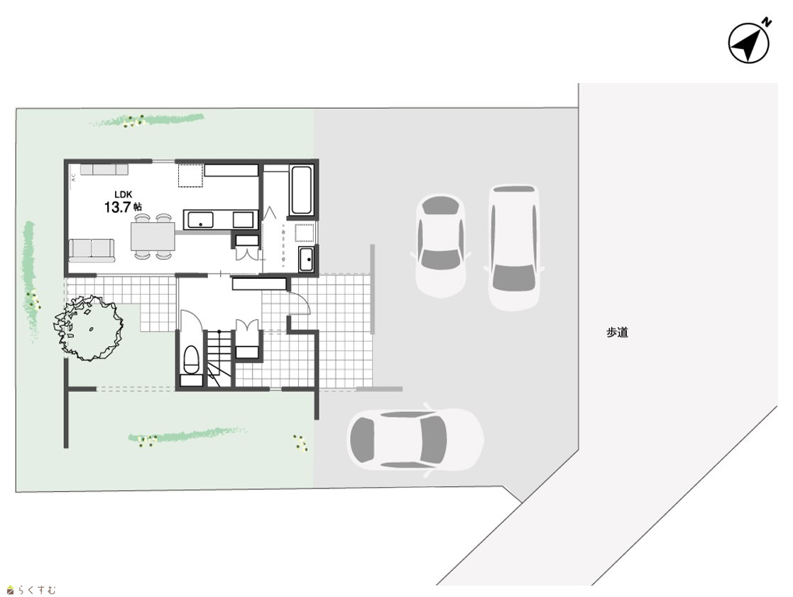
間取り
多彩な収納!各室収納・WIC・土間収納完備!
その他の画像
駐車3台可能!
庭テラスと繋がりを持たせた13.7帖のLDK。
嬉しいエアコンやリビング収納付きです♪
横並びのキッチンで、動線がコンパクトになり家事効率UP!
食洗機とIHコンロ搭載のシステムキッチンです。
スタイリッシュな洗面空間にはホスクリーン付き。
浴室TV付きでゆったり湯船に浸かりながら疲れを癒せそうです。
各フロアにトイレを完備。
2階洋室6.5帖 エアコンとウォークインクローゼット付き。
衣類などをたっぷり収納できるウォークインクローゼット。
2階洋室5.6帖 子ども部屋などにいかがでしょうか。
2階ホールは開放感があり、ゆったりとした空間です。
2階のホールにはカウンターとホスクリーンが設置済み◎
2階ホール収納は可動棚ですので、お好きな高さに調整可能!
玄関収納とシューズボックス付きの玄関。
広々とした土間収納は履物の他、ベビーカーなどの収納にも◎
管理が簡単な人工芝の張られたお庭です♪
前面道路は東側16m市道、北側8.5m市道
物件詳細へ戻る
Copyright (C) 株式会社 コモンライフ・コーポレーション. All Rights Reserved.
不動産検索サイト「らくすむ」及び関連サイトに記載の不動産情報は、会員規約に則り、情報提供会社様の責任のもとに発信されております。
不動産の賃借、購入に関しては賃借者、購入者ご自身が情報を確認され、会社企業様から説明を受けられたうえで判断をお願いいたします。
不動産検索サイト「らくすむ」及び関連サイトに記載の不動産情報、写真、デザイン、コンテンツなどの無断転載・転用・複製など禁止します。