売買柏崎市諏訪町3階建 詳細

外観
外観
間取り
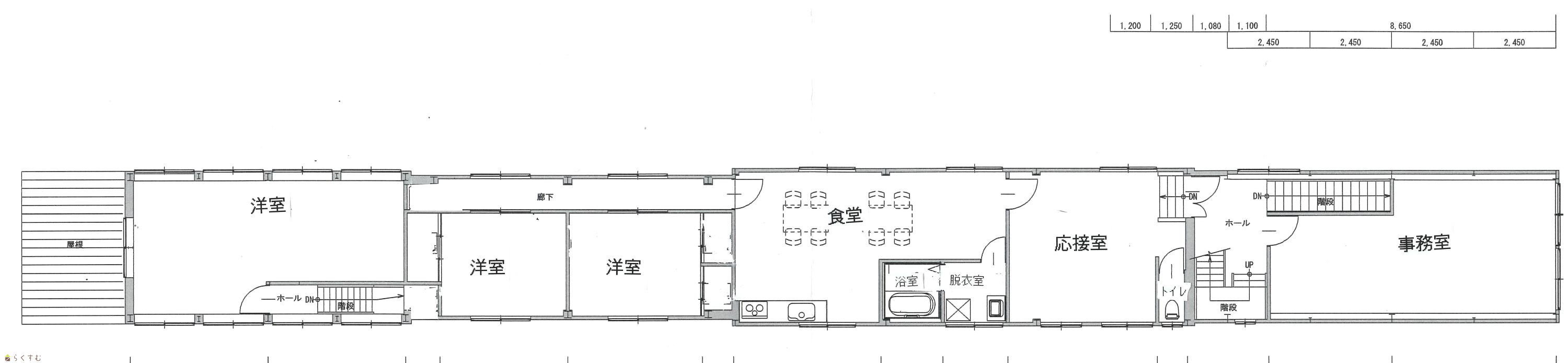
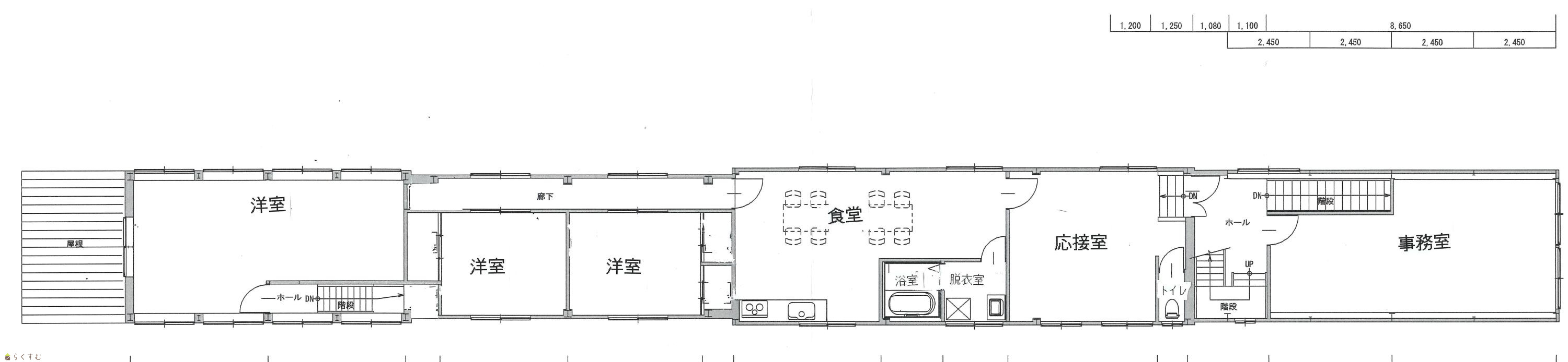
1階平面図
その他の画像
2階平面図
3階平面図
1階倉庫スペース(駐車可能)
1階倉庫スペース(クレーン有)
2階事務所スペース ①
2階事務所スペース ②
2階事務所スペース ③
ダイニングキッチン
ダイニングキッチン ②
浴室
トイレ
洗面脱衣
ホール
リビング ①
リビング ②
居室 ①
居室 ②
居室 ③
洋室 
地図画像
物件詳細へ戻る
Copyright (C) 株式会社 コモンライフ・コーポレーション. All Rights Reserved.
不動産検索サイト「らくすむ」及び関連サイトに記載の不動産情報は、会員規約に則り、情報提供会社様の責任のもとに発信されております。
不動産の賃借、購入に関しては賃借者、購入者ご自身が情報を確認され、会社企業様から説明を受けられたうえで判断をお願いいたします。
不動産検索サイト「らくすむ」及び関連サイトに記載の不動産情報、写真、デザイン、コンテンツなどの無断転載・転用・複製など禁止します。