売買柏崎市松波2丁目 建売住宅 1号棟 詳細

外観
外観
間取り
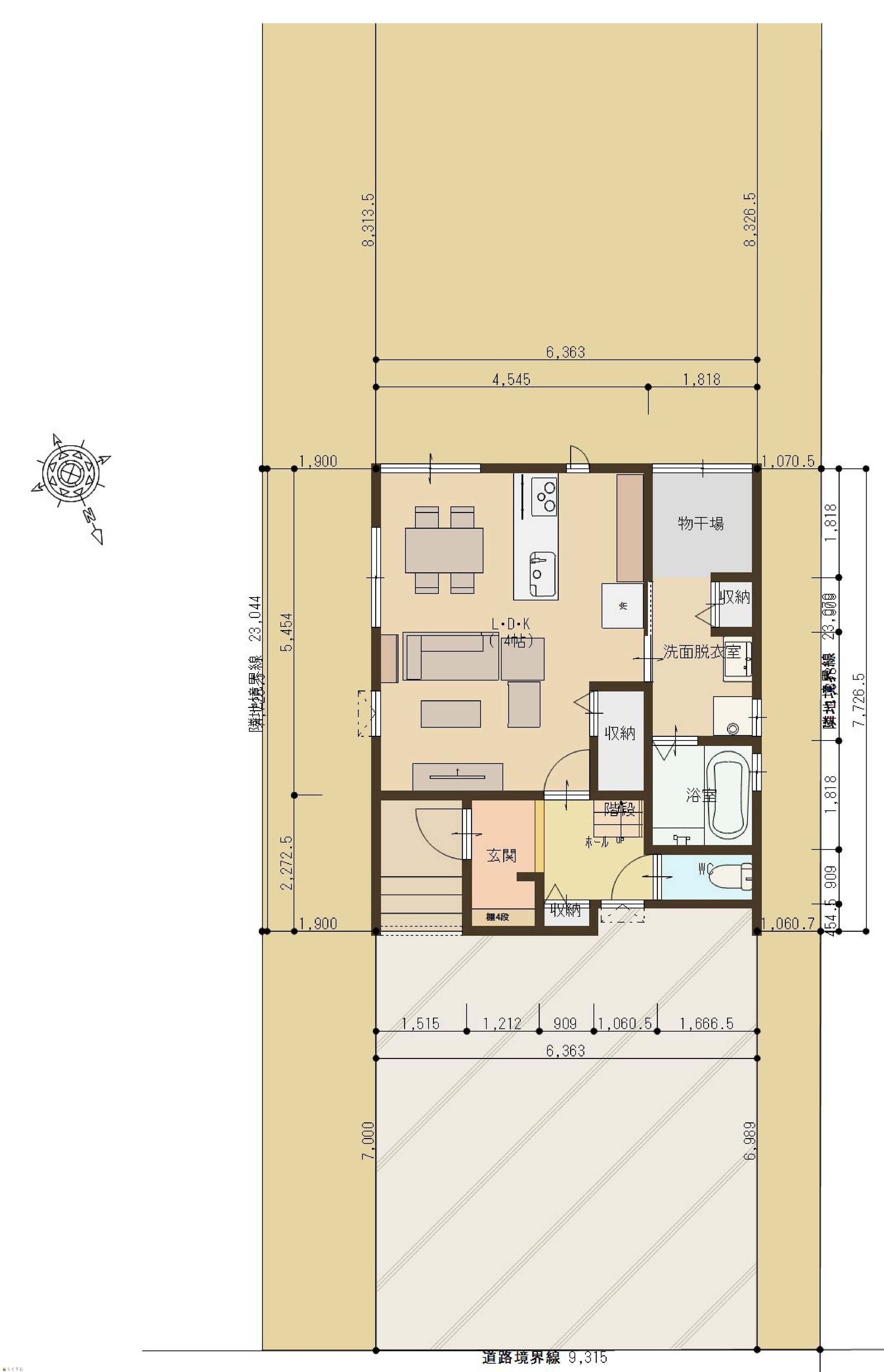
地型付間取り図
その他の画像
1階
2階
LDK14帖
キッチン
玄関ホール
洗面脱衣室
ユニットバス
2階洋室7帖
2階洋室6帖1
2階洋室6帖2
2階トイレ 1階・2階にトイレ完備♪
2階ホール
2階洋室7帖のウォークインクローゼット
キッチンシンクの上にダクトレール付きです。
寒冷地用エアコン
給湯器リモコン
キッチン収納
前面道路の幅員は7.8mで、お車の苦手な方も安心ですね♪
BELS/建築物省エネ基準適合認定書あり
地図画像
物件詳細へ戻る
Copyright (C) 株式会社 コモンライフ・コーポレーション. All Rights Reserved.
不動産検索サイト「らくすむ」及び関連サイトに記載の不動産情報は、会員規約に則り、情報提供会社様の責任のもとに発信されております。
不動産の賃借、購入に関しては賃借者、購入者ご自身が情報を確認され、会社企業様から説明を受けられたうえで判断をお願いいたします。
不動産検索サイト「らくすむ」及び関連サイトに記載の不動産情報、写真、デザイン、コンテンツなどの無断転載・転用・複製など禁止します。