
胎内市西本町中古住宅(価格交渉可) 詳細
お気に入り
追加済み
物件画像を詳しく見る
360度画像を詳しく見る

純北海道仕様の築浅スタイリッシュ物件です♪
物件概要
価格交渉可能ですので是非一度お問合せください。
-
物件コード
00382-200005
-
物件名
胎内市西本町中古住宅(価格交渉可)
-
交通
駅:羽越線 中条駅から徒歩3分
-
所在地
新潟県胎内市西本町18-47
物件へのルート表示
-
物件種別
中古一戸建て
-
構造
木造
-
階建
地上2階建
-
建ぺい率/容積率
60%/200%
-
建物面積
117.38㎡
/35.5坪
-
土地面積
209.37㎡
/63.33坪
-
築年月
2019年12月(築6年)
-
入居時期
随時入居(引き渡し)可
-
用途地域
第1種住居地域
-
地目
宅地 (現状:宅地)
-
都市計画
市街化区域
-
形状
間口 11.40m × 奥行 18.36m
-
道路
市道 西本町南1号線 幅員6.0m
-
私道
-
-
その他の制限
22条指定区域
物件詳細情報
-
所在階/階数
-
-
号室
-
-
販売価格
32,800,000円
-
方位
北
-
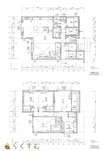
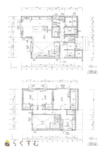
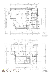
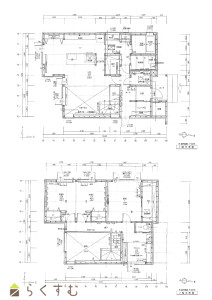
間取り
2LDK (洋室:10.5、7)、LDK20.2
-
専有面積
-
-
バルコニー面積
-
-
その他面積
-
-
駐車場
-
-
管理費
-
-
修繕積立金
-
-
現況
空家
-
仲介手数料
1,148,400円
-
利用制限
-
-
学校区
中条小学校(958m)・中条中学校(1,173m)
-
設備
閑静な住宅街、瑕疵担保保険対象、新築時図面あり、建物確認・完了検査済証あり、瑕疵担保保険付き、LDK15帖以上、全室フローリング、築10年以内、駐車2台可能、TVインターホン、複層ガラス、デインプルキー、システムキッチン、カウンターキッチン、IHクッキングヒーター、食器洗浄乾燥機、3口コンロ、追いだき機能付き、バス1坪以上、温水洗浄便座、トイレ2か所以上、シャワー付き洗面台、エアコンあり、24時間換気システム、省エネ給湯機、都市ガス、上水道、下水道、ウォークインクローゼット、全居室収納あり、床下収納、シューズインクローゼット、BS端子、内装リフォーム済み、即引き渡し可能
-
取引態様
仲介
-
情報登録日
2025/09/23
-
次回更新予定日
2026/01/01
-
取引条件有効期限
2025/10/30
備考
令和6年7月リフォーム実施
床(フローリング等)、壁・天井(クロス・塗装等)、建具(室内ドア等)の一部キズがある箇所の補修。
ハウスクリーニング。
取扱い会社
合同会社 秋桜不動産
Copyright (C) 株式会社 コモンライフ・コーポレーション. All Rights Reserved.
不動産検索サイト「らくすむ」及び関連サイトに記載の不動産情報は、会員規約に則り、情報提供会社様の責任のもとに発信されております。
不動産の賃借、購入に関しては賃借者、購入者ご自身が情報を確認され、会社企業様から説明を受けられたうえで判断をお願いいたします。
不動産検索サイト「らくすむ」及び関連サイトに記載の不動産情報、写真、デザイン、コンテンツなどの無断転載・転用・複製など禁止します。