
春日山管財ビル 1F部分 詳細
お気に入り
追加済み
物件画像を詳しく見る

山麓線沿いのアクセス良好、見通しの良いオフィス
物件概要
-
賃料
66万円/月
-
管理費
55,000円/月
-
敷/礼
360万円/
なし
-
間取り
-
-
広さ
404.52㎡
/122.36坪
-
階建
地上2階建
-
築年数
1997年5月(築29年)
-
種別
事務所
-
住所
新潟県上越市大豆1丁目8-43
物件へのルート表示
-
交通
駅:妙高はねうまライン 春日山駅から徒歩16分、バス:春日野一丁目から徒歩2分
-
物件コード
00368-100001
-
物件名
春日山管財ビル 1F部分
-
交通
駅:妙高はねうまライン 春日山駅から徒歩16分、バス:春日野一丁目から徒歩2分
-
所在地
新潟県上越市大豆1丁目8-43
物件へのルート表示
-
物件種別
事務所
-
総戸数
1戸
-
構造
鉄骨
-
階建
地上2階建
-
所在階/階数
1階/2階
-
号室
-
-
専有面積
404.52㎡
/122.36坪
-
方位
-
-
間取り
-
-
賃料
66万円/月
(税込み金額)
-
管理費
55,000円/月
共益費含む
-
礼金
-
-
敷金
360万円
家賃の6ヶ月分
-
共益費
-
-
ほか初期費用
-
-
その他諸費用
-
-
更新料
-
-
火災(家財)保険
-
-
駐車場
専有20台
-
町内費
-
-
バイク料金
-
-
鍵交換費
-
-
清掃料
-
-
更新事務手数料
-
-
保証区分
保証会社+緊急連絡先
-
保証会社
区分:加入要
保証会社名:その他
(相談の上決定します)
-
-
連帯保証人
[区分]
不要
-
-
仲介手数料
-
-
手数料負担割合
貸主:-%
借主:-%
-
手数料配分割合
元付:-%
客付:-%
-
築年月
1997年5月(築29年)
-
利用制限
ペット:相談
-
学校区
春日小学校(534m)・春日中学校(584m)
-
設備
1階、オートロック、24時間セキュリティー、エアコン、男女トイレ別、即引き渡し可、駐車場あり
-
入居時期
相談
-
取引態様
貸主
-
情報登録日
2025/06/27
-
次回更新予定日
2026/05/15
備考
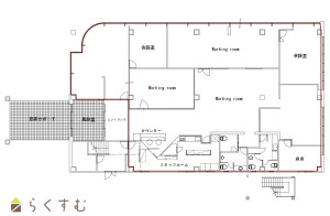
※専有部分は、1F間取り図より赤枠で囲われたエリアとなります。車寄せポーチから風除室、エントランスまでのエリアは共有スペースとなります。
※エアコンは2024年に入れ替え済みです。
※保証区分についての指定は無く、相談の上内容を決定します。
取扱い会社
有限会社 管財
-
TEL
025-543-9402
-
所在地
新潟県上越市五智1-2-19
-
交通
妙高はねうまライン「直江津駅」より徒歩10分
-
営業時間
平日9:00~17:00/定休日:
-
免許番号
新潟県知事(1)第5746号
-
所属団体名
公社 新潟県宅地建物取引協会 上越支部
-
取引態様
貸主
Copyright (C) 株式会社 コモンライフ・コーポレーション. All Rights Reserved.
不動産検索サイト「らくすむ」及び関連サイトに記載の不動産情報は、会員規約に則り、情報提供会社様の責任のもとに発信されております。
不動産の賃借、購入に関しては賃借者、購入者ご自身が情報を確認され、会社企業様から説明を受けられたうえで判断をお願いいたします。
不動産検索サイト「らくすむ」及び関連サイトに記載の不動産情報、写真、デザイン、コンテンツなどの無断転載・転用・複製など禁止します。