
長岡市琴平 新築建売住宅 詳細
お気に入り
追加済み
物件画像を詳しく見る

冬は暖かく、夏は涼しく24時間家中快適な高気密高断熱住宅◎エアコン1台で温度を一定にできるので光熱費の削減にもなります♪
物件概要
-
物件コード
00362-200025
-
物件名
長岡市琴平 新築建売住宅
-
交通
駅:信越線 北長岡駅から徒歩10分、バス:新町3丁目から徒歩7分
-
所在地
新潟県長岡市琴平3-3-31
物件へのルート表示
-
物件種別
新築一戸建て
-
構造
木造
-
階建
地上2階建
-
建ぺい率/容積率
60%/200%
-
建物面積
60.44㎡
/18.28坪
-
土地面積
98.5㎡
/29.79坪
-
築年月
2025年7月(築5ヶ月)
-
入居時期
相談
-
用途地域
第1種住居地域
-
地目
宅地
-
都市計画
市街化区域
-
形状
間口 6.4m × 奥行 15.4m
-
道路
南東側(道路幅:5.8m/接道幅:6.4m)
-
私道
-
-
その他の制限
-
物件詳細情報
-
所在階/階数
-
-
号室
-
-
販売価格
21,800,000円
-
方位
-
-
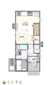
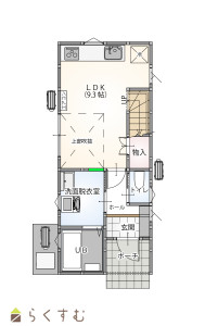
間取り
2LDK
-
専有面積
-
-
バルコニー面積
-
-
その他面積
-
-
駐車場
-
-
管理費
-
-
修繕積立金
-
-
現況
-
仲介手数料
なし
-
利用制限
-
-
学校区
新町小学校(460m)・北中学校(1,318m)
-
設備
整形地、日当り良好、閑静な住宅街、全室フローリング、駐車場2台以上、TVインターホン、複層ガラス、システムキッチン、IHクッキングヒーター、追いだき機能付き、バス1坪以上、温水洗浄便座、シャワー付き洗面台、エアコン、24時間換気システム、オール電化、省エネ給湯、高気密高断熱住宅、上水道、下水道、電気、ウォークインクローゼット、全居室収納あり、シューズBOX、照明器具付き
-
取引態様
一般
-
情報登録日
2025/05/20
-
次回更新予定日
2026/01/01
-
取引条件有効期限
2025/08/31
備考
*見どころポイント*
・階段下収納や各居室にクローゼットが付いていたりと収納スペースが充実☆
・吹抜けから入る陽の光でリビングを明るく照らしてくれます!
・24時間温度が一定なので、ペットとの暮らしにもおすすめです◎
・遮音性が優れているので、外の音が気になりません!
━☆ご予約随時受付中☆━━
「資料請求」ボタンよりお問い合わせください(*^^*)
取扱い会社
株式会社アップデート不動産
Copyright (C) 株式会社 コモンライフ・コーポレーション. All Rights Reserved.
不動産検索サイト「らくすむ」及び関連サイトに記載の不動産情報は、会員規約に則り、情報提供会社様の責任のもとに発信されております。
不動産の賃借、購入に関しては賃借者、購入者ご自身が情報を確認され、会社企業様から説明を受けられたうえで判断をお願いいたします。
不動産検索サイト「らくすむ」及び関連サイトに記載の不動産情報、写真、デザイン、コンテンツなどの無断転載・転用・複製など禁止します。