物件画像を詳しく見る

金額交渉可能!カーポートと屋外収納付きの2017年建築平家建です!
物件概要
日当たりの良い南面にはウッドデッキと畑があり、野菜やお花を楽しみながらデッキでくつろいだり、内と外を繋いだホームパーティーを楽しんだりと、お好きにご活用いただけます!
-
物件コード
00347-200008
-
物件名
高土町2丁目
-
交通
駅:妙高はねうまライン 高田駅から徒歩29分、バス:高土町から徒歩8分
-
所在地
新潟県上越市高土町2丁目11-22
物件へのルート表示
-
物件種別
中古一戸建て
-
構造
木造
-
階建
地上1階建
-
建ぺい率/容積率
50%/80%
-
建物面積
62.89㎡
/19.02坪
-
土地面積
210.78㎡
/63.76坪
-
築年月
2017年10月(築8年)
-
入居時期
相談
-
用途地域
第1種低層住居専用地域
-
地目
宅地
-
都市計画
市街化区域
-
形状
間口 9.5m
-
道路
南5.3m 公道
-
私道
なし
-
その他の制限
景観法
物件詳細情報
-
所在階/階数
-
-
号室
-
-
販売価格
24,800,000円
-
方位
指定なし
-
間取り
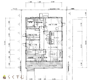
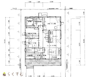
3LDK (洋室:3.2、3.2、5.3)
-
専有面積
-
-
バルコニー面積
-
-
その他面積
9.9㎡
/2.99坪
ウッドデッキ
-
駐車場
-
-
管理費
-
-
修繕積立金
-
-
現況
空家
-
仲介手数料
884,400円
-
利用制限
-
-
学校区
東本町小学校(975m)・城北中学校(654m)
-
設備
閑静な住宅街、全室フローリング、築10年以内、駐車2台可能、南向き、カウンターキッチン、IHクッキングヒーター、追いだき機能付き、オール電化、ウッドデッキ・テラス、上水道、下水道、シューズインクローゼット
-
取引態様
一般
-
情報登録日
2026/01/21
-
次回更新予定日
2026/06/13
-
取引条件有効期限
2026/02/28
備考
全ての機能がワンフロアに集まるつながりの空間は、リビングを中心に各お部屋・水回りへスムーズに移動でき、階段もないため怪我の原因も少なく、子育て世代の方やご高齢の方も安心して暮らせる造りとなっております。
取扱い会社
頸城自動車 株式会社