
春日山2丁目リフォーム済中古住宅 詳細
お気に入り
追加済み
物件画像を詳しく見る

大家族・二世帯同居の方には特におすすめです! ゆとりの6LDK!
物件概要
広々100坪超の敷地で明るい東南角地
-
物件コード
00333-200018
-
物件名
春日山2丁目リフォーム済中古住宅
-
交通
駅:妙高はねうまライン 春日山駅から徒歩17分、バス:春日山町三丁目南から徒歩3分
-
所在地
新潟県上越市春日山町2丁目13番9号
物件へのルート表示
-
物件種別
中古一戸建て
-
構造
木造
-
階建
地上2階建
-
建ぺい率/容積率
60%/200%
-
建物面積
201.62㎡
/60.99坪
-
土地面積
347.69㎡
/105.17坪
-
築年月
1988年1月(築38年)
-
入居時期
2026年4月
-
用途地域
第1種中高層住居専用地域
-
地目
宅地 (現状:宅地)
-
都市計画
市街化区域
-
形状
間口 19m
-
道路
公道 幅員約6m
-
私道
-
-
その他の制限
-
物件詳細情報
-
所在階/階数
-
-
号室
-
-
販売価格
26,540,000円
-
方位
南東
-
間取り
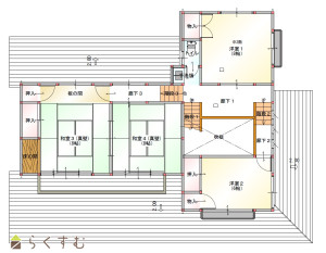
6LDK (和室:8畳、8畳、8畳、6畳) (洋室:8、6)、L10帖 DK10帖
-
専有面積
-
-
バルコニー面積
-
-
その他面積
-
-
駐車場
-
-
管理費
-
-
修繕積立金
-
-
現況
空家
-
仲介手数料
なし
-
利用制限
-
-
学校区
春日小学校(670m)・春日中学校(1,085m)
-
設備
角地、日当り良好、閑静な住宅街、LDK15帖以上、駐車3台以上可能、南向き、システムキッチン、バス1坪以上、温水洗浄便座、トイレ2か所以上、シャワー付き洗面台、都市ガス、全居室収納あり、シューズBOX、内装リフォーム済み、外装リフォーム済み、2世帯向き
-
取引態様
仲介
-
情報登録日
2026/02/27
-
次回更新予定日
2026/06/13
-
取引条件有効期限
2026/03/31
備考
取扱い会社
家'Sハセガワ 株式会社
-
TEL
0120-72-3878
-
所在地
新潟県妙高市十日市473
-
交通
-
営業時間
9:00~18:00/定休日:毎週火・水曜日・年末年始
-
免許番号
新潟県知事(1)第5649号
-
所属団体名
公社 新潟県宅地建物取引協会 上越支部
-
取引態様
仲介
Copyright (C) 株式会社 コモンライフ・コーポレーション. All Rights Reserved.
不動産検索サイト「らくすむ」及び関連サイトに記載の不動産情報は、会員規約に則り、情報提供会社様の責任のもとに発信されております。
不動産の賃借、購入に関しては賃借者、購入者ご自身が情報を確認され、会社企業様から説明を受けられたうえで判断をお願いいたします。
不動産検索サイト「らくすむ」及び関連サイトに記載の不動産情報、写真、デザイン、コンテンツなどの無断転載・転用・複製など禁止します。