
【東新町1丁目】 売アパート 詳細
お気に入り
追加済み
物件画像を詳しく見る

日当たり良好、各戸駐車縦列2台可能
物件概要
-
物件コード
00322-200070
-
物件名
【東新町1丁目】 売アパート
-
交通
駅:信越線 長岡駅から徒歩21分、バス:新町1丁目から徒歩5分
-
所在地
新潟県長岡市東新町1丁目510番75
物件へのルート表示
-
物件種別
投資物件・その他
-
物件区分
1棟売りマンション・アパート
-
構造
鉄骨
-
階建
地上3階建
-
建ぺい率/容積率
60%/200%
-
建物面積
351.15㎡
/106.22坪
-
土地面積
212.66㎡
/64.32坪
-
築年月
1978年12月(築47年)
-
入居時期
相談
-
用途地域
第1種住居地域
-
地目
宅地
-
都市計画
市街化区域
-
形状
-
-
道路
-
-
私道
-
-
その他の制限
第3種高度地区
物件詳細情報
-
所在階/階数
-
-
号室
-
-
販売価格
23,000,000円
-
表面利回り
(満室想定時)
13.1%
-
満室想定年収
3,024,000円
(想定月収:
252,000円
)
-
現行利回り
13.1%
-
現行年間年収
3,024,000円
-
住戸数
4
-
方位
-
-
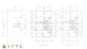
間取り
-
-
専有面積
50㎡
/15.12坪
~
60㎡
/18.15坪
-
バルコニー面積
-
-
その他面積
-
-
駐車場
-
-
管理費
-
-
修繕積立金
-
-
現況
賃貸中
-
仲介手数料
825,000円
-
利用制限
ペット:不可、楽器:不可
-
学校区
新町小学校(487m)・北中学校(1,579m)
-
設備
角地、公営水道、都市ガス、下水道
-
取引態様
一般
-
情報登録日
2026/03/26
-
次回更新予定日
2026/04/18
-
取引条件有効期限
2026/09/26
備考
取扱い会社
株式会社ミライ’s R Estate
Copyright (C) 株式会社 コモンライフ・コーポレーション. All Rights Reserved.
不動産検索サイト「らくすむ」及び関連サイトに記載の不動産情報は、会員規約に則り、情報提供会社様の責任のもとに発信されております。
不動産の賃借、購入に関しては賃借者、購入者ご自身が情報を確認され、会社企業様から説明を受けられたうえで判断をお願いいたします。
不動産検索サイト「らくすむ」及び関連サイトに記載の不動産情報、写真、デザイン、コンテンツなどの無断転載・転用・複製など禁止します。