
新保1丁目 新築戸建 詳細
お気に入り
追加済み
物件画像を詳しく見る

ゆとりある305.24㎡の広い敷地。駐車3台可。来客時にも安心です。
物件概要
1キロ圏内にはスーパー・ドラッグストア・コンビニ、小学校・中学校も近く、子育て世帯にも安心です。徒歩3分以内には郵便局と銀行も。玄関にはシューズインクロークがあり、靴や外遊び道具もしっかり収納。人感センサー付き玄関灯と防犯カメラで、防犯面にも配慮したつくりです。リビングには和室が隣接し、家族のくつろぎにぴったり。7.5帖の主寝室には8.51㎡のルーフバルコニーがつながり、ゆとりある時間を楽しめます。2階にもトイレ、全居室収納、2帖のテレワークルームなど、毎日の暮らしが快適になる工夫がつまった住まいです。
-
物件コード
00320-200223
-
物件名
新保1丁目 新築戸建
-
交通
駅:信越線 北長岡駅から徒歩15分、バス:新保1丁目から徒歩1分
-
所在地
新潟県長岡市新保1丁目8-35
物件へのルート表示
-
物件種別
新築一戸建て
-
構造
木造
-
階建
地上2階建
-
建ぺい率/容積率
60%/200%
-
建物面積
97.59㎡
/29.52坪
-
土地面積
305.24㎡
/92.33坪
-
築年月
2025年12月完成予定
-
入居時期
相談
-
用途地域
第1種中高層住居専用地域
-
地目
宅地
-
都市計画
市街化区域
-
形状
間口 26.2m × 奥行 12.06m
-
道路
前面道路幅員約8.5m
-
私道
-
-
その他の制限
第二種高度地区、建築基準法第22条第1項の規定により指定する区域、まちなか居住区域
物件詳細情報
-
所在階/階数
-
-
号室
-
-
販売価格
30,800,000円
-
方位
東
-
間取り
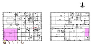
4LDK (和室:4.5畳) (洋室:7.5、6、5)、LDK16.2、2帖のテレワークルームあり
-
専有面積
-
-
バルコニー面積
-
-
その他面積
8.51㎡
/2.57坪
ルーフバルコニー
-
駐車場
-
-
管理費
-
-
修繕積立金
-
-
現況
更地
-
仲介手数料
1,082,400円
-
利用制限
-
-
学校区
富曾亀小学校(492m)・東北中学校(798m)
-
設備
整形地、前面道路6m以上、日当り良好、閑静な住宅街、スーパー近く、LDK15畳以上、駐車場3台以上、南向き、TVインターホン、複層ガラス、システムキッチン、カウンターキッチン、浴室暖房乾燥機、シャワー付き洗面台、ルーフバルコニー、都市ガス、上水道、下水道、全居室収納あり、シューズインクローゼット、シューズBOX
-
取引態様
仲介
-
情報登録日
2025/12/15
-
次回更新予定日
2026/01/02
-
取引条件有効期限
2026/10/31
備考
取扱い会社
有限会社 ブライトサクセス
-
TEL
0258-35-2220
-
所在地
新潟県長岡市新町1-1-2
-
交通
長岡駅
-
営業時間
月~金:午前8時00分~午後6時 土日:午前10時00分~午後6時 /定休日:オンラインサービス:午前9時30分~午後9時
-
免許番号
新潟県知事(1)第5629号
-
所属団体名
公社 新潟県宅地建物取引協会 新潟支部
-
取引態様
仲介
Copyright (C) 株式会社 コモンライフ・コーポレーション. All Rights Reserved.
不動産検索サイト「らくすむ」及び関連サイトに記載の不動産情報は、会員規約に則り、情報提供会社様の責任のもとに発信されております。
不動産の賃借、購入に関しては賃借者、購入者ご自身が情報を確認され、会社企業様から説明を受けられたうえで判断をお願いいたします。
不動産検索サイト「らくすむ」及び関連サイトに記載の不動産情報、写真、デザイン、コンテンツなどの無断転載・転用・複製など禁止します。