
長岡市新保1丁目Bright新築戸建 詳細
お気に入り
追加済み
物件画像を詳しく見る

【完成前なので好みのデザイン選べます!】住宅街が広がる閑静な街並み。徒歩15分圏内に原信・ドン・キホーテ・ニトリやジョーシンなどショッピング施設が充実♪長岡バイパス・東幹線86号線が近くマイカー通勤もスムーズ。
物件概要
南を空けた配置がしやすい、採光にこだわった家づくりが可能。富曽亀小学校・東北中学校まで徒歩10分圏内で通学も安心。
-
物件コード
00320-200133
-
物件名
長岡市新保1丁目Bright新築戸建
-
交通
駅:信越線 北長岡駅から徒歩17分、バス:新保1丁目から徒歩3分
-
所在地
新潟県長岡市新保1丁目6-3
物件へのルート表示
-
物件種別
新築一戸建て
-
構造
木造
-
階建
地上2階建
-
建ぺい率/容積率
60%/200%
-
建物面積
86.11㎡
/26.04坪
-
土地面積
138㎡
/41.74坪
-
築年月
2026年10月完成予定
-
入居時期
相談
-
用途地域
第1種中高層住居専用地域
-
地目
宅地
-
都市計画
市街化区域
-
形状
間口 9.1m
-
道路
前面道路幅員4.0m
-
私道
-
-
その他の制限
-
物件詳細情報
-
所在階/階数
-
-
号室
-
-
販売価格
23,300,000円
-
方位
南
-
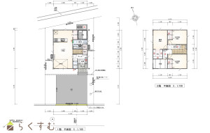
間取り
3LDK (洋室:6.0、5.0、5.0)、LDK16
-
専有面積
-
-
バルコニー面積
-
-
その他面積
-
-
駐車場
-
-
管理費
-
-
修繕積立金
-
-
現況
指定なし
-
仲介手数料
834,900円
-
利用制限
-
-
学校区
富曾亀小学校(501m)・東北中学校(760m)
-
設備
整形地、日当り良好、閑静な住宅街、スーパー近く、LDK15畳以上、全室フローリング、駐車場2台以上、南向き、TVインターホン、複層ガラス、システムキッチン、カウンターキッチン、IHクッキングヒーター、バス1坪以上、シャワー付き洗面台、オール電化、省エネ給湯、高気密高断熱住宅、上水道、下水道、ウォークインクローゼット、全居室収納あり
-
取引態様
一般
-
情報登録日
2025/12/15
-
次回更新予定日
2025/12/31
-
取引条件有効期限
2026/04/27
備考
取扱い会社
有限会社 ブライトサクセス
-
TEL
0258-35-2220
-
所在地
新潟県長岡市新町1-1-2
-
交通
長岡駅
-
営業時間
月~金:午前8時00分~午後6時 土日:午前10時00分~午後6時 /定休日:オンラインサービス:午前9時30分~午後9時
-
免許番号
新潟県知事(1)第5629号
-
所属団体名
公社 新潟県宅地建物取引協会 新潟支部
-
取引態様
一般
Copyright (C) 株式会社 コモンライフ・コーポレーション. All Rights Reserved.
不動産検索サイト「らくすむ」及び関連サイトに記載の不動産情報は、会員規約に則り、情報提供会社様の責任のもとに発信されております。
不動産の賃借、購入に関しては賃借者、購入者ご自身が情報を確認され、会社企業様から説明を受けられたうえで判断をお願いいたします。
不動産検索サイト「らくすむ」及び関連サイトに記載の不動産情報、写真、デザイン、コンテンツなどの無断転載・転用・複製など禁止します。