
上越市藤巻 貸事務所 詳細
お気に入り
追加済み
物件画像を詳しく見る

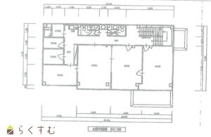
◆上越市藤巻◆144.18㎡のゆとりのある広さの事務所
物件概要
-
賃料
19.8万円/月
-
管理費
なし
-
敷/礼
2ヶ月/
なし
-
間取り
-
-
広さ
144.18㎡
/43.61坪
-
階建
地上3階建
-
築年数
1999年3月(築26年)
-
種別
事務所
-
住所
新潟県上越市藤巻9-5
物件へのルート表示
-
交通
駅:妙高はねうまライン 春日山駅から徒歩22分、バス:藤巻から徒歩3分
男女別トイレ2カ所・給湯室完備、プロパンガス対応。駐車スペース5台分あり◎ 2階ご契約で3階も利用可能! 元デイサービス・介護系事務所として使用されていたため、福祉・医療系にもおすすめ。 隣接する約12坪の倉庫もご希望により貸出可能。 現在1階はパソコン教室として利用中。 多目的に活用できる好立地物件です!
-
物件コード
00297-100044
-
物件名
上越市藤巻 貸事務所
-
交通
駅:妙高はねうまライン 春日山駅から徒歩22分、バス:藤巻から徒歩3分
-
所在地
新潟県上越市藤巻9-5
物件へのルート表示
-
物件種別
事務所
-
総戸数
-
-
構造
鉄骨
-
階建
地上3階建
-
所在階/階数
2階/3階
-
号室
-
-
専有面積
144.18㎡
/43.61坪
-
方位
-
-
間取り
-
-
賃料
19.8万円/月
-
管理費
-
-
礼金
-
-
敷金
2ヶ月
-
共益費
-
-
ほか初期費用
-
-
その他諸費用
-
-
更新料
-
-
火災(家財)保険
-
-
駐車場
5台分程度
-
町内費
-
-
バイク料金
-
-
鍵交換費
-
-
清掃料
-
-
更新事務手数料
-
-
保証区分
連帯保証人のみ
-
保証会社
区分:指定なし
-
-
連帯保証人
[区分]
要
-
-
仲介手数料
-
-
手数料負担割合
貸主:-%
借主:-%
-
手数料配分割合
元付:-%
客付:-%
-
築年月
1999年3月(築26年)
-
利用制限
法人:可、事務所利用:可
-
学校区
高志小学校(712m)・春日中学校(1,927m)
-
設備
2階以上、男女トイレ別、給湯
-
入居時期
相談
-
取引態様
仲介
-
情報登録日
2025/12/12
-
次回更新予定日
2026/01/02
備考
取扱い会社
田中不動産株式会社
Copyright (C) 株式会社 コモンライフ・コーポレーション. All Rights Reserved.
不動産検索サイト「らくすむ」及び関連サイトに記載の不動産情報は、会員規約に則り、情報提供会社様の責任のもとに発信されております。
不動産の賃借、購入に関しては賃借者、購入者ご自身が情報を確認され、会社企業様から説明を受けられたうえで判断をお願いいたします。
不動産検索サイト「らくすむ」及び関連サイトに記載の不動産情報、写真、デザイン、コンテンツなどの無断転載・転用・複製など禁止します。