
渋江町売家 詳細
お気に入り
追加済み
物件画像を詳しく見る
物件概要
-
物件コード
00259-200066
-
物件名
渋江町売家
-
交通
駅:妙高はねうまライン 新井駅から徒歩22分、バス:文化ホール入口から徒歩7分
-
所在地
新潟県妙高市渋江町7-10
物件へのルート表示
-
物件種別
中古一戸建て
-
構造
木造
-
階建
地上2階建
-
建ぺい率/容積率
40%/80%
-
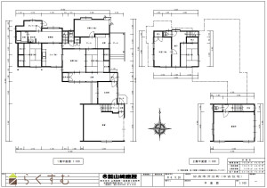
建物面積
227.99㎡
/68.96坪
-
土地面積
446㎡
/134.91坪
-
築年月
1982年11月(築43年)
-
入居時期
R7年5月以降の引渡しになります
-
用途地域
第1種低層住居専用地域
-
地目
宅地 (現状:宅地)
-
都市計画
非線引き都市計画区域
-
形状
-
-
道路
東側
-
私道
-
-
その他の制限
-
物件詳細情報
-
所在階/階数
-
-
号室
-
-
販売価格
7,000,000円
-
方位
東
-
間取り
7DK (和室:6畳、6畳、6畳) (洋室:7.6、8、8.4、17)、DK7
-
専有面積
-
-
バルコニー面積
-
-
その他面積
-
-
駐車場
-
-
管理費
-
-
修繕積立金
-
-
現況
賃貸中
-
仲介手数料
なし
-
利用制限
-
-
学校区
新井小学校(748m)・新井中学校(594m)
-
設備
日当り良好、閑静な住宅街
-
取引態様
売主
-
情報登録日
2026/03/26
-
次回更新予定日
2026/06/12
-
取引条件有効期限
2026/06/26
備考
取扱い会社
株式会社山崎建設
-
TEL
0255-72-3129
-
所在地
新潟県妙高市東陽町2-20
-
交通
えちごトキめき鉄道 新井駅から徒歩25分
-
営業時間
8:00〜17:00/定休日:土日祝日
-
免許番号
新潟県知事(8)第3467号
-
所属団体名
公益社団法人新潟県宅地建物取引協会 上越支部
-
取引態様
売主
Copyright (C) 株式会社 コモンライフ・コーポレーション. All Rights Reserved.
不動産検索サイト「らくすむ」及び関連サイトに記載の不動産情報は、会員規約に則り、情報提供会社様の責任のもとに発信されております。
不動産の賃借、購入に関しては賃借者、購入者ご自身が情報を確認され、会社企業様から説明を受けられたうえで判断をお願いいたします。
不動産検索サイト「らくすむ」及び関連サイトに記載の不動産情報、写真、デザイン、コンテンツなどの無断転載・転用・複製など禁止します。