
寺町3丁目 中古戸建 詳細
お気に入り
追加済み
物件画像を詳しく見る

高田駅より徒歩4分! 5DKの戸建です! 土地は借地。
物件概要
浴室及び玄関・居間6帖もリフォーム済み。
-
物件コード
00250-200076
-
物件名
寺町3丁目 中古戸建
-
交通
駅:妙高はねうまライン 高田駅から徒歩4分、バス:高田駅前から徒歩4分
-
所在地
新潟県上越市寺町3丁目6-38
物件へのルート表示
-
物件種別
中古一戸建て
-
構造
木造
-
階建
地上2階建
-
建ぺい率/容積率
60%/200%
-
建物面積
120.65㎡
/36.49坪
-
土地面積
344.34㎡
/104.16坪
-
築年月
1930年4月(築95年)
-
入居時期
随時入居(引き渡し)可
-
用途地域
第1種中高層住居専用地域
-
地目
宅地 (現状:宅地)
-
都市計画
市街化区域
-
形状
間口 16.6m × 奥行 20.7m
-
道路
上越市道 幅員7.5m(歩道2.1m含む) 消雪パイプ有り
-
私道
-
-
その他の制限
準防火地域
物件詳細情報
-
所在階/階数
-
-
号室
-
-
販売価格
1,000,000円
-
方位
東
-
間取り
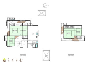
5DK (和室:8畳、6畳、6畳、8畳、4.5畳)、DK12帖、物置2棟有(未登記)
-
専有面積
-
-
バルコニー面積
-
-
その他面積
-
-
駐車場
-
-
管理費
-
-
修繕積立金
-
-
現況
空家
-
仲介手数料
330,000円
-
建物の固定資産税(年間)
4,621円
-
利用制限
-
-
学校区
大町小学校(637m)・城北中学校(1,135m)
-
設備
日当り良好、駐車2台可能、南向き、ガスコンロ設置可能、追いだき機能付き、エアコンあり、都市ガス、上水道、床下収納、内装リフォーム済み
-
取引態様
専任
-
情報登録日
2025/12/08
-
次回更新予定日
2025/12/22
-
取引条件有効期限
2026/03/09
備考
・土地は旧法借地権(期間:30年) 地代(月額)17,360円。
・トイレは簡易水洗(年4回汲取り 費用約計40,000円/年)。
・玄関前に消雪用ポンプ有り。
取扱い会社
越乃エステート株式会社
Copyright (C) 株式会社 コモンライフ・コーポレーション. All Rights Reserved.
不動産検索サイト「らくすむ」及び関連サイトに記載の不動産情報は、会員規約に則り、情報提供会社様の責任のもとに発信されております。
不動産の賃借、購入に関しては賃借者、購入者ご自身が情報を確認され、会社企業様から説明を受けられたうえで判断をお願いいたします。
不動産検索サイト「らくすむ」及び関連サイトに記載の不動産情報、写真、デザイン、コンテンツなどの無断転載・転用・複製など禁止します。