物件画像を詳しく見る

由緒ある旧邸も建ち並ぶ、青田川沿いのリフォーム戸建です! 鉄骨造! 日当たりも良好!
物件概要
近隣には保育園・幼稚園・小学校が徒歩圏! ・高田駅へも徒歩11分
-
物件コード
00250-200073
-
物件名
上越市西城町3丁目 戸建
-
交通
駅:妙高はねうまライン 高田駅から徒歩11分、バス:西城町十字路から徒歩4分
-
所在地
新潟県上越市西城町3丁目11-17
物件へのルート表示
-
物件種別
中古一戸建て
-
構造
鉄骨
-
階建
地上3階建
-
建ぺい率/容積率
50%/80%
-
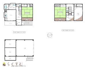
建物面積
154.81㎡
/46.83坪
-
土地面積
165㎡
/49.91坪
-
築年月
1980年10月(築45年)
-
入居時期
随時入居(引き渡し)可
-
用途地域
第1種低層住居専用地域
-
地目
宅地 (現状:宅地)
-
都市計画
市街化区域
-
形状
間口 9.2m × 奥行 18m
-
道路
上越市道 幅員6.4m 除雪道路
-
私道
-
-
その他の制限
準防火地域
物件詳細情報
-
所在階/階数
-
-
号室
-
-
販売価格
12,800,000円
-
方位
南
-
間取り
3DK (和室:8畳、8畳) (洋室:7.5)、DK8、2FにDEN(小部屋3帖)有り。
-
専有面積
-
-
バルコニー面積
-
-
その他面積
-
-
駐車場
-
-
管理費
-
-
修繕積立金
-
-
現況
空家
-
仲介手数料
なし
-
固定資産税
64,118円
-
利用制限
-
-
学校区
大町小学校(260m)
-
設備
日当り良好、閑静な住宅街、スーパー近く、新築時図面あり、建物確認・完了検査済証あり、駐車3台以上可能、南向き、TVインターホン、システムキッチン、3口コンロ、追いだき機能付き、バス1坪以上、温水洗浄便座、トイレ2か所以上、シャワー付き洗面台、エアコンあり、都市ガス、上水道、下水道、内装リフォーム済み
-
取引態様
売主
-
情報登録日
2025/12/12
-
次回更新予定日
2026/01/01
-
取引条件有効期限
2026/03/12
備考
・住宅の2階からは妙高山や南葉山も眺望できます。・駐車は車庫2台分(高さ1.6m)及び車庫前に1台分。 ・リフォーム内容「・キッチン新設・トイレ2カ所交換・洗面台新設・内装(床壁天井の一部張替)・照明器具一部新設・TVモニター付きインターホン新設・エアコン1台新設・畳表替え・車庫内結露防止塗装・屋根笠木板金工事」。 消雪用井戸ポンプ有(車庫前&通路用)。
取扱い会社
越乃エステート株式会社