売買長岡市上除町A 新築戸建住宅 詳細
お気に入り


外観イメージ アルミカーポート付! ※植栽はイメージです。

全体 間取り図

【★完成前ご契約特典】 家具セット&カーテン プレゼント!

内観イメージ(LDK) ※家具・小物などはイメージです。

外観イメージ(南東側)

建物配置図

内観イメージ(リビング)①

内観イメージ(リビング)②

内観イメージ(窓際ベンチ)

内観イメージ(ダイニング・キッチン)

内観イメージ(キッチン側から見るLDK)

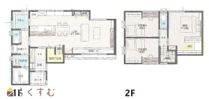
1階 間取り図

2階 間取り図

【省令準耐火構造の住まい】耐火性能が高く、火災に強い仕様

【長期保証】 構造・雨漏り 初期保証20年・最長60年保証

【安心の長期保証】 設備保証10年 ※修理対象設備のみ

■地盤改良済み。地盤保証20年で万が一の事故の時も安心

■不同沈下が起きにくい面で支える頑強構造【ベタ基礎】

■災害時の拠点となる消防署・警察署と同レベルの耐震等級3

■第三者機関 JIOの瑕疵担保保険加入済み

地図画像

物件画像を詳しく見る
《★完成前ご契約特典》 家具セット&カーテンをプレゼントいたします♪
物件概要
人気の日越小学校エリア。原信・ウエルシアまで徒歩5分以内!五荘山公園まで徒歩1分。長岡高速インター近く、通勤・レジャーの移動が便利♪
  • 物件コード 00243-200017
  • 物件名 長岡市上除町A 新築戸建住宅
  • 交通 駅:JR信越本線「長岡」、バス:越後交通「上の原」から徒歩5分
  • 所在地 新潟県長岡市上除町西原甲1945番5 物件へのルート表示
  • 物件種別 新築一戸建て
  • 構造 木造
  • 階建 地上2階建
  • 建ぺい率/容積率 60%/200%
  • 建物面積 100.2㎡ /30.31坪
  • 土地面積 180.46㎡ /54.58坪
  • 築年月 2025年9月(築3ヶ月)
  • 入居時期 2025年10月 予定
  • 用途地域 第1種中高層住居専用地域
  • 地目
  • 都市計画 市街化区域
  • 形状 -
  • 道路 南6.0m 接面12.1m
  • 私道 -
  • その他の制限 -
物件詳細情報
  • 所在階/階数 -
  • 号室 -
  • 販売価格 32,160,000円
  • 方位
  • 間取り 3LDK (洋室:7.2、6.0、6.0)、LDK 21.5、■土地+建物+外構 セットの価格です。
  • 専有面積 -
  • バルコニー面積 -
  • その他面積 -
  • 駐車場 -
  • 管理費 -
  • 修繕積立金 -
  • 現況 指定なし
  • 仲介手数料 なし
  • 利用制限 -
  • 学校区 日越小学校(1,900m)・西中学校(3,400m)
  • 設備 前面道路6m以上、日当り良好、閑静な住宅街、スーパー近く、設計住宅性能評価付き、耐震構造、瑕疵担保保険付き、LDK15畳以上、全室フローリング、駐車場3台以上、TVインターホン、複層ガラス、ディンプルキー、システムキッチン、IHクッキングヒーター、食器洗浄乾燥機、追いだき機能付き、浴室暖房乾燥機、バス1坪以上、温水洗浄便座、シャワー付き洗面台、エアコン、24時間換気システム、オール電化、省エネ給湯、高気密高断熱住宅、都市ガス、上水道、下水道、電気、ウォークインクローゼット、床下収納、照明器具付き
  • 取引態様 売主
  • 情報登録日 2025/05/07
  • 次回更新予定日 2025/12/28
  • 取引条件有効期限 2025/12/31
備考
【周辺環境】
・暮らしやすい生活環境が整った閑静な住宅地です!
・前面道路は消雪パイプ完備で冬場も安心
・原信・ウエルシアまで徒歩5分以内!五荘山公園まで徒歩1分。
・長岡高速インター近く、通勤・レジャーの移動が便利♪
・全14区画の新しい分譲地でキレイ

【建物】
・広々21.5帖のLDK。窓際ベンチのある開放感あふれるリビング空間
・シューズクローク、パントリー、ウォークインクローゼットなど収納も豊富
・天井付け物干しスペース付のサンルームは、雨や雪の日でもお好きなタイミングで洗濯物が干せます。
・一直線にまとめた水回りで移動距離を短くラクに!快適な回遊型動線で家事の負担を減らします。
取扱い会社
株式会社 ステーツ
Copyright (C) 株式会社 コモンライフ・コーポレーション. All Rights Reserved.
不動産検索サイト「らくすむ」及び関連サイトに記載の不動産情報は、会員規約に則り、情報提供会社様の責任のもとに発信されております。
不動産の賃借、購入に関しては賃借者、購入者ご自身が情報を確認され、会社企業様から説明を受けられたうえで判断をお願いいたします。
不動産検索サイト「らくすむ」及び関連サイトに記載の不動産情報、写真、デザイン、コンテンツなどの無断転載・転用・複製など禁止します。