売買( 新築住宅)長岡市中島 詳細
お気に入り


洗練されたスクエアフォルムが魅力です。駐車は3台可能。

収納充実でスッキリ暮らせる間取り!物干し機付きで家事動線も◎

(参考写真) 吹抜けからは採光がたっぷり差し込みます♪

(参考写真) お掃除楽々なIHコンロ

(参考写真) タッチレス水栓

(参考写真) 三面鏡の裏やキャビネットにはたっぷり収納♪

(参考写真)  足を伸ばせる一坪風呂

(参考写真) 温水洗浄機能付きのトイレは各階に完備

(参考写真) ホスクリーン完備

(参考写真) 2階ホールにはエアコン付き

(参考写真) 大容量の下駄箱収納

高性能グラスウォール×発泡スチロールの「二重断熱」を採用

床下断熱を徹底的に!床暖房が無くても年中暖かく快適♪

高性能な天井断熱材で魔法瓶のようにポカポカに

サッシには内樹脂製の複層ガラスを採用し、省エネ効果を向上

パナソニック製の24時間熱交換換気扇を標準装備

物件画像を詳しく見る
【ウオロク長岡店・大手大橋近く】オール電化×高気密高断熱住宅 ■前面道路に消雪パイプ有 ■駐車3台可能 ■熱交換換気扇&二重断熱で快適な住まい ■寒冷地用エアコン2台付
物件概要
ウオロク長岡店や大手大橋が近く、暮らしやすい立地に収納豊富な3LDK住宅が登場!各階に寒冷地仕様エアコンを完備し、冬も快適に過ごせます♪周辺環境とあわせて、ぜひ現地をご確認ください(^^♪
  • 物件コード 00239-200603
  • 物件名 ( 新築住宅)長岡市中島
  • 交通 駅:上越新幹線 長岡駅から徒歩14分、バス:中島2丁目から徒歩3分
  • 所在地 新潟県長岡市中島3丁目4-4付近 物件へのルート表示
  • 物件種別 新築一戸建て
  • 構造 木造
  • 階建 地上2階建
  • 建ぺい率/容積率 60%/200%
  • 建物面積 87.35㎡ /26.42坪
  • 土地面積 133.6㎡ /40.41坪
  • 築年月 2026年4月完成予定
  • 入居時期 相談
  • 用途地域 第1種住居地域
  • 地目 宅地
  • 都市計画 市街化区域
  • 形状 -
  • 道路 南側3.8m公道
  • 私道 -
  • その他の制限 法22条
物件詳細情報
  • 所在階/階数 -
  • 号室 -
  • 販売価格 29,800,000円
  • 方位 南東
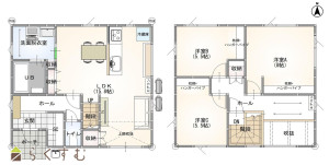
  • 間取り 3LDK (洋室:8、5.5、5.5)、LDK15.8
  • 専有面積 -
  • バルコニー面積 -
  • その他面積 -
  • 駐車場 -
  • 管理費 -
  • 修繕積立金 -
  • 現況 空家
  • 仲介手数料 1,049,400円
  • 利用制限 -
  • 学校区 中島小学校(300m)・東中学校(1,100m)
  • 設備 整形地、日当り良好、閑静な住宅街、スーパー近く、LDK15畳以上、全室フローリング、天井高2.5m以上、駐車場3台以上、南向き、TVインターホン、複層ガラス、システムキッチン、カウンターキッチン、IHクッキングヒーター、3口コンロ、追いだき機能付き、バス1坪以上、温水洗浄便座、シャワー付き洗面台、エアコン、24時間換気システム、オール電化、省エネ給湯、高気密高断熱住宅、上水道、下水道、電気、全居室収納あり、シューズインクローゼット、シューズBOX、照明器具付き、バリアフリー
  • 取引態様 一般
  • 情報登録日 2025/10/22
  • 次回更新予定日 2025/12/30
  • 取引条件有効期限 2027/12/31
備考
【教育】
中島小学校 約300m 徒歩約4分
東中学校 約1100m 徒歩約14分

【交通】
JR上越新幹線 長岡駅 徒歩約14分
越後交通バス 中島2丁目 徒歩約3分

-物件情報-
■空気環境を整える24時間熱交換換気扇を搭載
■お部屋の温度を逃がさない北海道仕様の二重断熱
■シューズクローク・リビング収納・ホール収納でお部屋がスッキリ片付きます
■開放的で明るい吹き抜けのあるLDK
■2階ホールにはホスクリーン付き!天候に左右されずお洗濯可能
■中島小学校まで徒歩4分、お子様の登下校も安心の距離
取扱い会社
新潟土地建物販売センター 株式会社
  • TEL 0258-89-8245
  • 所在地 新潟県長岡市台町1-7-331階
  • 交通 長岡駅
  • 営業時間 9:00~18:00/定休日:なし
  • 免許番号 新潟県知事(3)第5151号
  • 所属団体名 公社 新潟県宅地建物取引協会 新潟支部
  • 取引態様 一般
Copyright (C) 株式会社 コモンライフ・コーポレーション. All Rights Reserved.
不動産検索サイト「らくすむ」及び関連サイトに記載の不動産情報は、会員規約に則り、情報提供会社様の責任のもとに発信されております。
不動産の賃借、購入に関しては賃借者、購入者ご自身が情報を確認され、会社企業様から説明を受けられたうえで判断をお願いいたします。
不動産検索サイト「らくすむ」及び関連サイトに記載の不動産情報、写真、デザイン、コンテンツなどの無断転載・転用・複製など禁止します。