売買長岡市豊 戸建 詳細
お気に入り


美しい庭木と門構えが和の風情を感じさせる落ち着いた住まい。

全室ゆとりある広さがあり、和室が4部屋ある落ち着いた住まい。

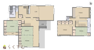
広々としたLDKは、家族団らんなどゆとりをもって過ごせる空間

カーテンで空間を区切れ、用途に応じた柔軟な使い方が可能です。

収納スペースが豊富なキッチン!

コーナー洗面台で空間を広くお使いいただけます。

窓があるので換気もでき、湿気対策にも◎

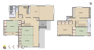
各階トイレがあるので安心ですね。

1階和室8帖 隣接する6帖和室と続き間で、より広々♪

1階和室6帖 仏間がある落ち着いた和室です。

1階和室8帖 広縁がついた明るく開放的な和室。

2階洋室 ベッドなどの大きな家具を置いても広々としております

大きな窓が印象的な2階洋室は、開放感と採光に優れた快適空間

2階和室6帖 押入・収納スペースが付き。

サンルーム付きで、天候や時間を気にせずに洗濯物が干せます。

開放感ある2階ホールから、吹抜けを通して玄関へ光が届きます。

格子戸や木の風合いが美しい、落ち着きある和の玄関。

石畳と植栽が織りなす、四季を感じる和風庭園。

駐車1台可能な車庫付き

東側6.1m市道、北側6m市道 どちらも消雪パイプ完備

物件画像を詳しく見る
【幼稚園・学校・商業施設・バイパスが徒歩圏、本格的な和風庭園付き邸宅】 ■北東角地×前面道路6m、消雪パイプ有 ■敷地面積約102坪 ■敷地内には風情ある和風庭園
物件概要
幼稚園・小中学校・商業施設・長岡バイパスまでもがすべて徒歩圏内に揃った好立地!庭には美しく剪定された松や緑豊かな植栽が配置され、四季折々の風情を楽しむことができます。お気軽にお問い合わせください♪
  • 物件コード 00239-200580
  • 物件名 長岡市豊 戸建
  • 交通 駅:信越線 北長岡駅から徒歩22分、バス:豊町から徒歩4分
  • 所在地 新潟県長岡市豊1丁目7-12 物件へのルート表示
  • 物件種別 中古一戸建て
  • 構造 木造
  • 階建 地上2階建
  • 建ぺい率/容積率 70%/200%
  • 建物面積 203.33㎡ /61.5坪
  • 土地面積 338㎡ /102.24坪
  • 築年月 1983年7月(築42年)
  • 入居時期 随時入居(引き渡し)可
  • 用途地域 第1種中高層住居専用地域
  • 地目 宅地
  • 都市計画 市街化区域
  • 形状 間口 16m × 奥行 22m
  • 道路 東側6.1m市道、北側6.0m市道
  • 私道 -
  • その他の制限 第二種高度地区/日影制限/法22条/まちなか居住区域/斜線制限(道路・隣地・北側)
物件詳細情報
  • 所在階/階数 -
  • 号室 -
  • 販売価格 21,000,000円
  • 方位 南東
  • 間取り 6LDK
  • 専有面積 -
  • バルコニー面積 -
  • その他面積 -
  • 駐車場 -
  • 管理費 -
  • 修繕積立金 -
  • 現況 空家
  • 仲介手数料 759,000円
  • 利用制限 -
  • 学校区 川崎東小学校(350m)・東北中学校(450m)
  • 設備 角地、日当り良好、閑静な住宅街、スーパー近く、駐車場融雪設備あり、2口コンロ、ガスコンロ設置済み、追いだき機能付き、温水洗浄便座、トイレ2か所以上、エアコンあり、ウッドデッキ・テラス、都市ガス、上水道、下水道、床下収納、シューズBOX、即引き渡し可能
  • 取引態様 一般
  • 情報登録日 2025/09/04
  • 次回更新予定日 2026/05/31
  • 取引条件有効期限 2026/12/31
備考
【教育機関】
川崎東小学校 約350m 徒歩約5分
東北中学校 約450m 徒歩約6分

【交通機関】
JR信越本線 北長岡駅 徒歩約22分
越後交通バス 豊町 徒歩約4分

【お引渡し条件】
※売主契約不適合責任免責
※現況有姿引渡し

【備考】
※間口と奥行は手測量に基づく寸法の為、実際の寸法と異なる可能性があります
※残置物は売主負担で撤去
※消雪組合加入必要:24,000円/年
※シロアリ駆除工事:2022年1月11日実施済(5年間の保証有)

-物件情報-
■敷地広々約102坪・建物約61坪、6LDKのゆとりある住まい
■エアコン付きで初期費用の軽減
■天候を気にせず洗濯物が干せるサンルーム付き
取扱い会社
新潟土地建物販売センター 株式会社
  • TEL 0258-89-8245
  • 所在地 新潟県長岡市台町1-7-331階
  • 交通 長岡駅
  • 営業時間 9:00~18:00/定休日:なし
  • 免許番号 新潟県知事(3)第5151号
  • 所属団体名 公社 新潟県宅地建物取引協会 新潟支部
  • 取引態様 一般
Copyright (C) 株式会社 コモンライフ・コーポレーション. All Rights Reserved.
不動産検索サイト「らくすむ」及び関連サイトに記載の不動産情報は、会員規約に則り、情報提供会社様の責任のもとに発信されております。
不動産の賃借、購入に関しては賃借者、購入者ご自身が情報を確認され、会社企業様から説明を受けられたうえで判断をお願いいたします。
不動産検索サイト「らくすむ」及び関連サイトに記載の不動産情報、写真、デザイン、コンテンツなどの無断転載・転用・複製など禁止します。