
長岡市南町1丁目1-2-30 TNビル2F 詳細
お気に入り
追加済み
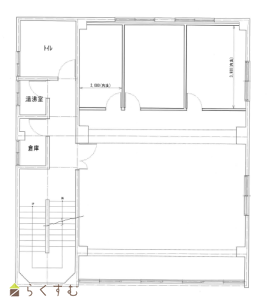
物件画像を詳しく見る

広くて駐車場2台あり 駅まで徒歩15分
物件概要
-
物件コード
00234-100008
-
物件名
長岡市南町1丁目1-2-30 TNビル2F
-
交通
駅:上越新幹線 長岡駅から徒歩13分、バス:柏町から徒歩9分
-
所在地
新潟県長岡市南町1丁目2-30TNビル2F
物件へのルート表示
-
物件種別
事務所
-
総戸数
3戸
-
構造
鉄骨鉄筋コン
-
階建
地上4階建
-
所在階/階数
2階/4階
-
号室
-
-
専有面積
118.08㎡
/35.71坪
-
方位
-
-
間取り
-
-
賃料
14.3万円/月
-
管理費
-
-
礼金
-
-
敷金
2ヶ月
-
共益費
-
-
ほか初期費用
-
-
その他諸費用
-
-
更新料
-
-
火災(家財)保険
41,000円
-
駐車場
-
-
町内費
年12,000円
-
バイク料金
-
-
鍵交換費
-
-
清掃料
-
-
更新事務手数料
-
-
保証区分
連帯保証人のみ
-
保証会社
区分:指定なし
-
-
連帯保証人
[区分]
要
-
-
仲介手数料
143,000円
-
手数料負担割合
貸主:0%
借主:100%
-
手数料配分割合
元付:50%
客付:50%
-
築年月
不詳
-
利用制限
法人:可、ペット:不可、楽器:不可、事務所利用:可、ルームシェア:不可
-
学校区
千手小学校(525m)・南中学校(130m)
-
設備
2階以上、融雪設備あり、エアコン、給湯、駐車場あり
-
入居時期
令和8年7月以降
-
取引態様
仲介
-
情報登録日
2026/04/10
-
次回更新予定日
2026/05/15
備考
取扱い会社
有限会社 太平住宅長岡
-
TEL
0258-36-7160
-
所在地
新潟県長岡市南町1-2-30
-
交通
長岡駅
-
営業時間
9:00~17:00/定休日:土日祝日(事前予約で定休日でもご案内可)
-
免許番号
新潟県知事(5)第4585号
-
所属団体名
公社 新潟県宅地建物取引協会 長岡支部
-
取引態様
仲介
Copyright (C) 株式会社 コモンライフ・コーポレーション. All Rights Reserved.
不動産検索サイト「らくすむ」及び関連サイトに記載の不動産情報は、会員規約に則り、情報提供会社様の責任のもとに発信されております。
不動産の賃借、購入に関しては賃借者、購入者ご自身が情報を確認され、会社企業様から説明を受けられたうえで判断をお願いいたします。
不動産検索サイト「らくすむ」及び関連サイトに記載の不動産情報、写真、デザイン、コンテンツなどの無断転載・転用・複製など禁止します。