賃貸山吉ビル1階 詳細
お気に入り


外観

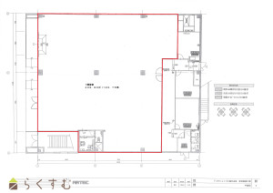
区画予定図

室内①

室内②

室内③

専有トイレ

専有トイレ

共用トイレ

共用トイレ

休憩室(共用部)

更衣室(共用部)

地図画像

物件画像を詳しく見る
幹線道路(上越大通り)沿い、周辺には多くの商業施設や事業所が立ち並んでいます。
物件概要
賃料には共益費・駐車料(19台分)が含まれています。使用面積にご希望ありましたらご相談ください。
  • 物件コード 00209-100141
  • 物件名 山吉ビル1階
  • 交通 駅:妙高はねうまライン 春日山駅から徒歩25分
  • 所在地 新潟県上越市藤巻8-59山吉ビル1階 物件へのルート表示
  • 物件種別 店舗
  • 総戸数 -
  • 構造 鉄骨
  • 階建 地上2階建
  • 所在階/階数 1階/2階
  • 号室 -
  • 専有面積 405.8㎡ /122.75坪
  • 方位 -
  • 間取り -
  • 賃料 68.2万円/月 共益費、駐車料(19台分)込み
  • 管理費 -
  • 礼金 -
  • 敷金 4ヶ月
  • 共益費 -
  • ほか初期費用 -
  • その他諸費用 -
  • 更新料 -
  • 火災(家財)保険 -
  • 駐車場 -
  • 町内費 実費負担
  • バイク料金 -
  • 鍵交換費 -
  • 清掃料 -
  • 更新事務手数料 -
  • 保証区分 保証会社のみ
  • 保証会社 区分:加入要
    保証会社名:その他 (CIZ)
    -
  • 家賃保証金 613,800円
    別途事務手数料
  • 連帯保証人 [区分]  不要 -
  • 仲介手数料 423,500円
  • 手数料負担割合 貸主:-%   借主:-%
  • 手数料配分割合 元付:-%   客付:-%  
  • 築年月 1988年6月(築37年)
  • 利用制限 -
  • 学校区 高志小学校(805m)・春日中学校(1,988m)
  • 設備 1階、融雪設備あり、エアコン、男女トイレ別、駐車場あり
  • 入居時期 相談
  • 取引態様 仲介
  • 情報登録日 2025/05/02
  • 次回更新予定日 2025/12/29
備考
共用部(休憩室、更衣室、会議室)の使用は要相談
間仕切壁設置工事後の引渡し(業種により要相談)
冬期間除雪費の負担あり
物件敷地内に別途駐車場あり(応相談)
取扱い会社
株式会社マルケー不動産
  • TEL 025-544-2724
  • 所在地 新潟県上越市西本町2-3-21
  • 交通 直江津駅
  • 営業時間 8:30~17:00/定休日:第2.4土・日・祝
  • 免許番号 新潟県知事(10)第2765号
  • 所属団体名 公社新潟県宅地建物取引協会 上越支部
  • 取引態様 仲介
Copyright (C) 株式会社 コモンライフ・コーポレーション. All Rights Reserved.
不動産検索サイト「らくすむ」及び関連サイトに記載の不動産情報は、会員規約に則り、情報提供会社様の責任のもとに発信されております。
不動産の賃借、購入に関しては賃借者、購入者ご自身が情報を確認され、会社企業様から説明を受けられたうえで判断をお願いいたします。
不動産検索サイト「らくすむ」及び関連サイトに記載の不動産情報、写真、デザイン、コンテンツなどの無断転載・転用・複製など禁止します。