
new【商談中】ヤマダオフィス Ⅱ 詳細
B号室
お気に入り
追加済み
物件画像を詳しく見る

山麓線近く交通のアクセス良好ーーー!事務所、サロンなどにいかがでしょうか♪♪
物件概要
-
賃料
11万円/月
-
管理費
2,200円/月
-
敷/礼
なし/
11万円
-
間取り
-
-
広さ
52.99㎡
/16.02坪
-
階建
地上1階建
-
築年数
2019年1月(築6年)
-
種別
事務所
-
住所
新潟県上越市春日野1丁目4番38号
物件へのルート表示
-
交通
駅:妙高はねうまライン 春日山駅から徒歩12分、バス:春日山町三丁目北から徒歩3分
テナントのご主人様☆☆募集中ーーー☆☆
-
物件コード
00200-100120
-
物件名
new【商談中】ヤマダオフィス Ⅱ
-
交通
駅:妙高はねうまライン 春日山駅から徒歩12分、バス:春日山町三丁目北から徒歩3分
-
所在地
新潟県上越市春日野1丁目4番38号
物件へのルート表示
-
物件種別
事務所
-
総戸数
-
-
構造
木造
-
階建
地上1階建
-
所在階/階数
1階/1階
-
号室
B号室
-
専有面積
52.99㎡
/16.02坪
-
方位
-
-
間取り
-
-
賃料
11万円/月
(課税表記)
-
管理費
2,200円/月
(課税表記)
-
礼金
11万円
(課税表記)
-
敷金
-
-
共益費
-
-
ほか初期費用
-
-
その他諸費用
-
-
更新料
-
-
火災(家財)保険
21,300円
(2年)
-
駐車場
-
-
町内費
-
-
バイク料金
-
-
鍵交換費
-
-
清掃料
-
-
更新事務手数料
-
-
保証区分
保証会社+緊急連絡先
-
保証会社
区分:加入要
保証会社名:CIZ
保証料:月額合計賃料の77%、更新料不要。
-
家賃保証金
86,394円
-
連帯保証人
[区分]
不要
-
-
仲介手数料
110,000円
-
手数料負担割合
貸主:-%
借主:100%
-
手数料配分割合
元付:50%
客付:50%
-
築年月
2019年1月(築6年)
-
利用制限
法人:可、ペット:不可、楽器:不可、事務所利用:可
-
学校区
春日小学校(316m)・春日中学校(474m)
-
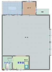
設備
1階、融雪設備あり、光ファイバー、エアコン、スケルトン、給湯、駐車場あり
-
入居時期
即入居可
-
取引態様
仲介
-
情報登録日
2025/09/22
-
次回更新予定日
2025/12/31
備考
・2025.9.22より、商談中です。
※賃料、管理費は課税後の表記金額です。
※現在、賃貸中のため内覧は令和 7年 9月以降可能。
・その他:町内会は事業所は加入できない為町内会費不要。但し、ごみ等は借主にて別途、回収業者を手配となります。
【設備】・電気・上水道・下水道・流し台・給湯室・電気温水器・エアコン(2台)・ブラインドつき・火災報知器・温水洗浄便座・ネット環境光コンセント・照明あり・風除室・花壇・外水道・ポーチ・駐車場 5台つき・消雪設備あり
取扱い会社
株式会社 お不動さん
-
TEL
025-520-8197
-
所在地
上越市中央一丁目12番36号
-
交通
直江津駅
-
営業時間
8:30~17:30/定休日:日曜・祝日・第2土曜日・第4土曜日
-
免許番号
新潟県知事(2)第5449号
-
所属団体名
公社 新潟県宅地建物取引協会 上越支部
-
取引態様
仲介
Copyright (C) 株式会社 コモンライフ・コーポレーション. All Rights Reserved.
不動産検索サイト「らくすむ」及び関連サイトに記載の不動産情報は、会員規約に則り、情報提供会社様の責任のもとに発信されております。
不動産の賃借、購入に関しては賃借者、購入者ご自身が情報を確認され、会社企業様から説明を受けられたうえで判断をお願いいたします。
不動産検索サイト「らくすむ」及び関連サイトに記載の不動産情報、写真、デザイン、コンテンツなどの無断転載・転用・複製など禁止します。